
1/7
請注意,上方物件照片如有街景,為物件附近環境介紹,非物件本身。
1/7
有3人也在關注這間👀
本案專家

預約看屋
按下送出表示您已同意本站
服務條款
與隱私權聲明
送出
東海店面
(3323BV)
台中市龍井區臺灣大道五段
有3人也在關注這間👀
詳情
總價
8,800萬
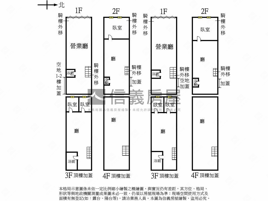
格局
6房8廳6衛
建坪
46.71坪
(主建物37.21坪)
類型
店面
樓層
1-2樓/2樓
建坪單價
188.40 萬/坪
屋齡
50.5年
地坪
38.84坪
地坪單價
226.57 萬/坪

SinyiCare十大守護 信義房屋購售屋服務保障
點擊觀看生活機能
公車 (12)公共自行車 (2)停車場 (2)
0東海別墅(專用道)
22.3分鐘 / 1603m
1東海別墅(專用道)
3分鐘 / 207m
2東海別墅
3.3分鐘 / 269m
3東海別墅
3.7分鐘 / 243m
4台糖公營學苑
4.5分鐘 / 299m
5工業區十六路口
3.6分鐘 / 287m
6工業區十六路口
3.7分鐘 / 297m
7東海商圈
5.2分鐘 / 313m
8台糖公營學苑
6.5分鐘 / 395m
9東海商圈
5.4分鐘 / 336m
A台中精機
7分鐘 / 586m
B台中精機
8.2分鐘 / 635m
0東海別墅(專用道)
22.3分鐘 / 1603m
1東海別墅(專用道)
3分鐘 / 207m
2東海別墅
3.3分鐘 / 269m
3東海別墅
3.7分鐘 / 243m
4台糖公營學苑
4.5分鐘 / 299m
觀看全部

SinyiCare十大守護 信義房屋購售屋服務保障
建坪
46.71坪
詳情
建坪單價
188.40 萬/坪
地坪
38.84坪
主建物
37.21坪
騎樓
9.5坪
地坪單價
226.57 萬/坪
格局
2房4廳2衛
加蓋格局
4房4廳4衛
屋齡
50.5年
類型
店面
樓層
1-2樓/2樓
車位
--
邊間/暗房
是/否
建物朝向
西
大門朝向
西
落地窗朝向
西
警衛管理
無
建物詳情
建物結構
詳注意事項
外牆建材
方塊磚
每層戶數
1
謄本用途
住家用
使用分區
鄉村區乙種建築用地;
注意事項
--
收合
物件特色
地點佳人潮多
大面寬空間大好規劃
東海精華地段
收租置產皆宜
近未來捷運藍線
產權單純明確處理
精華地段值得收藏
歡迎來電預約看屋
類似物件實價登錄(7)
距離該物件1公里內,半年內成交,店面
共有7間與我相似的實價登錄物件
編輯篩選條件
列表
地圖
年月
地址
類型/車位
總價
單價
建坪
地坪
屋齡
樓層
格局
114年09月

台中市龍井區新興路59巷2號
店面
1,120萬
32.43萬
34.53坪
26.48坪
46.3年
1樓/2樓
5房3廳2衛
歷史移轉2次
備註資訊:壹樓空地、防火巷頂樓加蓋;其他增建;
114年09月
店面台中市龍井區新興路59巷2號移轉2次
1,120萬
32.43萬/坪
建坪34.53坪地坪26.48無車位
5房3廳2衛46.3年1樓/2樓
5房3廳2衛46.3年1樓/2樓
交易備註
114年08月

台中市龍井區新興路11巷10號
店面
16,000萬
39.76萬
402.41坪
113.71坪
14.5年
1樓/7樓
60房60衛
備註資訊:頂樓加蓋;其他增建;
114年08月
店面台中市龍井區新興路11巷10號16,000萬
39.76萬/坪
建坪402.41坪地坪113.71無車位
60房60衛14.5年1樓/7樓
60房60衛14.5年1樓/7樓
交易備註
114年06月

台中市龍井區綠園路104號
店面
1,075萬
27.55萬
39.02坪
33.17坪
46.0年
1樓/2樓
5房3廳2衛
備註資訊:其他增建;
114年06月
店面台中市龍井區綠園路104號1,075萬
27.55萬/坪
建坪39.02坪地坪33.17無車位
5房3廳2衛46.0年1樓/2樓
5房3廳2衛46.0年1樓/2樓
交易備註
114年05月

台中市龍井區遊園南路226巷8號
店面
1,100萬
35.05萬
31.38坪
23.32坪
45.8年
1樓/2樓
4房1廳4衛
歷史移轉3次
備註資訊:頂樓加蓋;
114年05月
店面台中市龍井區遊園南路226巷8號移轉3次
1,100萬
35.05萬/坪
建坪31.38坪地坪23.32無車位
4房1廳4衛45.8年1樓/2樓
4房1廳4衛45.8年1樓/2樓
交易備註
114年05月

台中市龍井區新興路東興巷16號
店面
1,680萬
25.91萬
64.84坪
19.38坪
31.4年
1樓/4樓
3房2廳4衛
114年05月
店面台中市龍井區新興路東興巷16號1,680萬
25.91萬/坪
建坪64.84坪地坪19.38無車位
3房2廳4衛31.4年1樓/4樓
3房2廳4衛31.4年1樓/4樓
- 資料來源:
為信義房屋最新成交行情;
為內政部最新公布的實價登錄資料;
該數值為系統運算,詳細請看說明
- 本實價登錄分類係綜合內政部實價登錄2020年7月之建物型態分類調整,以及申報登錄之建物型態、建物權狀登載之「主要用途」資料推估而成,故資料呈現類型、順序可能會與內政部不動產交易實價查詢服務網之搜尋結果有所差異,請斟酌參考。看看我們如何推估實價登錄類型與順序
- 特殊行情物件可能為受到特別條件或特殊關係影響所造成,詳情請參考頁面之粉色「備註資訊」欄。排除特殊交易功能,開啟後可即時排除顯示申報備註中關係人間交易、特殊交易情況及標的類型、與政府有關之交易、僅車位交易、分件登記、含多筆土地或多棟建物、 交易標的僅有建物、土地面積為0(含地上權物件),及其他備註資訊,關閉後則會恢復顯示。
- 歷史移轉次數依據信義成交行情及政府實價登錄資訊推估,再由系統比對當筆與前一筆實價登錄,交易明細完全吻合方計算漲跌幅,當筆交易漲跌幅計算式為(當筆交易之成交總價/前一筆交易之成交總價)-1,計算百分比至小數點後兩位;可能與實際交易有所落差,資料請斟酌參考。
為信義房屋最新成交行情;- 本實價登錄分類係綜合內政部實價登錄2020年7月之建物型態分類調整,以及申報登錄之建物型態、建物權狀登載之「主要用途」資料推估而成,故資料呈現類型、順序可能會與內政部不動產交易實價查詢服務網之搜尋結果有所差異,請斟酌參考。看看我們如何推估實價登錄類型與順序
- 特殊行情物件可能為受到特別條件或特殊關係影響所造成,詳情請參考頁面之粉色「備註資訊」欄。排除特殊交易功能,開啟後可即時排除顯示申報備註中關係人間交易、特殊交易情況及標的類型、與政府有關之交易、僅車位交易、分件登記、含多筆土地或多棟建物、 交易標的僅有建物、土地面積為0(含地上權物件),及其他備註資訊,關閉後則會恢復顯示。
- 歷史移轉次數依據信義成交行情及政府實價登錄資訊推估,再由系統比對當筆與前一筆實價登錄,交易明細完全吻合方計算漲跌幅,當筆交易漲跌幅計算式為(當筆交易之成交總價/前一筆交易之成交總價)-1,計算百分比至小數點後兩位;可能與實際交易有所落差,資料請斟酌參考。
查看實價登錄
本案專家

根據你的設定值計算
446,846/月


