
1/10
請注意,上方物件照片如有街景,為物件附近環境介紹,非物件本身。
1/10
有5人也在關注這間👀
本區專家
本案專家

預約看屋
按下送出表示您已同意本站
服務條款
與隱私權聲明
送出
國泰邊間日式庭院別墅
(3584RQ)
台中市西屯區福祥街
有5人也在關注這間👀
詳情
總價
4,280萬
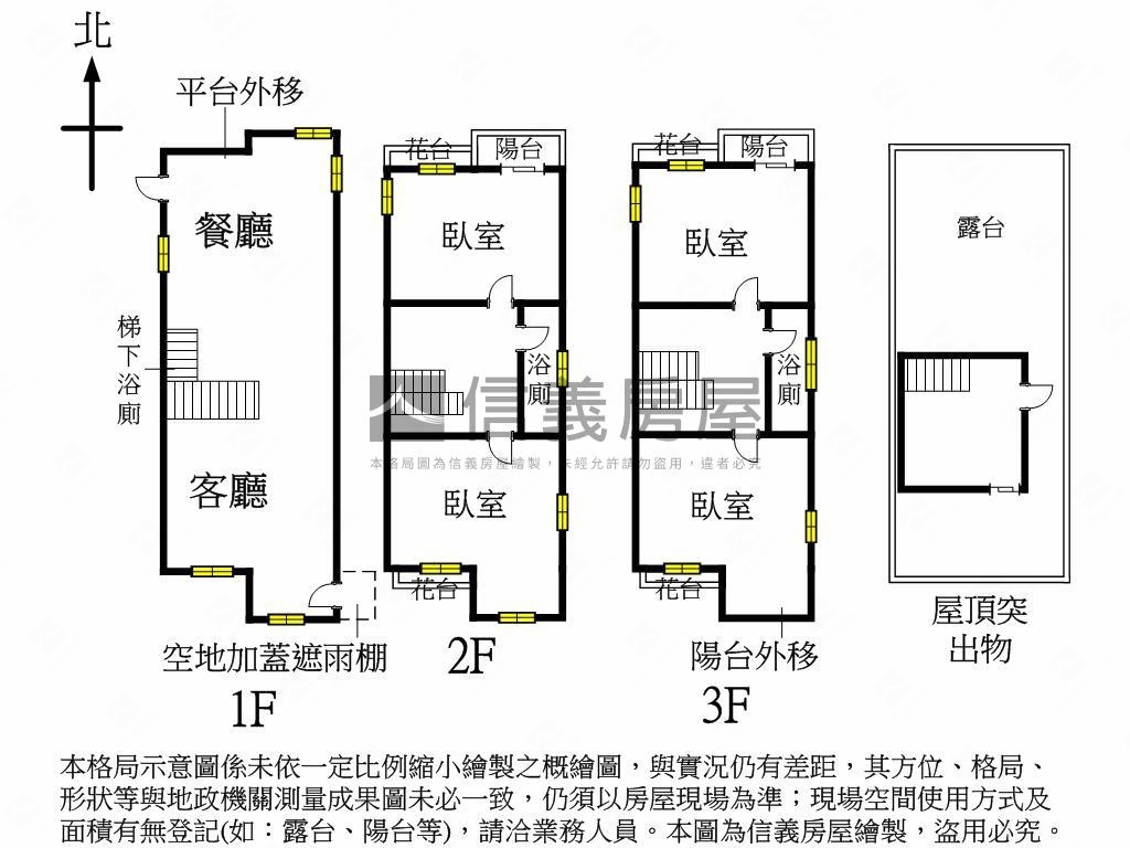
格局
4房2廳3衛
建坪
63.37坪
(主+陽56.8坪)
類型
透天
樓層
1-3樓/3樓
建坪單價
67.54 萬/坪
屋齡
30.2年
地坪
63.19坪
地坪單價
--

SinyiCare十大守護 信義房屋購售屋服務保障
點擊觀看生活機能
公車 (20)停車場 (2)
0福科安和路口
3分鐘 / 231m
1永安國小(西屯路)
4.8分鐘 / 351m
2永安國小(西屯路)
5.5分鐘 / 400m
3福科福祥街口
4分鐘 / 279m
4福科安和路口
4.2分鐘 / 305m
5永安國小(安林路)
5.9分鐘 / 421m
6福安福順路口
4分鐘 / 277m
7水堀頭
4.9分鐘 / 360m
8水堀頭
4.9分鐘 / 366m
9福科永福路口
5.7分鐘 / 397m
A福科永福路口
5.9分鐘 / 408m
B永福福科路口
6分鐘 / 413m
C福科福裕路口
6.6分鐘 / 489m
D福安里(西屯路)
7.7分鐘 / 535m
E福華/裕元
6.7分鐘 / 494m
F福安里(西屯路)
8.4分鐘 / 583m
G福科福裕路口
7.2分鐘 / 535m
H世斌公園
9.3分鐘 / 639m
I世斌公園
9.3分鐘 / 639m
J統聯轉運站
7.9分鐘 / 573m
0福科安和路口
3分鐘 / 231m
1永安國小(西屯路)
4.8分鐘 / 351m
2永安國小(西屯路)
5.5分鐘 / 400m
3福科福祥街口
4分鐘 / 279m
4福科安和路口
4.2分鐘 / 305m
觀看全部

SinyiCare十大守護 信義房屋購售屋服務保障
建坪
63.37坪
詳情
建坪單價
67.54 萬/坪
地坪
63.19坪
主+陽
56.8坪=
主建物
54.45坪+
陽台
2.35坪
屋頂突出物
4.38坪
平台
0.95坪
花台
1.1坪
住家用
0.15坪
格局
4房2廳3衛
加蓋格局
--
屋齡
30.2年
類型
透天
樓層
1-3樓/3樓
車位
--
邊間/暗房
是/否
建物朝向
南
大門朝向
南
落地窗朝向
南
警衛管理
全天候
管理費
2400 元/月
建物詳情
建物結構
鋼筋混凝土
外牆建材
二丁掛
每層戶數
1
謄本用途
住家用
使用分區
第一種住宅區; 第三之一種住宅區;
注意事項
--
收合
物件特色
近中科園區交通便利
鬧中取靜隱私性佳
歡迎網路預約專人回電
國泰建設品質口碑佳
本戶為邊間採光通風佳
地坪有63.19坪!
獨門獨院棟距約20米
信義房屋十大守護很放心
類似物件實價登錄(5)
距離該物件1公里內,半年內成交,別墅/透天
共有5間與我相似的實價登錄物件
編輯篩選條件
列表
地圖
年月
地址
類型/車位
總價
單價
建坪
地坪
屋齡
樓層
格局
114年10月

台中市西屯區福安路11號
別墅/透天
2,800萬
37.53萬
74.61坪
28.27坪
22.0年
1樓/5樓
3房2廳3衛
114年10月
別墅/透天台中市西屯區福安路11號2,800萬
37.53萬/坪
建坪74.61坪地坪28.27無車位
3房2廳3衛22.0年1樓/5樓
3房2廳3衛22.0年1樓/5樓
114年07月

台中市西屯區安和東路100號
別墅/透天
3,980萬
61.23萬
65坪
24.38坪
2.2年
1樓/4樓
4房3廳5衛
歷史移轉2次
備註資訊:其他增建;
114年07月
別墅/透天台中市西屯區安和東路100號移轉2次
3,980萬
61.23萬/坪
建坪65坪地坪24.38無車位
4房3廳5衛2.2年1樓/4樓
4房3廳5衛2.2年1樓/4樓
交易備註
114年10月

台中市西屯區筏堤東街一段32之7號
別墅/透天
3,588萬
51.14萬
70.16坪
24.2坪
0.4年
1樓/4樓
3房2廳6衛
114年10月
別墅/透天台中市西屯區筏堤東街一段32之7號3,588萬
51.14萬/坪
建坪70.16坪地坪24.2無車位
3房2廳6衛0.4年1樓/4樓
3房2廳6衛0.4年1樓/4樓
114年09月

台中市西屯區臺灣大道四段671巷63之1號
別墅/透天
1,588萬
41.73萬
38.05坪
31.22坪
46.6年
1樓/2樓
5房3廳4衛
備註資訊:其他增建;
114年09月
別墅/透天台中市西屯區臺灣大道四段671巷63之1號1,588萬
41.73萬/坪
建坪38.05坪地坪31.22無車位
5房3廳4衛46.6年1樓/2樓
5房3廳4衛46.6年1樓/2樓
交易備註
114年06月

台中市西屯區西屯路三段宏恩一巷17弄16號
別墅/透天
1,960萬
46.59萬
42.07坪
29.84坪
39.4年
1樓/2樓
4房2廳2衛
114年06月
別墅/透天台中市西屯區西屯路三段宏恩一巷17弄16號1,960萬
46.59萬/坪
建坪42.07坪地坪29.84無車位
4房2廳2衛39.4年1樓/2樓
4房2廳2衛39.4年1樓/2樓
- 資料來源:
為信義房屋最新成交行情;
為內政部最新公布的實價登錄資料;
該數值為系統運算,詳細請看說明
- 本實價登錄分類係綜合內政部實價登錄2020年7月之建物型態分類調整,以及申報登錄之建物型態、建物權狀登載之「主要用途」資料推估而成,故資料呈現類型、順序可能會與內政部不動產交易實價查詢服務網之搜尋結果有所差異,請斟酌參考。看看我們如何推估實價登錄類型與順序
- 特殊行情物件可能為受到特別條件或特殊關係影響所造成,詳情請參考頁面之粉色「備註資訊」欄。排除特殊交易功能,開啟後可即時排除顯示申報備註中關係人間交易、特殊交易情況及標的類型、與政府有關之交易、僅車位交易、分件登記、含多筆土地或多棟建物、 交易標的僅有建物、土地面積為0(含地上權物件),及其他備註資訊,關閉後則會恢復顯示。
- 歷史移轉次數依據信義成交行情及政府實價登錄資訊推估,再由系統比對當筆與前一筆實價登錄,交易明細完全吻合方計算漲跌幅,當筆交易漲跌幅計算式為(當筆交易之成交總價/前一筆交易之成交總價)-1,計算百分比至小數點後兩位;可能與實際交易有所落差,資料請斟酌參考。
為信義房屋最新成交行情;- 本實價登錄分類係綜合內政部實價登錄2020年7月之建物型態分類調整,以及申報登錄之建物型態、建物權狀登載之「主要用途」資料推估而成,故資料呈現類型、順序可能會與內政部不動產交易實價查詢服務網之搜尋結果有所差異,請斟酌參考。看看我們如何推估實價登錄類型與順序
- 特殊行情物件可能為受到特別條件或特殊關係影響所造成,詳情請參考頁面之粉色「備註資訊」欄。排除特殊交易功能,開啟後可即時排除顯示申報備註中關係人間交易、特殊交易情況及標的類型、與政府有關之交易、僅車位交易、分件登記、含多筆土地或多棟建物、 交易標的僅有建物、土地面積為0(含地上權物件),及其他備註資訊,關閉後則會恢復顯示。
- 歷史移轉次數依據信義成交行情及政府實價登錄資訊推估,再由系統比對當筆與前一筆實價登錄,交易明細完全吻合方計算漲跌幅,當筆交易漲跌幅計算式為(當筆交易之成交總價/前一筆交易之成交總價)-1,計算百分比至小數點後兩位;可能與實際交易有所落差,資料請斟酌參考。
查看實價登錄
本區專家
本案專家

根據你的設定值計算
217,330/月


