
請注意,上方物件照片如有街景,為物件附近環境介紹,非物件本身。
1/21
有0人也在關注這間👀
本案專家
更多挑選
按下按鈕表示您已同意本站
服務條款
與隱私權聲明
預約看屋
有0人也在關注這間👀
總價
6,980萬
含車位價
建坪單價
本物件含車位及加蓋,詳洽經紀人員
格局
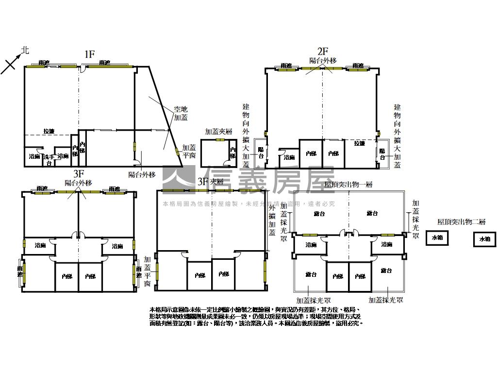
6房8廳7衛1室
含加蓋3廳1室
房貸試算
計算
元/月
年|利率%概算|undefined年寬限期
符合首購資格嗎?
坪數詳情
細項
建坪134.86
主+陽(含其他)108.18
地坪26.45
類型店面
屋齡16.9年
樓層1-3樓/3樓
加蓋格局3廳1室
謄本用途店舖
使用分區第二種住宅區;
完整物件詳情
本案專家
更多挑選
物件特色
稀有邊間獨立氣派透天
正馬路適合文武百業
中庭花園、室內游池
附B1平面大車位
24小時警衛管理透天
清水商圈機能佳
近未來捷運站近重劃區
APP網路預約專人服務
周邊生活機能


SinyiCare十大守護 信義房屋購售屋服務保障
點擊觀看生活機能
捷運 (2)
公車 (30)
公共自行車 (1)
停車場 (2)
0清水站(規劃中) - 出口
9.2分鐘 / 656m
1廷寮站(規劃中) - 出口
14分鐘 / 1014m
0清水站(規劃中) - 出口
9.2分鐘 / 656m
1廷寮站(規劃中) - 出口
14分鐘 / 1014m

SinyiCare十大守護 信義房屋購售屋服務保障
類似物件實價登錄
(7)


