
請注意,上方物件照片如有街景,為物件附近環境介紹,非物件本身。
1/7
有90人也在關注這間👀
本案專家
更多挑選
按下按鈕表示您已同意本站
服務條款
與隱私權聲明
預約看屋
近北屯中國醫金店面
(3677RH)
台中市北屯區和順一街
有90人也在關注這間👀
總價
6,980萬
建坪單價
67.71 萬/坪
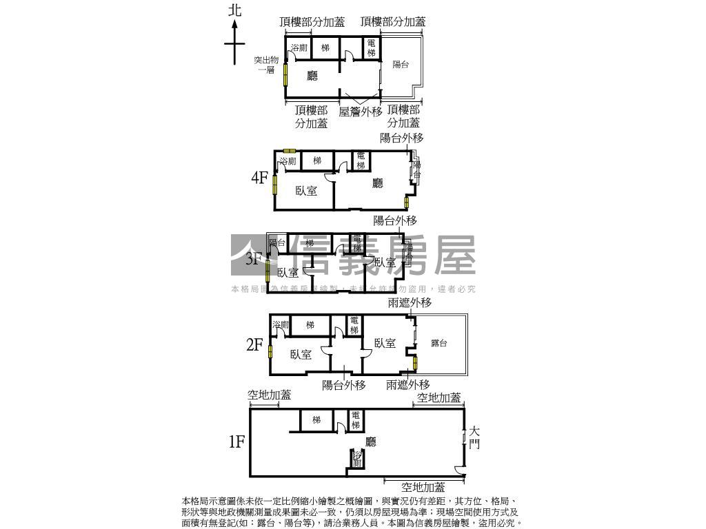
格局
5房3廳4衛
含加蓋1廳1衛
房貸試算
計算
元/月
年|利率%概算|undefined年寬限期
符合首購資格嗎?
坪數詳情
細項
建坪103.08
主+陽(含其他)103.08
地坪46.62
類型店面/透天
屋齡11.7年
樓層1-4樓/4樓
加蓋格局1廳1衛
謄本用途住宅、停車空間、外廊、樓梯間
使用分區第一之一種住宅區;
完整物件詳情
本案專家
更多挑選
物件特色
近中老人復健綜合醫院
近廍子明星雙語學校
近74號道交通便利
大空間大面寬店面
百萬廚具冰箱
周邊綠地環繞,靜謐宜人
電話預約專人安排賞屋
買方服務費成交價1%
周邊生活機能


SinyiCare十大守護 信義房屋購售屋服務保障
點擊觀看生活機能
公車 (12)
公共自行車 (2)
0臺中市廍子非營利幼兒園
3.6分鐘 / 258m
1祥和公園
4分鐘 / 297m
2祥和公園
4.1分鐘 / 302m
3臺中市廍子非營利幼兒園
4.5分鐘 / 321m
4臺中市立醫院(建和路)
7.9分鐘 / 595m
5軍功軍福八路口
8.7分鐘 / 629m
6臺中市立醫院(太原路)
9.2分鐘 / 689m
7軍功軍福八路口
8.7分鐘 / 627m
8情人橋(景賢路)
6.9分鐘 / 490m
9情人橋(景賢路)
6.9分鐘 / 490m
A軍功景賢路口
10分鐘 / 737m
B臺中市立醫院(太原路)
10.1分鐘 / 739m
0臺中市廍子非營利幼兒園
3.6分鐘 / 258m
1祥和公園
4分鐘 / 297m
2祥和公園
4.1分鐘 / 302m
3臺中市廍子非營利幼兒園
4.5分鐘 / 321m
4臺中市立醫院(建和路)
7.9分鐘 / 595m
完整周邊生活圈

SinyiCare十大守護 信義房屋購售屋服務保障
類似物件實價登錄
(20)


