
1/8
請注意,上方物件照片如有街景,為物件附近環境介紹,非物件本身。
1/8
有348人也在關注這間👀
本案專家

預約看屋
按下送出表示您已同意本站
服務條款
與隱私權聲明
送出
左營榮總商圈活巷透天
(3679AH)
高雄市左營區榮總路
有348人也在關注這間👀
詳情
總價
1,398萬
1498萬
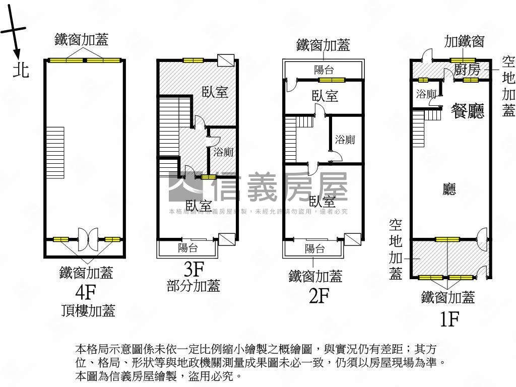
格局
4房2廳3衛
建坪
30.37坪
(主+陽25.61坪)
類型
透天
樓層
1-2樓/2樓
建坪單價
46.03 萬/坪
屋齡
40.7年
地坪
18.15坪
地坪單價
--

SinyiCare十大守護 信義房屋購售屋服務保障

點擊觀看生活機能
公車 (11)公共自行車 (4)停車場 (5)
0山水社區
0.6分鐘 / 44m
1山水社區
1分鐘 / 65m
2福檳新村
2.6分鐘 / 180m
3福檳新村
8分鐘 / 507m
4霞海東二街口
3.7分鐘 / 263m
5霞海東二街口
3.6分鐘 / 257m
6文學路口(華夏路)
5.7分鐘 / 342m
7榮華新村
4.9分鐘 / 355m
8榮華新村
5.5分鐘 / 400m
9九番埤濕地公園
6分鐘 / 442m
A九番埤濕地公園
6.3分鐘 / 460m
0山水社區
0.6分鐘 / 44m
1山水社區
1分鐘 / 65m
2福檳新村
2.6分鐘 / 180m
3福檳新村
8分鐘 / 507m
4霞海東二街口
3.7分鐘 / 263m
觀看全部

SinyiCare十大守護 信義房屋購售屋服務保障
建坪
30.37坪
詳情
建坪單價
46.03 萬/坪
地坪
18.15坪
主+陽
25.61坪=
主建物
22.43坪+
陽台
3.18坪
屋頂突出物
4.76坪
格局
3房2廳2衛
加蓋格局
1房1衛
屋齡
40.7年
類型
透天
樓層
1-2樓/2樓
車位
--
邊間/暗房
否/否
建物朝向
北
大門朝向
北
落地窗朝向
北
警衛管理
無
建物詳情
建物結構
鋼筋混凝土
外牆建材
二丁掛
每層戶數
1
謄本用途
住宅
使用分區
第三種住宅區;
注意事項
--
收合
物件特色
近重愛、榮總商圈
上國道/去高鐵很方便
近公園綠地
南北座向冬暖夏涼
格局方正,前後陽台
鬧中取靜,就醫方便
適合自用置產投資皆宜
買方服務費 成交價1%
類似物件實價登錄(16)
距離該物件1公里內,半年內成交,別墅/透天
共有16間與我相似的實價登錄物件
編輯篩選條件
列表
地圖
年月
地址
類型/車位
總價
單價
建坪
地坪
屋齡
樓層
格局
114年03月

高雄市左營區榮總路460巷12號
別墅/透天
1,305萬
42.95萬
30.39坪
18.45坪
40.2年
1樓/2樓
4房2廳6衛
備註資訊:壹樓空地、一樓增建沿著加蓋、頂樓其他增建;
114年03月
別墅/透天高雄市左營區榮總路460巷12號1,305萬
42.95萬/坪
建坪30.39坪地坪18.45無車位
4房2廳6衛40.2年1樓/2樓
4房2廳6衛40.2年1樓/2樓
交易備註
114年03月

高雄市左營區榮總路478巷10號
別墅/透天
1,365萬
46.5萬
29.36坪
19.36坪
40.4年
1樓/2樓
4房2廳3衛
歷史移轉4次
備註資訊:頂樓加蓋;其他增建;
114年03月
別墅/透天高雄市左營區榮總路478巷10號移轉4次
1,365萬
46.5萬/坪
建坪29.36坪地坪19.36無車位
4房2廳3衛40.4年1樓/2樓
4房2廳3衛40.4年1樓/2樓
交易備註
114年04月

高雄市仁武區永昌一街54巷25之6號
別墅/透天
1,080萬
37.13萬
29.09坪
19.81坪
30.3年
1樓/3樓
4房2廳3衛
備註資訊:一樓空地增建至四樓其他增建;
114年04月
別墅/透天高雄市仁武區永昌一街54巷25之6號1,080萬
37.13萬/坪
建坪29.09坪地坪19.81無車位
4房2廳3衛30.3年1樓/3樓
4房2廳3衛30.3年1樓/3樓
交易備註
114年03月

高雄市左營區榮總路422號
別墅/透天
1,800萬
24.16萬
74.51坪
25.94坪
17.8年
1樓/5樓
6房2廳5衛
備註資訊:二樓、三樓後方親友、員工、共有人或其他特殊關係間之交易;其他增建;
114年03月
別墅/透天高雄市左營區榮總路422號1,800萬
24.16萬/坪
建坪74.51坪地坪25.94無車位
6房2廳5衛17.8年1樓/5樓
6房2廳5衛17.8年1樓/5樓
交易備註
114年03月

高雄市仁武區霞海路350巷10號
別墅/透天
2,330萬
34.35萬
67.83坪
25.85坪
7.4年
1樓/4樓
4房2廳4衛
歷史移轉2次
備註資訊:附贈冷氣4台.簡易傢俱
114年03月
別墅/透天高雄市仁武區霞海路350巷10號移轉2次
2,330萬
34.35萬/坪
建坪67.83坪地坪25.85無車位
4房2廳4衛7.4年1樓/4樓
4房2廳4衛7.4年1樓/4樓
交易備註
- 資料來源:
為信義房屋最新成交行情;
為內政部最新公布的實價登錄資料;
該數值為系統運算,詳細請看說明
- 本實價登錄分類係綜合內政部實價登錄2020年7月之建物型態分類調整,以及申報登錄之建物型態、建物權狀登載之「主要用途」資料推估而成,故資料呈現類型、順序可能會與內政部不動產交易實價查詢服務網之搜尋結果有所差異,請斟酌參考。看看我們如何推估實價登錄類型與順序
- 特殊行情物件可能為受到特別條件或特殊關係影響所造成,詳情請參考頁面之粉色「備註資訊」欄。排除特殊交易功能,開啟後可即時排除顯示申報備註中關係人間交易、特殊交易情況及標的類型、與政府有關之交易、僅車位交易、分件登記、含多筆土地或多棟建物、 交易標的僅有建物、土地面積為0(含地上權物件),及其他備註資訊,關閉後則會恢復顯示。
- 歷史移轉次數依據信義成交行情及政府實價登錄資訊推估,再由系統比對當筆與前一筆實價登錄,交易明細完全吻合方計算漲跌幅,當筆交易漲跌幅計算式為(當筆交易之成交總價/前一筆交易之成交總價)-1,計算百分比至小數點後兩位;可能與實際交易有所落差,資料請斟酌參考。
為信義房屋最新成交行情;- 本實價登錄分類係綜合內政部實價登錄2020年7月之建物型態分類調整,以及申報登錄之建物型態、建物權狀登載之「主要用途」資料推估而成,故資料呈現類型、順序可能會與內政部不動產交易實價查詢服務網之搜尋結果有所差異,請斟酌參考。看看我們如何推估實價登錄類型與順序
- 特殊行情物件可能為受到特別條件或特殊關係影響所造成,詳情請參考頁面之粉色「備註資訊」欄。排除特殊交易功能,開啟後可即時排除顯示申報備註中關係人間交易、特殊交易情況及標的類型、與政府有關之交易、僅車位交易、分件登記、含多筆土地或多棟建物、 交易標的僅有建物、土地面積為0(含地上權物件),及其他備註資訊,關閉後則會恢復顯示。
- 歷史移轉次數依據信義成交行情及政府實價登錄資訊推估,再由系統比對當筆與前一筆實價登錄,交易明細完全吻合方計算漲跌幅,當筆交易漲跌幅計算式為(當筆交易之成交總價/前一筆交易之成交總價)-1,計算百分比至小數點後兩位;可能與實際交易有所落差,資料請斟酌參考。
查看實價登錄
本案專家

根據你的設定值計算
70,988/月


