
請注意,上方物件照片如有街景,為物件附近環境介紹,非物件本身。
1/22
有62人也在關注這間👀
本區專家
本案專家
更多挑選
按下按鈕表示您已同意本站
服務條款
與隱私權聲明
預約看屋
永康好讚!稀有大地坪廠房
(3734RN)
台南市永康區正南八街
有62人也在關注這間👀
總價
3,490萬
3,800萬
建坪單價
28.29 萬/坪
格局
2廳6衛11室
含加蓋1室
房貸試算
計算
元/月
年|利率%概算|undefined年寬限期
符合首購資格嗎?
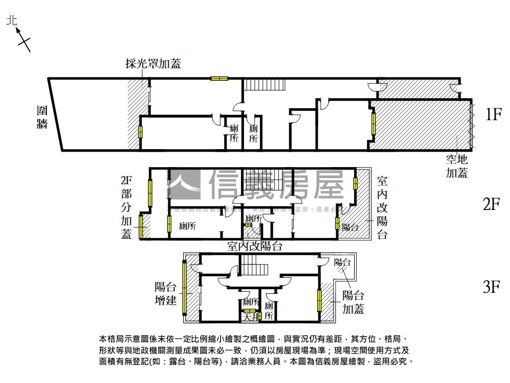
坪數詳情
細項
建坪123.37
主+陽123.37
地坪103.15
類型廠房/辦公
屋齡14.5年
樓層1-3樓/3樓
管理費
約700 元/月
加蓋格局1室
謄本用途廠房、辦公室、員工休息室
使用分區見土地使用分區證明影本;
完整物件詳情
本區專家
本案專家
更多挑選
物件特色
角窗邊間.方正好利用
大面寬!公司行號首選
大氣指標!空間極寬敞
約一百公尺到中正南路
鬧中取靜.離塵不離城!
屋主惜售.敬請把握!
絕!大地坪.邊間.面寬
買方服務費收成交價1%
周邊生活機能


SinyiCare十大守護 信義房屋購售屋服務保障
點擊觀看生活機能
公車 (9)
公共自行車 (1)
0南鹽行
4.2分鐘 / 252m
1南鹽行
4分鐘 / 263m
2正南五街
6分鐘 / 386m
3正南五街
7.1分鐘 / 468m
4鹽行
9.4分鐘 / 638m
5鹽行
9.5分鐘 / 643m
6鹽行
9.4分鐘 / 656m
7洲仔尾
7.8分鐘 / 537m
8洲仔尾
8.6分鐘 / 570m
0南鹽行
4.2分鐘 / 252m
1南鹽行
4分鐘 / 263m
2正南五街
6分鐘 / 386m
3正南五街
7.1分鐘 / 468m
4鹽行
9.4分鐘 / 638m
完整周邊生活圈

SinyiCare十大守護 信義房屋購售屋服務保障
類似物件實價登錄
(8)
1公里內 | 半年內 | 廠房/辦公
1房1廳1衛
|5.17坪
|無車位
120萬23.23萬/坪
115/03成交
1房1廳1衛
|7.21坪
|無車位
170萬23.59萬/坪
114/10成交


