
1/8
請注意,上方物件照片如有街景,為物件附近環境介紹,非物件本身。
1/8
有0人也在關注這間👀
本區專家
本案專家

預約看屋
按下送出表示您已同意本站
服務條款
與隱私權聲明
送出
有0人也在關注這間👀
詳情
總價(含車位)
2,288萬
格局
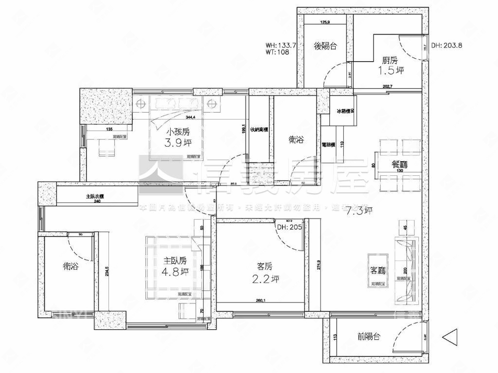
3房2廳2衛
建坪
58.24坪
(主+陽26.34坪)
類型
大樓
樓層
13樓/13樓
建坪單價
本物件含車位,詳洽經紀人員
屋齡
9.9年
地坪
7坪
地坪單價
詳洽經紀人員

SinyiCare十大守護 信義房屋購售屋服務保障
點擊觀看生活機能
公車 (14)
0大安國小
0.8分鐘 / 57m
1大安國小
0.8分鐘 / 51m
2和平社區活動中心
3.8分鐘 / 264m
3和平路772巷
4.5分鐘 / 321m
4和平路772巷
4.8分鐘 / 343m
5大安活動中心
3.5分鐘 / 255m
6大安社區活動中心
3.5分鐘 / 255m
7大安活動中心
3.7分鐘 / 274m
8大安社區活動中心
3.7分鐘 / 274m
9中華神學院
6.4分鐘 / 454m
A和平路825巷
7.1分鐘 / 511m
B大草厝
7.3分鐘 / 530m
C大草厝
7.4分鐘 / 538m
D富榮街
8.8分鐘 / 630m
0大安國小
0.8分鐘 / 57m
1大安國小
0.8分鐘 / 51m
2和平社區活動中心
3.8分鐘 / 264m
3和平路772巷
4.5分鐘 / 321m
4和平路772巷
4.8分鐘 / 343m
觀看全部

SinyiCare十大守護 信義房屋購售屋服務保障
建坪
58.24坪
詳情
建坪單價
本物件含車位,詳洽經紀人員
地坪
7坪
主+陽
26.34坪=
主建物
23.93坪+
陽台
2.41坪
防空避難室兼停車場
15.05坪
共有部份
13.38坪
雨遮
3.47坪
地坪單價
詳洽經紀人員
格局
3房2廳2衛
加蓋格局
--
屋齡
9.9年
類型
大樓
樓層
13樓/13樓
車位
2個坡道平面
邊間/暗房
是/否
建物朝向
西
大門朝向
北
落地窗朝向
西南
警衛管理
全天候
管理費
2791 元/月
建物詳情
建物結構
鋼筋混凝土
外牆建材
二丁掛
每層戶數
2
謄本用途
集合住宅
使用分區
鄉村區乙種建築用地;
注意事項
--
收合
物件特色
首購.置產|投資首選
格局方正面|好規劃
稀有戶型|一層兩戶
高樓層棟距遠|視野開
雙衛浴開窗|好通風
近未來捷運LB13站
近大湳交流道|四通八達
近八德轉運站|好便利
類似物件實價登錄(9)
距離該物件1公里內,半年內成交,大樓
共有9間與我相似的實價登錄物件
編輯篩選條件
列表
地圖
年月
地址
類型/車位
總價
單價
建坪
地坪
屋齡
樓層
格局
114年07月

桃園市八德區和平路649巷1號四樓
大樓
有車位
985萬
含車位價
含車位價
28.43萬
含車位計算
含車位計算
34.65坪
含車位7.52坪
含車位7.52坪
4.28坪
9.5年
4樓/13樓
2房2廳1衛
備註資訊:鐵鋁窗增建其他增建;
114年07月
大樓桃園市八德區和平路649巷1號四樓985萬
含車位價
28.43萬/坪
含車位計算
建坪34.65坪(含車位7.52坪)地坪4.28有車位
2房2廳1衛9.5年4樓/13樓
2房2廳1衛9.5年4樓/13樓
交易備註
114年08月

桃園市八德區富榮街36巷45號四樓之6
大樓
有車位
1,090萬
含車位價
含車位價
28.14萬
含車位計算
含車位計算
38.73坪
含車位9.5坪
含車位9.5坪
7.68坪
1.3年
4樓/14樓
2房1廳2衛
歷史移轉2次
114年08月
大樓桃園市八德區富榮街36巷45號四樓之6移轉2次
1,090萬
含車位價
28.14萬/坪
含車位計算
建坪38.73坪(含車位9.5坪)地坪7.68有車位
2房1廳2衛1.3年4樓/14樓
2房1廳2衛1.3年4樓/14樓
1,490萬
含車位價
26.45萬/坪
含車位計算
建坪56.34坪(含車位--坪)地坪6.53有車位
4房2廳2衛20.4年3樓/13樓
4房2廳2衛20.4年3樓/13樓
備註資訊:陽台外推;
1,880萬
含車位140萬
33.26萬/坪
33.26萬
建坪59.18坪
含車位6.87坪地坪11.65有車位
3房2廳2衛14.3年15樓/15樓
3房2廳2衛14.3年15樓/15樓
信義成交交易備註
114年10月

桃園市八德區東勇街19巷13弄11號四樓
大樓
850萬
20.52萬
41.42坪
4.59坪
29.0年
4樓/13樓
4房2廳2衛
備註資訊:其他增建;
114年10月
大樓桃園市八德區東勇街19巷13弄11號四樓850萬
20.52萬/坪
建坪41.42坪地坪4.59無車位
4房2廳2衛29.0年4樓/13樓
4房2廳2衛29.0年4樓/13樓
交易備註
- 資料來源:
為信義房屋最新成交行情;
為內政部最新公布的實價登錄資料;
該數值為系統運算,詳細請看說明
- 本實價登錄分類係綜合內政部實價登錄2020年7月之建物型態分類調整,以及申報登錄之建物型態、建物權狀登載之「主要用途」資料推估而成,故資料呈現類型、順序可能會與內政部不動產交易實價查詢服務網之搜尋結果有所差異,請斟酌參考。看看我們如何推估實價登錄類型與順序
- 特殊行情物件可能為受到特別條件或特殊關係影響所造成,詳情請參考頁面之粉色「備註資訊」欄。排除特殊交易功能,開啟後可即時排除顯示申報備註中關係人間交易、特殊交易情況及標的類型、與政府有關之交易、僅車位交易、分件登記、含多筆土地或多棟建物、 交易標的僅有建物、土地面積為0(含地上權物件),及其他備註資訊,關閉後則會恢復顯示。
- 歷史移轉次數依據信義成交行情及政府實價登錄資訊推估,再由系統比對當筆與前一筆實價登錄,交易明細完全吻合方計算漲跌幅,當筆交易漲跌幅計算式為(當筆交易之成交總價/前一筆交易之成交總價)-1,計算百分比至小數點後兩位;可能與實際交易有所落差,資料請斟酌參考。
為信義房屋最新成交行情;- 本實價登錄分類係綜合內政部實價登錄2020年7月之建物型態分類調整,以及申報登錄之建物型態、建物權狀登載之「主要用途」資料推估而成,故資料呈現類型、順序可能會與內政部不動產交易實價查詢服務網之搜尋結果有所差異,請斟酌參考。看看我們如何推估實價登錄類型與順序
- 特殊行情物件可能為受到特別條件或特殊關係影響所造成,詳情請參考頁面之粉色「備註資訊」欄。排除特殊交易功能,開啟後可即時排除顯示申報備註中關係人間交易、特殊交易情況及標的類型、與政府有關之交易、僅車位交易、分件登記、含多筆土地或多棟建物、 交易標的僅有建物、土地面積為0(含地上權物件),及其他備註資訊,關閉後則會恢復顯示。
- 歷史移轉次數依據信義成交行情及政府實價登錄資訊推估,再由系統比對當筆與前一筆實價登錄,交易明細完全吻合方計算漲跌幅,當筆交易漲跌幅計算式為(當筆交易之成交總價/前一筆交易之成交總價)-1,計算百分比至小數點後兩位;可能與實際交易有所落差,資料請斟酌參考。
查看實價登錄
本區專家
本案專家

根據你的設定值計算
116,180/月


