
請注意,上方物件照片如有街景,為物件附近環境介紹,非物件本身。
1/9
有30人也在關注這間👀
本案專家
更多挑選
按下按鈕表示您已同意本站
服務條款
與隱私權聲明
預約看屋
住商用員集優質透天
(3885LT)
彰化縣田中鎮員集路三段
有30人也在關注這間👀
總價
798萬
建坪單價
17.39 萬/坪
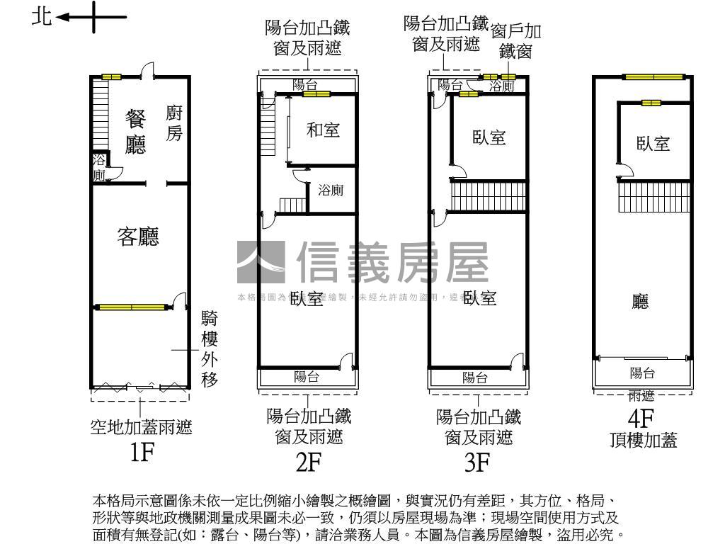
格局
4房3廳3衛1室
含加蓋1房1廳
房貸試算
計算
元/月
年|利率%概算|undefined年寬限期
符合首購資格嗎?
坪數詳情
細項
建坪45.9
主(含其他)45.9
地坪18.3
類型透天/店面
屋齡45.0年
樓層1-3樓/3樓
加蓋格局1房1廳
謄本用途住商用
使用分區鄉村區乙種建築用地;
完整物件詳情
本案專家
更多挑選
物件特色
住商用、多功能用途
彰化高鐵站、田中車站
空間寬敞好規劃
田中米倉便利市郊
周邊生活機能


SinyiCare十大守護 信義房屋購售屋服務保障
點擊觀看生活機能
國中 (2)
0私立文興高中
288m
1私立文興高中附設國中
301m
0私立文興高中
288m
1私立文興高中附設國中
301m

SinyiCare十大守護 信義房屋購售屋服務保障
類似物件實價登錄
(10)
1公里內 | 半年內 | 透天/店面
6房2廳2衛
|50.59坪
|無車位
169萬3.35萬/坪
115/01成交
5房2廳2衛
|43.81坪
|無車位
730萬16.66萬/坪
114/11成交


