
1/7
請注意,上方物件照片如有街景,為物件附近環境介紹,非物件本身。
1/7
有1人也在關注這間👀
本案專家

預約看屋
按下送出表示您已同意本站
服務條款
與隱私權聲明
送出
文心路蒂芬妮300坪店面
(4853YF)
台中市北區文心路四段
有1人也在關注這間👀
詳情
總價(含車位)
7,800萬
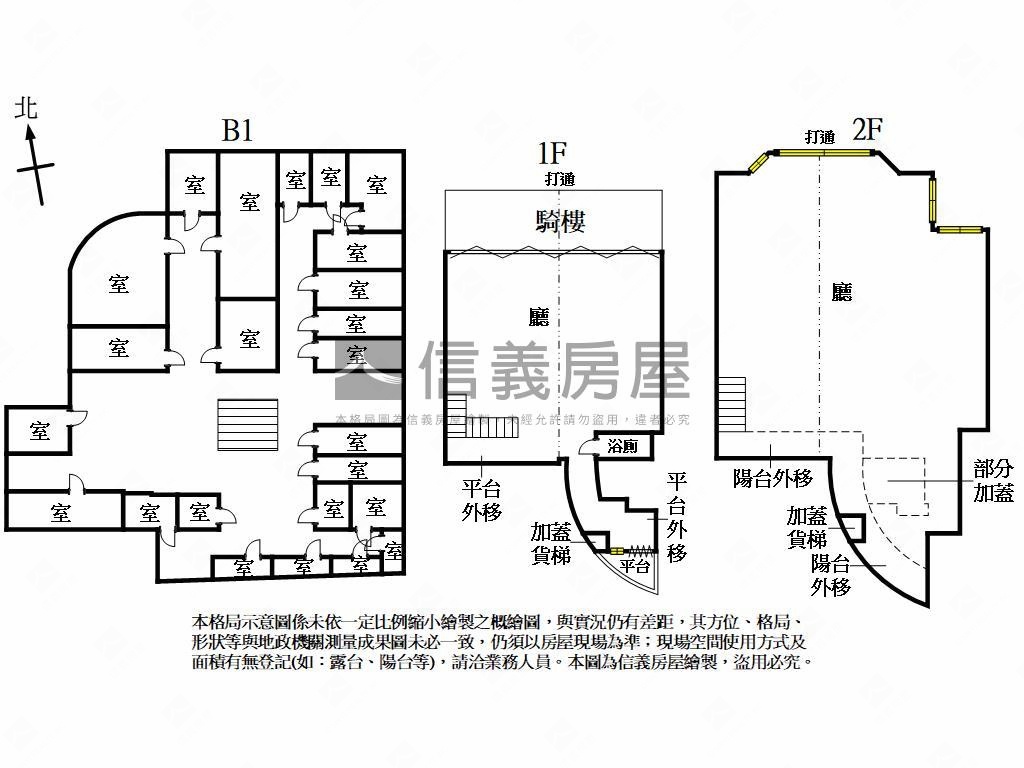
格局
2廳1衛24室
建坪
378.86坪
(主+陽102.53坪)
類型
店面
樓層
B1-2樓/12樓
建坪單價
20.59 萬/坪
屋齡
35.0年
地坪
61.32坪
地坪單價
--

SinyiCare十大守護 信義房屋購售屋服務保障
點擊觀看生活機能
捷運 (2)公車 (8)公共自行車 (3)停車場 (5)
0文心崇德站 - 出口
10分鐘 / 716m
1文心中清站 - 出口
10.8分鐘 / 748m
0文心崇德站 - 出口
10分鐘 / 716m
1文心中清站 - 出口
10.8分鐘 / 748m

SinyiCare十大守護 信義房屋購售屋服務保障
建坪
378.86坪
詳情
建坪單價
20.59 萬/坪
地坪
61.32坪
主+陽
102.53坪=
主建物
95.89坪+
陽台
6.64坪
地下室
216.84坪
共有部份
39.85坪
平台
8.07坪
騎樓
11.57坪
格局
2廳1衛24室
加蓋格局
--
屋齡
35.0年
類型
店面
樓層
B1-2樓/12樓
車位
--
邊間/暗房
否/否
建物朝向
北
大門朝向
北
落地窗朝向
北
警衛管理
日間
管理費
12500 元/月
建物詳情
建物結構
鋼筋混凝土
外牆建材
方塊磚
每層戶數
2
謄本用途
商業用
使用分區
第三種住宅區;
注意事項
--
收合
物件特色
近捷運文心崇德站
適合大型連鎖品牌店面
人潮聚集處顯眼醒目
稀有雙店面大面寬
收租自用兩相宜
歡迎洽專人為您介紹
買方服務費成交價1%
屋主誠意出售
類似物件實價登錄(11)
距離該物件1公里內,半年內成交,店面
共有11間與我相似的實價登錄物件
編輯篩選條件
列表
地圖
年月
地址
類型/車位
總價
單價
建坪
地坪
屋齡
樓層
格局
114年10月

台中市北區天津路二段139號
店面
有車位
1,225萬
含車位價
含車位價
37.46萬
含車位計算
含車位計算
32.7坪
含車位--坪
含車位--坪
5.44坪
31.9年
1樓/11樓
2廳1衛
114年10月
店面台中市北區天津路二段139號1,225萬
含車位價
37.46萬/坪
含車位計算
建坪32.7坪(含車位--坪)地坪5.44有車位
2廳1衛31.9年1樓/11樓
2廳1衛31.9年1樓/11樓
114年07月

台中市北屯區大連路一段272號
店面
2,200萬
26.53萬
82.94坪
26.12坪
37.8年
1樓/4樓
6房2廳4衛
備註資訊:頂樓加蓋;其他增建;
114年07月
店面台中市北屯區大連路一段272號2,200萬
26.53萬/坪
建坪82.94坪地坪26.12無車位
6房2廳4衛37.8年1樓/4樓
6房2廳4衛37.8年1樓/4樓
交易備註
備註資訊:其他增建;
114年07月
店面台中市北區北平路一段91號3,582萬
49.93萬/坪
114年09月

台中市北屯區大連北街46巷22號
店面
1,850萬
56.48萬
32.76坪
25.71坪
46.1年
1樓/2樓
5房2廳2衛
歷史移轉2次
114年09月
店面台中市北屯區大連北街46巷22號移轉2次
1,850萬
56.48萬/坪
建坪32.76坪地坪25.71無車位
5房2廳2衛46.1年1樓/2樓
5房2廳2衛46.1年1樓/2樓
114年08月

台中市北區青島路一段402號
店面
340萬
29.16萬
11.66坪
4.05坪
43.5年
1樓/5樓
2房1廳2衛
歷史移轉4次
備註資訊:共有人間買賣親友、員工、共有人或其他特殊關係間之交易;
114年08月
店面台中市北區青島路一段402號移轉4次
340萬
29.16萬/坪
建坪11.66坪地坪4.05無車位
2房1廳2衛43.5年1樓/5樓
2房1廳2衛43.5年1樓/5樓
交易備註
- 資料來源:
為信義房屋最新成交行情;
為內政部最新公布的實價登錄資料;
該數值為系統運算,詳細請看說明
- 本實價登錄分類係綜合內政部實價登錄2020年7月之建物型態分類調整,以及申報登錄之建物型態、建物權狀登載之「主要用途」資料推估而成,故資料呈現類型、順序可能會與內政部不動產交易實價查詢服務網之搜尋結果有所差異,請斟酌參考。看看我們如何推估實價登錄類型與順序
- 特殊行情物件可能為受到特別條件或特殊關係影響所造成,詳情請參考頁面之粉色「備註資訊」欄。排除特殊交易功能,開啟後可即時排除顯示申報備註中關係人間交易、特殊交易情況及標的類型、與政府有關之交易、僅車位交易、分件登記、含多筆土地或多棟建物、 交易標的僅有建物、土地面積為0(含地上權物件),及其他備註資訊,關閉後則會恢復顯示。
- 歷史移轉次數依據信義成交行情及政府實價登錄資訊推估,再由系統比對當筆與前一筆實價登錄,交易明細完全吻合方計算漲跌幅,當筆交易漲跌幅計算式為(當筆交易之成交總價/前一筆交易之成交總價)-1,計算百分比至小數點後兩位;可能與實際交易有所落差,資料請斟酌參考。
為信義房屋最新成交行情;- 本實價登錄分類係綜合內政部實價登錄2020年7月之建物型態分類調整,以及申報登錄之建物型態、建物權狀登載之「主要用途」資料推估而成,故資料呈現類型、順序可能會與內政部不動產交易實價查詢服務網之搜尋結果有所差異,請斟酌參考。看看我們如何推估實價登錄類型與順序
- 特殊行情物件可能為受到特別條件或特殊關係影響所造成,詳情請參考頁面之粉色「備註資訊」欄。排除特殊交易功能,開啟後可即時排除顯示申報備註中關係人間交易、特殊交易情況及標的類型、與政府有關之交易、僅車位交易、分件登記、含多筆土地或多棟建物、 交易標的僅有建物、土地面積為0(含地上權物件),及其他備註資訊,關閉後則會恢復顯示。
- 歷史移轉次數依據信義成交行情及政府實價登錄資訊推估,再由系統比對當筆與前一筆實價登錄,交易明細完全吻合方計算漲跌幅,當筆交易漲跌幅計算式為(當筆交易之成交總價/前一筆交易之成交總價)-1,計算百分比至小數點後兩位;可能與實際交易有所落差,資料請斟酌參考。
查看實價登錄
本案專家

根據你的設定值計算
396,068/月


