
1/14
請注意,上方物件照片如有街景,為物件附近環境介紹,非物件本身。
1/14
有33人也在關注這間👀
本案專家

預約看屋
按下送出表示您已同意本站
服務條款
與隱私權聲明
送出
新莊南路大廠房
(5055XS)
新北市新莊區瓊林南路
有33人也在關注這間👀
詳情
總價
3,780萬
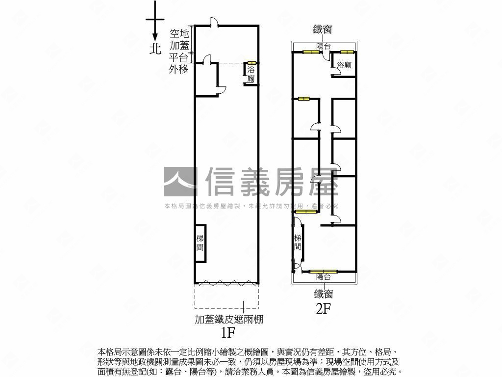
格局
5房2衛
建坪
85.01坪
(主+陽81.36坪)
類型
廠房/土地
樓層
1-2樓/2樓
建坪單價
44.47 萬/坪
屋齡
46.8年
地坪
53.11坪
地坪單價
71.17 萬/坪

SinyiCare十大守護 信義房屋購售屋服務保障
點擊觀看生活機能
公車 (14)公共自行車 (1)
0瓊林南路四
3.1分鐘 / 230m
1瓊林南路四
2.9分鐘 / 213m
2西盛
8.9分鐘 / 640m
3西盛
9.9分鐘 / 717m
4勞工活動中心
11.7分鐘 / 843m
5勞工活動中心
11.8分鐘 / 855m
6東方之星
13.4分鐘 / 977m
7東方之星
13.6分鐘 / 994m
8瓊林南路五
5.9分鐘 / 449m
9新樹民安路口(新泰醫院)
12.9分鐘 / 935m
A新樹民安路口(新泰醫院)
13.3分鐘 / 964m
B瓊林南路五
6.4分鐘 / 483m
C瓊林南路
8.6分鐘 / 645m
D瓊林南路
8.1分鐘 / 607m
0瓊林南路四
3.1分鐘 / 230m
1瓊林南路四
2.9分鐘 / 213m
2西盛
8.9分鐘 / 640m
3西盛
9.9分鐘 / 717m
4勞工活動中心
11.7分鐘 / 843m
觀看全部

SinyiCare十大守護 信義房屋購售屋服務保障
建坪
85.01坪
詳情
建坪單價
44.47 萬/坪
地坪
53.11坪
主+陽
81.36坪=
主建物
78.06坪+
陽台
3.3坪
平台
1.65坪
防空避難室
2坪
地坪單價
71.17 萬/坪
格局
5房2衛
加蓋格局
--
屋齡
46.8年
類型
廠房/土地
樓層
1-2樓/2樓
車位
--
邊間/暗房
否/是
建物朝向
北
大門朝向
北
落地窗朝向
北
警衛管理
無
建物詳情
建物結構
鋼筋混凝土
外牆建材
方塊磚
每層戶數
1
謄本用途
工廠、辦公室、倉庫
使用分區
乙種工業區;
注意事項
土地申請建照涉及相關法令,能否取得須俟建管機關審核結果。
收合
物件特色
空間大好利用
塭仔圳重劃區旁廠房
門口方便停車
面寬約6米
持有土地約53坪
網路預約專人服務
乙種工業區
巷子可通行貨車
類似物件實價登錄(15)
距離該物件1公里內,半年內成交,廠房/土地
共有15間與我相似的實價登錄物件
編輯篩選條件
列表
地圖
年月
地址
類型/車位
總價
單價
建坪
地坪
屋齡
樓層
格局
114年10月

新北市新莊區新樹路244巷15號
廠房
5,400萬
51.7萬
104.45坪
88.28坪
45.0年
1樓/2樓
3房3廳3衛
備註資訊:陽台外推;其他增建;
114年10月
廠房新北市新莊區新樹路244巷15號5,400萬
51.7萬/坪
建坪104.45坪地坪88.28無車位
3房3廳3衛45.0年1樓/2樓
3房3廳3衛45.0年1樓/2樓
交易備註
114年07月

新北市新莊區新樹路293巷11號
廠房
43,000萬
123.15萬
349.18坪
1076.48坪
45.6年
1樓/2樓
0衛
備註資訊:買賣總價新台幣:肆億參仟萬元整含建物加值型營業稅土地價款新台幣:肆億貳仟陸佰壹拾萬捌仟伍佰元整,建物價款新台幣:參佰捌拾玖萬壹仟伍佰元整其他增建;未登記建物;
114年07月
廠房新北市新莊區新樹路293巷11號43,000萬
123.15萬/坪
建坪349.18坪地坪1076.48無車位
0衛45.6年1樓/2樓
0衛45.6年1樓/2樓
交易備註
114年10月

光榮段196地號
土地
300萬
28.26萬
0坪
10.61坪
0.0年
0樓/0樓
0衛
114年10月
土地光榮段196地號300萬
28.26萬/坪
建坪0坪地坪10.61無車位
0衛0.0年0樓/0樓
0衛0.0年0樓/0樓
114年10月

公正段163地號
土地
1,560萬
28.87萬
0坪
54.05坪
0.0年
0樓/0樓
0衛
備註資訊:包含公共設施保留地用地;
114年10月
土地公正段163地號1,560萬
28.87萬/坪
建坪0坪地坪54.05無車位
0衛0.0年0樓/0樓
0衛0.0年0樓/0樓
交易備註
114年10月

光明段174地號
土地
1,613萬
56.46萬
0坪
28.57坪
0.0年
0樓/0樓
0衛
備註資訊:包含公共設施保留地用地;
114年10月
土地光明段174地號1,613萬
56.46萬/坪
建坪0坪地坪28.57無車位
0衛0.0年0樓/0樓
0衛0.0年0樓/0樓
交易備註
- 資料來源:
為信義房屋最新成交行情;
為內政部最新公布的實價登錄資料;
該數值為系統運算,詳細請看說明
- 本實價登錄分類係綜合內政部實價登錄2020年7月之建物型態分類調整,以及申報登錄之建物型態、建物權狀登載之「主要用途」資料推估而成,故資料呈現類型、順序可能會與內政部不動產交易實價查詢服務網之搜尋結果有所差異,請斟酌參考。看看我們如何推估實價登錄類型與順序
- 特殊行情物件可能為受到特別條件或特殊關係影響所造成,詳情請參考頁面之粉色「備註資訊」欄。排除特殊交易功能,開啟後可即時排除顯示申報備註中關係人間交易、特殊交易情況及標的類型、與政府有關之交易、僅車位交易、分件登記、含多筆土地或多棟建物、 交易標的僅有建物、土地面積為0(含地上權物件),及其他備註資訊,關閉後則會恢復顯示。
- 歷史移轉次數依據信義成交行情及政府實價登錄資訊推估,再由系統比對當筆與前一筆實價登錄,交易明細完全吻合方計算漲跌幅,當筆交易漲跌幅計算式為(當筆交易之成交總價/前一筆交易之成交總價)-1,計算百分比至小數點後兩位;可能與實際交易有所落差,資料請斟酌參考。
為信義房屋最新成交行情;- 本實價登錄分類係綜合內政部實價登錄2020年7月之建物型態分類調整,以及申報登錄之建物型態、建物權狀登載之「主要用途」資料推估而成,故資料呈現類型、順序可能會與內政部不動產交易實價查詢服務網之搜尋結果有所差異,請斟酌參考。看看我們如何推估實價登錄類型與順序
- 特殊行情物件可能為受到特別條件或特殊關係影響所造成,詳情請參考頁面之粉色「備註資訊」欄。排除特殊交易功能,開啟後可即時排除顯示申報備註中關係人間交易、特殊交易情況及標的類型、與政府有關之交易、僅車位交易、分件登記、含多筆土地或多棟建物、 交易標的僅有建物、土地面積為0(含地上權物件),及其他備註資訊,關閉後則會恢復顯示。
- 歷史移轉次數依據信義成交行情及政府實價登錄資訊推估,再由系統比對當筆與前一筆實價登錄,交易明細完全吻合方計算漲跌幅,當筆交易漲跌幅計算式為(當筆交易之成交總價/前一筆交易之成交總價)-1,計算百分比至小數點後兩位;可能與實際交易有所落差,資料請斟酌參考。
查看實價登錄
本案專家

根據你的設定值計算
191,941/月


