
1/6
請注意,上方物件照片如有街景,為物件附近環境介紹,非物件本身。
1/6
有394人也在關注這間👀
本案專家

預約看屋
按下送出表示您已同意本站
服務條款
與隱私權聲明
送出
四維五福學區活巷透天
(5086VB)
高雄市苓雅區廈門街
有394人也在關注這間👀
詳情
總價
1,580萬
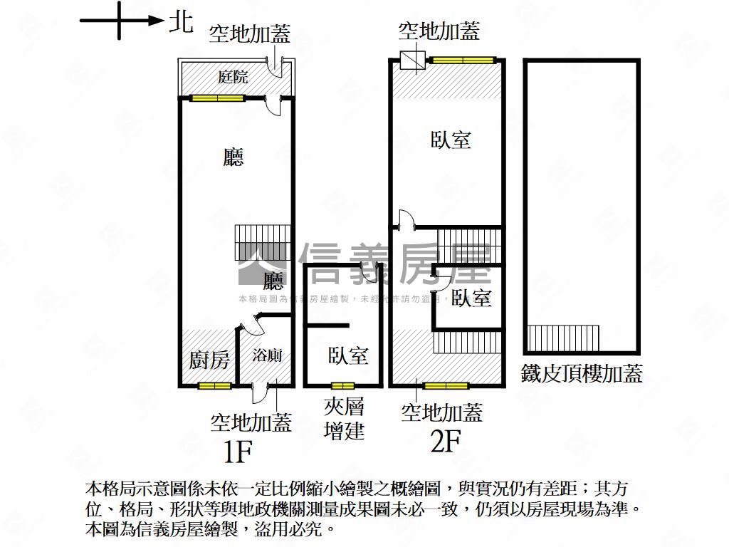
格局
3房2廳1衛
建坪
22.97坪
(主建物22.97坪)
類型
透天
樓層
1-2樓/2樓
建坪單價
68.79 萬/坪
屋齡
59.1年
地坪
19.66坪
地坪單價
--

SinyiCare十大守護 信義房屋購售屋服務保障
點擊觀看生活機能
捷運 (11)公車 (21)公共自行車 (1)
0文化中心站 - 出口2
12.5分鐘 / 882m
1信義國小站 - 出口4
9.8分鐘 / 652m
2文化中心站 - 出口1
12.4分鐘 / 865m
3信義國小站 - 出口5
10分鐘 / 650m
4文化中心站 - 出口3
12.2分鐘 / 862m
5信義國小站 - 出口2
11.8分鐘 / 784m
6信義國小站 - 出口1
11.8分鐘 / 785m
7文化中心站 - 出口4
13.9分鐘 / 955m
8信義國小站 - 出口3
12.8分鐘 / 871m
9凱旋公園站 - 出口
17.1分鐘 / 1204m
A衛生局站 - 出口
19.1分鐘 / 1324m
0文化中心站 - 出口2
12.5分鐘 / 882m
1信義國小站 - 出口4
9.8分鐘 / 652m
2文化中心站 - 出口1
12.4分鐘 / 865m
3信義國小站 - 出口5
10分鐘 / 650m
4文化中心站 - 出口3
12.2分鐘 / 862m
觀看全部

SinyiCare十大守護 信義房屋購售屋服務保障
建坪
22.97坪
詳情
建坪單價
68.79 萬/坪
地坪
19.66坪
主建物
22.97坪
格局
2房2廳
加蓋格局
1房1衛
屋齡
59.1年
類型
透天
樓層
1-2樓/2樓
車位
--
邊間/暗房
否/否
建物朝向
西南
警衛管理
無
建物詳情
建物結構
加強磚造
外牆建材
馬賽克
每層戶數
1
謄本用途
住宅
使用分區
第五種商業區; 道路用地;
注意事項
--
收合
物件特色
四維國小
五福國中
文化中心
活巷透天
類似物件實價登錄(13)
距離該物件1公里內,半年內成交,別墅/透天
共有13間與我相似的實價登錄物件
編輯篩選條件
列表
地圖
年月
地址
類型/車位
總價
單價
建坪
地坪
屋齡
樓層
格局
114年09月
別墅/透天高雄市苓雅區黃海街23之1號移轉3次
1,150萬
32.9萬/坪
114年07月


永福街31號
別墅/透天
1,750萬
65.57萬
26.69坪
22.69坪
59.8年
1樓/2樓
6房2廳4衛
備註資訊:頂樓加蓋;其他增建;
114年07月
別墅/透天永福街31號1,750萬
65.57萬/坪
建坪26.69坪地坪22.69無車位
6房2廳4衛59.8年1樓/2樓
6房2廳4衛59.8年1樓/2樓
信義成交交易備註
114年10月


尚義街136巷42號
別墅/透天
1,400萬
66.41萬
21.08坪
18.76坪
53.1年
1樓/2樓
2房2廳2衛
114年10月
別墅/透天尚義街136巷42號1,400萬
66.41萬/坪
建坪21.08坪地坪18.76無車位
2房2廳2衛53.1年1樓/2樓
2房2廳2衛53.1年1樓/2樓
信義成交備註資訊:頂樓加蓋;其他增建;
114年10月

高雄市苓雅區民族二路88巷51號
別墅/透天
660萬
27.83萬
23.72坪
22.08坪
52.8年
1樓/2樓
3房2廳2衛
備註資訊:親友、員工、共有人或其他特殊關係間之交易;
114年10月
別墅/透天高雄市苓雅區民族二路88巷51號660萬
27.83萬/坪
建坪23.72坪地坪22.08無車位
3房2廳2衛52.8年1樓/2樓
3房2廳2衛52.8年1樓/2樓
交易備註
- 資料來源:
為信義房屋最新成交行情;
為內政部最新公布的實價登錄資料;
該數值為系統運算,詳細請看說明
- 本實價登錄分類係綜合內政部實價登錄2020年7月之建物型態分類調整,以及申報登錄之建物型態、建物權狀登載之「主要用途」資料推估而成,故資料呈現類型、順序可能會與內政部不動產交易實價查詢服務網之搜尋結果有所差異,請斟酌參考。看看我們如何推估實價登錄類型與順序
- 特殊行情物件可能為受到特別條件或特殊關係影響所造成,詳情請參考頁面之粉色「備註資訊」欄。排除特殊交易功能,開啟後可即時排除顯示申報備註中關係人間交易、特殊交易情況及標的類型、與政府有關之交易、僅車位交易、分件登記、含多筆土地或多棟建物、 交易標的僅有建物、土地面積為0(含地上權物件),及其他備註資訊,關閉後則會恢復顯示。
- 歷史移轉次數依據信義成交行情及政府實價登錄資訊推估,再由系統比對當筆與前一筆實價登錄,交易明細完全吻合方計算漲跌幅,當筆交易漲跌幅計算式為(當筆交易之成交總價/前一筆交易之成交總價)-1,計算百分比至小數點後兩位;可能與實際交易有所落差,資料請斟酌參考。
為信義房屋最新成交行情;- 本實價登錄分類係綜合內政部實價登錄2020年7月之建物型態分類調整,以及申報登錄之建物型態、建物權狀登載之「主要用途」資料推估而成,故資料呈現類型、順序可能會與內政部不動產交易實價查詢服務網之搜尋結果有所差異,請斟酌參考。看看我們如何推估實價登錄類型與順序
- 特殊行情物件可能為受到特別條件或特殊關係影響所造成,詳情請參考頁面之粉色「備註資訊」欄。排除特殊交易功能,開啟後可即時排除顯示申報備註中關係人間交易、特殊交易情況及標的類型、與政府有關之交易、僅車位交易、分件登記、含多筆土地或多棟建物、 交易標的僅有建物、土地面積為0(含地上權物件),及其他備註資訊,關閉後則會恢復顯示。
- 歷史移轉次數依據信義成交行情及政府實價登錄資訊推估,再由系統比對當筆與前一筆實價登錄,交易明細完全吻合方計算漲跌幅,當筆交易漲跌幅計算式為(當筆交易之成交總價/前一筆交易之成交總價)-1,計算百分比至小數點後兩位;可能與實際交易有所落差,資料請斟酌參考。
查看實價登錄
本案專家

根據你的設定值計算
80,229/月


