
請注意,上方物件照片如有街景,為物件附近環境介紹,非物件本身。
1/22
有2人也在關注這間👀
本案專家
更多挑選
按下按鈕表示您已同意本站
服務條款
與隱私權聲明
預約看屋
埔里大地坪莊園清幽雅居
(5230UH)
南投縣埔里鎮中心路
有2人也在關注這間👀
總價
4,800萬
建坪單價
格局
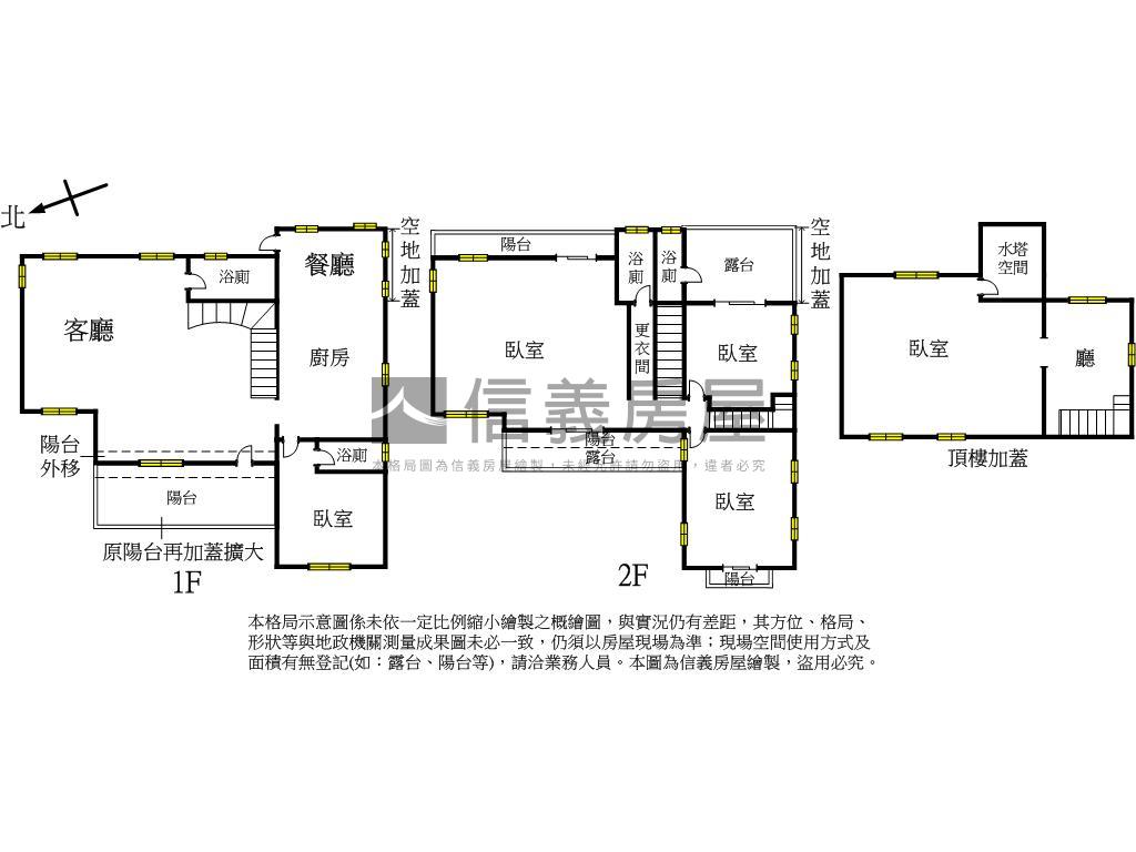
5房3廳4衛
含加蓋1房2廳3衛
房貸試算
計算
元/月
年|利率%概算|undefined年寬限期
符合首購資格嗎?
坪數詳情
細項
建坪72.18
主+陽72.18
地坪382.53
類型透天
屋齡15.9年
樓層1-2樓/2樓
加蓋格局1房2廳3衛
謄本用途農舍
使用分區特定農業區農牧用地;
完整物件詳情
本案專家
更多挑選
物件特色
面寬約15米舒適宜人
地坪約382坪好規劃
四面採光,光線通透
三主臥設計衛浴開窗
室內挑高怡居不壓迫
庭院空間好利用可停多車
遠眺視野可享夕陽景觀
太陽能熱水器私人水塔
周邊生活機能


SinyiCare十大守護 信義房屋購售屋服務保障
點擊觀看生活機能
寵物用品店 (1)
0猋璽犬舍
280m
0猋璽犬舍
280m

SinyiCare十大守護 信義房屋購售屋服務保障
類似物件實價登錄
(3)
1公里內 | 半年內 | 透天
4房2廳4衛
|69.67坪
|無車位
2,450萬35.16萬/坪
114/09成交
6房3廳3衛
|35.47坪
|無車位
480萬13.53萬/坪
114/10成交


