
1/17
請注意,上方物件照片如有街景,為物件附近環境介紹,非物件本身。
1/17
有51人也在關注這間👀
本案專家

預約看屋
按下送出表示您已同意本站
服務條款
與隱私權聲明
送出
近三和國小別墅
(5239UG)
台中市大雅區春亭二街
有51人也在關注這間👀
詳情
總價
1,888萬
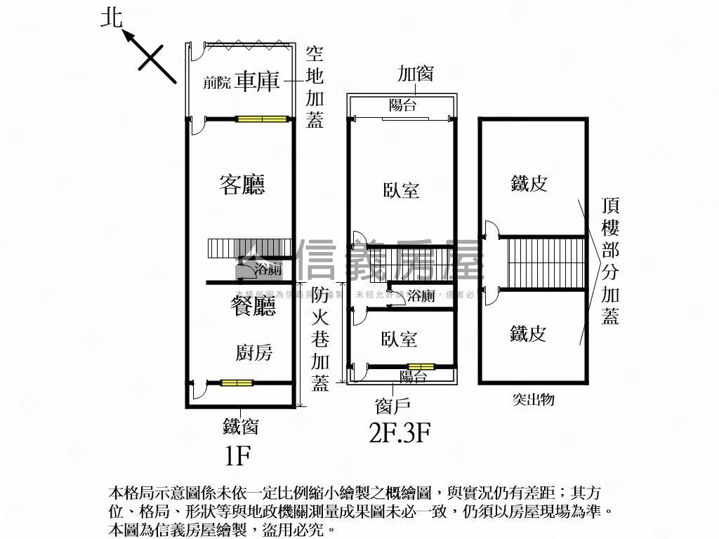
格局
4房2廳3衛
建坪
29.87坪
(主+陽27.2坪)
類型
別墅/透天
樓層
1-3樓/3樓
建坪單價
63.21 萬/坪
屋齡
30.7年
地坪
22.69坪
地坪單價
--

SinyiCare十大守護 信義房屋購售屋服務保障

點擊觀看生活機能
公車 (9)
0馬岡厝加油站
9分鐘 / 668m
1三和國小
4.7分鐘 / 344m
2三和國小
4.5分鐘 / 329m
3清泉醫院
11.1分鐘 / 825m
4清泉醫院
11.3分鐘 / 833m
5昌平雅潭路口
9.5分鐘 / 714m
6昌平雅潭路口
9.5分鐘 / 712m
7三和
8.1分鐘 / 586m
8惠明盲校
7.4分鐘 / 547m
0馬岡厝加油站
9分鐘 / 668m
1三和國小
4.7分鐘 / 344m
2三和國小
4.5分鐘 / 329m
3清泉醫院
11.1分鐘 / 825m
4清泉醫院
11.3分鐘 / 833m
觀看全部

SinyiCare十大守護 信義房屋購售屋服務保障
建坪
29.87坪
詳情
建坪單價
63.21 萬/坪
地坪
22.69坪
主+陽
27.2坪=
主建物
24.66坪+
陽台
2.54坪
屋頂突出物
2.67坪
格局
2房1廳1衛
加蓋格局
2房1廳2衛
屋齡
30.7年
類型
別墅/透天
樓層
1-3樓/3樓
車位
--
邊間/暗房
否/否
建物朝向
東北
大門朝向
東北
落地窗朝向
東北
警衛管理
無
建物詳情
建物結構
鋼筋混凝土
外牆建材
方塊磚
每層戶數
1
謄本用途
住家用
使用分區
農業區;
注意事項
--
收合
物件特色
格局方正好利用
近三和國小可走路上學
傳統格局前院方便停車
近國一交流道交通便利
寬敞明亮採光好
周遭買賣少難得稀有釋出
一手屋主屋況好
歡迎來電洽詢
類似物件實價登錄(3)
距離該物件1公里內,半年內成交,別墅/透天
共有3間與我相似的實價登錄物件
編輯篩選條件
列表
地圖
年月
地址
類型/車位
總價
單價
建坪
地坪
屋齡
樓層
格局
114年06月

台中市大雅區港尾路16之8號
別墅/透天
1,566萬
19.96萬
78.47坪
26.62坪
28.6年
1樓/3樓
4房3廳4衛
歷史移轉2次
備註資訊:陽台外推;頂樓加蓋;其他增建;
114年06月
別墅/透天台中市大雅區港尾路16之8號移轉2次
1,566萬
19.96萬/坪
建坪78.47坪地坪26.62無車位
4房3廳4衛28.6年1樓/3樓
4房3廳4衛28.6年1樓/3樓
交易備註
114年09月

台中市大雅區昌平路四段282北一巷27之2號
別墅/透天
1,980萬
36.66萬
54.01坪
20.39坪
1.3年
1樓/4樓
4房3廳5衛
歷史移轉2次
114年09月
別墅/透天台中市大雅區昌平路四段282北一巷27之2號移轉2次
1,980萬
36.66萬/坪
建坪54.01坪地坪20.39無車位
4房3廳5衛1.3年1樓/4樓
4房3廳5衛1.3年1樓/4樓
114年07月

台中市大雅區田心一街23巷19號
別墅/透天
1,758萬
36.28萬
48.45坪
23.32坪
10.8年
1樓/3樓
4房2廳3衛
歷史移轉3次
114年07月
別墅/透天台中市大雅區田心一街23巷19號移轉3次
1,758萬
36.28萬/坪
建坪48.45坪地坪23.32無車位
4房2廳3衛10.8年1樓/3樓
4房2廳3衛10.8年1樓/3樓
- 資料來源:
為信義房屋最新成交行情;
為內政部最新公布的實價登錄資料;
該數值為系統運算,詳細請看說明
- 本實價登錄分類係綜合內政部實價登錄2020年7月之建物型態分類調整,以及申報登錄之建物型態、建物權狀登載之「主要用途」資料推估而成,故資料呈現類型、順序可能會與內政部不動產交易實價查詢服務網之搜尋結果有所差異,請斟酌參考。看看我們如何推估實價登錄類型與順序
- 特殊行情物件可能為受到特別條件或特殊關係影響所造成,詳情請參考頁面之粉色「備註資訊」欄。排除特殊交易功能,開啟後可即時排除顯示申報備註中關係人間交易、特殊交易情況及標的類型、與政府有關之交易、僅車位交易、分件登記、含多筆土地或多棟建物、 交易標的僅有建物、土地面積為0(含地上權物件),及其他備註資訊,關閉後則會恢復顯示。
- 歷史移轉次數依據信義成交行情及政府實價登錄資訊推估,再由系統比對當筆與前一筆實價登錄,交易明細完全吻合方計算漲跌幅,當筆交易漲跌幅計算式為(當筆交易之成交總價/前一筆交易之成交總價)-1,計算百分比至小數點後兩位;可能與實際交易有所落差,資料請斟酌參考。
為信義房屋最新成交行情;- 本實價登錄分類係綜合內政部實價登錄2020年7月之建物型態分類調整,以及申報登錄之建物型態、建物權狀登載之「主要用途」資料推估而成,故資料呈現類型、順序可能會與內政部不動產交易實價查詢服務網之搜尋結果有所差異,請斟酌參考。看看我們如何推估實價登錄類型與順序
- 特殊行情物件可能為受到特別條件或特殊關係影響所造成,詳情請參考頁面之粉色「備註資訊」欄。排除特殊交易功能,開啟後可即時排除顯示申報備註中關係人間交易、特殊交易情況及標的類型、與政府有關之交易、僅車位交易、分件登記、含多筆土地或多棟建物、 交易標的僅有建物、土地面積為0(含地上權物件),及其他備註資訊,關閉後則會恢復顯示。
- 歷史移轉次數依據信義成交行情及政府實價登錄資訊推估,再由系統比對當筆與前一筆實價登錄,交易明細完全吻合方計算漲跌幅,當筆交易漲跌幅計算式為(當筆交易之成交總價/前一筆交易之成交總價)-1,計算百分比至小數點後兩位;可能與實際交易有所落差,資料請斟酌參考。
查看實價登錄
本案專家

根據你的設定值計算
95,869/月


