
1/22
請注意,上方物件照片如有街景,為物件附近環境介紹,非物件本身。
1/22
有5人也在關注這間👀
本案專家

預約看屋
按下送出表示您已同意本站
服務條款
與隱私權聲明
送出
有5人也在關注這間👀
詳情
總價(含車位)
14,846萬
格局
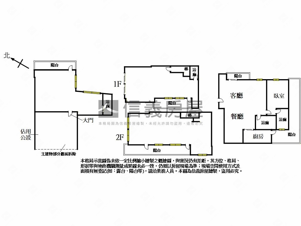
1房5廳4衛
建坪
167.98坪
(主+陽98.86坪)
類型
店面/辦公
樓層
1-2樓/15樓
建坪單價
87.61 萬/坪(扣除車位價及車坪)
屋齡
2.5年
地坪
22.4坪
地坪單價
--

SinyiCare十大守護 信義房屋購售屋服務保障
點擊觀看生活機能
捷運 (4)公車 (22)公共自行車 (2)停車場 (3)
0連城錦和站(興建中) - 出口
4.5分鐘 / 321m
1中和站 - 出口2
11.2分鐘 / 794m
2中和站 - 出口1
11.8分鐘 / 839m
3橋和站 - 出口
13.6分鐘 / 952m
0連城錦和站(興建中) - 出口
4.5分鐘 / 321m
1中和站 - 出口2
11.2分鐘 / 794m
2中和站 - 出口1
11.8分鐘 / 839m
3橋和站 - 出口
13.6分鐘 / 952m

SinyiCare十大守護 信義房屋購售屋服務保障
建坪
167.98坪
詳情
建坪單價
87.61 萬/坪(扣除車位價及車坪)
地坪
22.4坪
主+陽
98.86坪=
主建物
83.44坪+
陽台
15.42坪
共有部份
66.42坪
停車空間(含公設)
2.7坪
格局
1房5廳4衛
加蓋格局
--
屋齡
2.5年
類型
店面/辦公
樓層
1-2樓/15樓
車位
1個一樓平面(車位總價:365萬)更多
邊間/暗房
是/否
建物朝向
西北
大門朝向
西南
落地窗朝向
西南
警衛管理
全天候
管理費
13830 元/月
建物詳情
建物結構
鋼筋混凝土
外牆建材
二丁掛
每層戶數
1
謄本用途
店舖、飲食店、集合住宅
使用分區
住宅區;
注意事項
--
收合
物件特色
萬大線連城錦和捷運站
雙捷運:中和捷運站
近台貿黃昏市場
超市傳統市場機能佳
24小時全天候保全管理
全新落成稀有釋出
難得屋齡新超大店面辦公
一手出售物件
類似物件實價登錄(38)
距離該物件1公里內,半年內成交,店面/辦公
共有38間與我相似的實價登錄物件
編輯篩選條件
列表
地圖
年月
地址
類型/車位
總價
單價
建坪
地坪
屋齡
樓層
格局
備註資訊:夾層;
7,500萬
含車位價
65.44萬/坪
含車位計算
建坪114.6坪(含車位15.13坪)地坪19.56有車位
0衛1.8年1樓/17樓
0衛1.8年1樓/17樓
交易備註
114年10月

新北市中和區建八路197號十一樓
辦公
930萬
52.3萬
17.78坪
2.5坪
18.3年
11樓/14樓
1廳1衛
歷史移轉2次
114年10月
辦公新北市中和區建八路197號十一樓移轉2次
930萬
52.3萬/坪
建坪17.78坪地坪2.5無車位
1廳1衛18.3年11樓/14樓
1廳1衛18.3年11樓/14樓
114年07月

新北市中和區連勝街143號
店面
1,485萬
62.96萬
23.59坪
7.8坪
47.4年
1樓/4樓
3房1廳1衛
備註資訊:夾層;其他增建;
114年07月
店面新北市中和區連勝街143號1,485萬
62.96萬/坪
建坪23.59坪地坪7.8無車位
3房1廳1衛47.4年1樓/4樓
3房1廳1衛47.4年1樓/4樓
交易備註
114年07月


建八路181號11樓
辦公
有車位
1,086萬
含車位170萬
50.04萬
38.44萬
28.24坪
含車位4.41坪
3.27坪
18.0年
11樓/14樓
1廳1衛
114年07月
辦公建八路181號11樓1,086萬
含車位170萬
50.04萬/坪
38.44萬
建坪28.24坪
含車位4.41坪地坪3.27有車位
1廳1衛18.0年11樓/14樓
1廳1衛18.0年11樓/14樓
信義成交- 資料來源:
為信義房屋最新成交行情;
為內政部最新公布的實價登錄資料;
該數值為系統運算,詳細請看說明
- 本實價登錄分類係綜合內政部實價登錄2020年7月之建物型態分類調整,以及申報登錄之建物型態、建物權狀登載之「主要用途」資料推估而成,故資料呈現類型、順序可能會與內政部不動產交易實價查詢服務網之搜尋結果有所差異,請斟酌參考。看看我們如何推估實價登錄類型與順序
- 特殊行情物件可能為受到特別條件或特殊關係影響所造成,詳情請參考頁面之粉色「備註資訊」欄。排除特殊交易功能,開啟後可即時排除顯示申報備註中關係人間交易、特殊交易情況及標的類型、與政府有關之交易、僅車位交易、分件登記、含多筆土地或多棟建物、 交易標的僅有建物、土地面積為0(含地上權物件),及其他備註資訊,關閉後則會恢復顯示。
- 歷史移轉次數依據信義成交行情及政府實價登錄資訊推估,再由系統比對當筆與前一筆實價登錄,交易明細完全吻合方計算漲跌幅,當筆交易漲跌幅計算式為(當筆交易之成交總價/前一筆交易之成交總價)-1,計算百分比至小數點後兩位;可能與實際交易有所落差,資料請斟酌參考。
為信義房屋最新成交行情;- 本實價登錄分類係綜合內政部實價登錄2020年7月之建物型態分類調整,以及申報登錄之建物型態、建物權狀登載之「主要用途」資料推估而成,故資料呈現類型、順序可能會與內政部不動產交易實價查詢服務網之搜尋結果有所差異,請斟酌參考。看看我們如何推估實價登錄類型與順序
- 特殊行情物件可能為受到特別條件或特殊關係影響所造成,詳情請參考頁面之粉色「備註資訊」欄。排除特殊交易功能,開啟後可即時排除顯示申報備註中關係人間交易、特殊交易情況及標的類型、與政府有關之交易、僅車位交易、分件登記、含多筆土地或多棟建物、 交易標的僅有建物、土地面積為0(含地上權物件),及其他備註資訊,關閉後則會恢復顯示。
- 歷史移轉次數依據信義成交行情及政府實價登錄資訊推估,再由系統比對當筆與前一筆實價登錄,交易明細完全吻合方計算漲跌幅,當筆交易漲跌幅計算式為(當筆交易之成交總價/前一筆交易之成交總價)-1,計算百分比至小數點後兩位;可能與實際交易有所落差,資料請斟酌參考。
查看實價登錄
本案專家

根據你的設定值計算
753,850/月


