
1/22
請注意,上方物件照片如有街景,為物件附近環境介紹,非物件本身。
1/22
有12人也在關注這間👀
本案專家

預約看屋
按下送出表示您已同意本站
服務條款
與隱私權聲明
送出
☆推14期全新完工別墅☆
(5374NU)
台中市北屯區松柏二街
有12人也在關注這間👀
詳情
總價
5,980萬
格局
6房3廳7衛
建坪
95.25坪
(主+陽87.63坪)
類型
別墅/透天
樓層
1-5樓/5樓
建坪單價
62.78 萬/坪
屋齡
2.3年
地坪
42.35坪
地坪單價
--

SinyiCare十大守護 信義房屋購售屋服務保障

點擊觀看生活機能
捷運 (2)公車 (3)公共自行車 (1)
0松竹站 - 出口1
20.3分鐘 / 1475m
1松竹站 - 出口2
20分鐘 / 1438m
0松竹站 - 出口1
20.3分鐘 / 1475m
1松竹站 - 出口2
20分鐘 / 1438m

SinyiCare十大守護 信義房屋購售屋服務保障
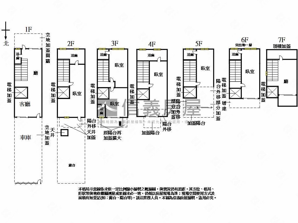
建坪
95.25坪
詳情
建坪單價
62.78 萬/坪
地坪
42.35坪
主+陽
87.63坪=
主建物
80.13坪+
陽台
7.5坪
屋頂突出物
7.63坪
格局
6房2廳4衛
加蓋格局
1廳3衛
屋齡
2.3年
類型
別墅/透天
樓層
1-5樓/5樓
車位
--
邊間/暗房
否/否
建物朝向
北
大門朝向
北
落地窗朝向
北
警衛管理
無
建物詳情
建物結構
鋼筋混凝土
外牆建材
二丁掛
每層戶數
1
謄本用途
店舖、管道間、住宅、樓梯間 水箱
使用分區
見土地使用分區證明影本;
注意事項
--
收合
物件特色
正14期稀有建案
2樓整層主臥
附近有公園
衛浴開窗通風佳
建商親自操刀品質好
買方服務費成交價1%
詳情洽本案經紀人員
信義房屋十大守護
類似物件實價登錄(20)
距離該物件1公里內,半年內成交,別墅/透天
共有20間與我相似的實價登錄物件
編輯篩選條件
列表
地圖
年月
地址
類型/車位
總價
單價
建坪
地坪
屋齡
樓層
格局
114年08月

台中市潭子區大通街93巷47弄9號
別墅/透天
4,320萬
43.97萬
98.26坪
35.76坪
1.5年
1樓/4樓
5房3廳6衛
備註資訊:土地價款1944萬元整,房屋價款2376萬元整
114年08月
別墅/透天台中市潭子區大通街93巷47弄9號4,320萬
43.97萬/坪
建坪98.26坪地坪35.76無車位
5房3廳6衛1.5年1樓/4樓
5房3廳6衛1.5年1樓/4樓
交易備註
114年06月

台中市北屯區松柏街23號
別墅/透天
3,900萬
54.18萬
71.98坪
27.21坪
1.1年
1樓/4樓
5房1廳4衛
歷史移轉2次
114年06月
別墅/透天台中市北屯區松柏街23號移轉2次
3,900萬
54.18萬/坪
建坪71.98坪地坪27.21無車位
5房1廳4衛1.1年1樓/4樓
5房1廳4衛1.1年1樓/4樓
114年10月

台中市北屯區昌平一街65號
別墅/透天
有車位
5,620萬
含車位價
含車位價
60.23萬
含車位計算
含車位計算
93.3坪
含車位--坪
含車位--坪
50.04坪
20.0年
1樓/3樓
4房3廳4衛
歷史移轉2次
備註資訊:其他增建;
114年10月
別墅/透天台中市北屯區昌平一街65號移轉2次
5,620萬
含車位價
60.23萬/坪
含車位計算
建坪93.3坪(含車位--坪)地坪50.04有車位
4房3廳4衛20.0年1樓/3樓
4房3廳4衛20.0年1樓/3樓
交易備註
114年09月

台中市北屯區豐美三街59號
別墅/透天
4,688萬
58.36萬
80.32坪
32.53坪
2.4年
1樓/4樓
5房3廳6衛
備註資訊:土地價款25784000元整。建物價款21096000元整其他增建;
114年09月
別墅/透天台中市北屯區豐美三街59號4,688萬
58.36萬/坪
建坪80.32坪地坪32.53無車位
5房3廳6衛2.4年1樓/4樓
5房3廳6衛2.4年1樓/4樓
交易備註
114年09月

台中市潭子區頭張路二段96之2號
別墅/透天
3,320萬
46.39萬
71.57坪
21.3坪
1.8年
1樓/4樓
4房2廳3衛
備註資訊:土地售價新台幣貳仟壹佰伍拾捌萬元整。建物售價新台幣壹仟壹佰陸拾貳萬元整。其他增建;
114年09月
別墅/透天台中市潭子區頭張路二段96之2號3,320萬
46.39萬/坪
建坪71.57坪地坪21.3無車位
4房2廳3衛1.8年1樓/4樓
4房2廳3衛1.8年1樓/4樓
交易備註
- 資料來源:
為信義房屋最新成交行情;
為內政部最新公布的實價登錄資料;
該數值為系統運算,詳細請看說明
- 本實價登錄分類係綜合內政部實價登錄2020年7月之建物型態分類調整,以及申報登錄之建物型態、建物權狀登載之「主要用途」資料推估而成,故資料呈現類型、順序可能會與內政部不動產交易實價查詢服務網之搜尋結果有所差異,請斟酌參考。看看我們如何推估實價登錄類型與順序
- 特殊行情物件可能為受到特別條件或特殊關係影響所造成,詳情請參考頁面之粉色「備註資訊」欄。排除特殊交易功能,開啟後可即時排除顯示申報備註中關係人間交易、特殊交易情況及標的類型、與政府有關之交易、僅車位交易、分件登記、含多筆土地或多棟建物、 交易標的僅有建物、土地面積為0(含地上權物件),及其他備註資訊,關閉後則會恢復顯示。
- 歷史移轉次數依據信義成交行情及政府實價登錄資訊推估,再由系統比對當筆與前一筆實價登錄,交易明細完全吻合方計算漲跌幅,當筆交易漲跌幅計算式為(當筆交易之成交總價/前一筆交易之成交總價)-1,計算百分比至小數點後兩位;可能與實際交易有所落差,資料請斟酌參考。
為信義房屋最新成交行情;- 本實價登錄分類係綜合內政部實價登錄2020年7月之建物型態分類調整,以及申報登錄之建物型態、建物權狀登載之「主要用途」資料推估而成,故資料呈現類型、順序可能會與內政部不動產交易實價查詢服務網之搜尋結果有所差異,請斟酌參考。看看我們如何推估實價登錄類型與順序
- 特殊行情物件可能為受到特別條件或特殊關係影響所造成,詳情請參考頁面之粉色「備註資訊」欄。排除特殊交易功能,開啟後可即時排除顯示申報備註中關係人間交易、特殊交易情況及標的類型、與政府有關之交易、僅車位交易、分件登記、含多筆土地或多棟建物、 交易標的僅有建物、土地面積為0(含地上權物件),及其他備註資訊,關閉後則會恢復顯示。
- 歷史移轉次數依據信義成交行情及政府實價登錄資訊推估,再由系統比對當筆與前一筆實價登錄,交易明細完全吻合方計算漲跌幅,當筆交易漲跌幅計算式為(當筆交易之成交總價/前一筆交易之成交總價)-1,計算百分比至小數點後兩位;可能與實際交易有所落差,資料請斟酌參考。
查看實價登錄
本案專家

根據你的設定值計算
303,652/月


