
1/22
請注意,上方物件照片如有街景,為物件附近環境介紹,非物件本身。
1/22
有247人也在關注這間👀
本案專家

預約看屋
按下送出表示您已同意本站
服務條款
與隱私權聲明
送出
新成屋!神岡學校旁別墅!
(5449AZ)
台中市神岡區福成路
有247人也在關注這間👀
詳情
總價
3,580萬
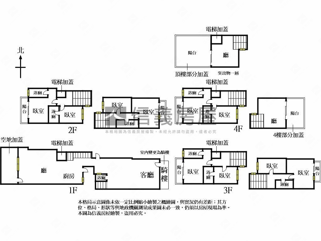
格局
10房4廳9衛
建坪
127.98坪
(主+陽120.29坪)
類型
透天
樓層
1-4樓/4樓
建坪單價
27.97 萬/坪
屋齡
1.0年
地坪
58.88坪
地坪單價
--

SinyiCare十大守護 信義房屋購售屋服務保障

點擊觀看生活機能
公車 (11)公共自行車 (1)
0圳堵三民橋頭
1.2分鐘 / 88m
1圳堵三民橋頭
1.4分鐘 / 107m
2三民路口
3.7分鐘 / 254m
3三民路口
4分鐘 / 279m
4圳堵
4.6分鐘 / 337m
5頂車站
4.2分鐘 / 308m
6頂車站
4.2分鐘 / 306m
7和睦兒童公園
6.2分鐘 / 442m
8和睦兒童公園
6.2分鐘 / 442m
9圳堵里口
7.3分鐘 / 529m
A圳堵里口
7.2分鐘 / 527m
0圳堵三民橋頭
1.2分鐘 / 88m
1圳堵三民橋頭
1.4分鐘 / 107m
2三民路口
3.7分鐘 / 254m
3三民路口
4分鐘 / 279m
4圳堵
4.6分鐘 / 337m
觀看全部

SinyiCare十大守護 信義房屋購售屋服務保障
建坪
127.98坪
詳情
建坪單價
27.97 萬/坪
地坪
58.88坪
主+陽
120.29坪=
主建物
113.99坪+
陽台
6.3坪
屋頂突出物
7.69坪
格局
10房4廳9衛
加蓋格局
--
屋齡
1.0年
類型
透天
樓層
1-4樓/4樓
車位
--
邊間/暗房
是/否
建物朝向
東南
大門朝向
東南
落地窗朝向
東南
警衛管理
無
建物詳情
建物結構
鋼筋混凝土
外牆建材
二丁掛
每層戶數
1
謄本用途
住宅、外廊、停車空間、樓梯間
使用分區
第一之二種住宅區; 道路用地;
注意事項
--
收合
物件特色
全新電梯別墅河岸景觀
室內大房間數多
神岡區圳堵國民小學旁
鬧中取靜居住安靜舒適
神岡交流道旁交通便捷
近機場出遊好方便
太多優點又漂亮歡迎來看
買方服務費成交價1%
類似物件實價登錄(4)
距離該物件1公里內,半年內成交,別墅/透天
共有4間與我相似的實價登錄物件
編輯篩選條件
列表
地圖
年月
地址
類型/車位
總價
單價
建坪
地坪
屋齡
樓層
格局
114年10月

台中市神岡區福成路90之6號
別墅/透天
有車位
3,300萬
含車位價
含車位價
25.22萬
含車位計算
含車位計算
130.86坪
含車位--坪
含車位--坪
56.28坪
0.8年
1樓/4樓
9房4廳8衛
114年10月
別墅/透天台中市神岡區福成路90之6號3,300萬
含車位價
25.22萬/坪
含車位計算
建坪130.86坪(含車位--坪)地坪56.28有車位
9房4廳8衛0.8年1樓/4樓
9房4廳8衛0.8年1樓/4樓
114年07月

台中市神岡區和睦路一段61巷42號
別墅/透天
980萬
30.31萬
32.33坪
20.8坪
44.5年
1樓/2樓
4房3廳2衛
歷史移轉2次
備註資訊:其他增建;
114年07月
別墅/透天台中市神岡區和睦路一段61巷42號移轉2次
980萬
30.31萬/坪
建坪32.33坪地坪20.8無車位
4房3廳2衛44.5年1樓/2樓
4房3廳2衛44.5年1樓/2樓
交易備註
114年06月

台中市神岡區和睦路一段95巷8弄5號
別墅/透天
500萬
15.95萬
31.34坪
27.53坪
46.7年
1樓/2樓
3房2廳2衛
歷史移轉2次
114年06月
別墅/透天台中市神岡區和睦路一段95巷8弄5號移轉2次
500萬
15.95萬/坪
建坪31.34坪地坪27.53無車位
3房2廳2衛46.7年1樓/2樓
3房2廳2衛46.7年1樓/2樓
114年06月

台中市神岡區和睦路一段417巷31號
別墅/透天
430萬
16.83萬
25.54坪
23.12坪
32.3年
1樓/3樓
6房2廳3衛
備註資訊:親友、員工、共有人或其他特殊關係間之交易;其他增建;未登記建物;
114年06月
別墅/透天台中市神岡區和睦路一段417巷31號430萬
16.83萬/坪
建坪25.54坪地坪23.12無車位
6房2廳3衛32.3年1樓/3樓
6房2廳3衛32.3年1樓/3樓
交易備註
- 資料來源:
為信義房屋最新成交行情;
為內政部最新公布的實價登錄資料;
該數值為系統運算,詳細請看說明
- 本實價登錄分類係綜合內政部實價登錄2020年7月之建物型態分類調整,以及申報登錄之建物型態、建物權狀登載之「主要用途」資料推估而成,故資料呈現類型、順序可能會與內政部不動產交易實價查詢服務網之搜尋結果有所差異,請斟酌參考。看看我們如何推估實價登錄類型與順序
- 特殊行情物件可能為受到特別條件或特殊關係影響所造成,詳情請參考頁面之粉色「備註資訊」欄。排除特殊交易功能,開啟後可即時排除顯示申報備註中關係人間交易、特殊交易情況及標的類型、與政府有關之交易、僅車位交易、分件登記、含多筆土地或多棟建物、 交易標的僅有建物、土地面積為0(含地上權物件),及其他備註資訊,關閉後則會恢復顯示。
- 歷史移轉次數依據信義成交行情及政府實價登錄資訊推估,再由系統比對當筆與前一筆實價登錄,交易明細完全吻合方計算漲跌幅,當筆交易漲跌幅計算式為(當筆交易之成交總價/前一筆交易之成交總價)-1,計算百分比至小數點後兩位;可能與實際交易有所落差,資料請斟酌參考。
為信義房屋最新成交行情;- 本實價登錄分類係綜合內政部實價登錄2020年7月之建物型態分類調整,以及申報登錄之建物型態、建物權狀登載之「主要用途」資料推估而成,故資料呈現類型、順序可能會與內政部不動產交易實價查詢服務網之搜尋結果有所差異,請斟酌參考。看看我們如何推估實價登錄類型與順序
- 特殊行情物件可能為受到特別條件或特殊關係影響所造成,詳情請參考頁面之粉色「備註資訊」欄。排除特殊交易功能,開啟後可即時排除顯示申報備註中關係人間交易、特殊交易情況及標的類型、與政府有關之交易、僅車位交易、分件登記、含多筆土地或多棟建物、 交易標的僅有建物、土地面積為0(含地上權物件),及其他備註資訊,關閉後則會恢復顯示。
- 歷史移轉次數依據信義成交行情及政府實價登錄資訊推估,再由系統比對當筆與前一筆實價登錄,交易明細完全吻合方計算漲跌幅,當筆交易漲跌幅計算式為(當筆交易之成交總價/前一筆交易之成交總價)-1,計算百分比至小數點後兩位;可能與實際交易有所落差,資料請斟酌參考。
查看實價登錄
本案專家

根據你的設定值計算
181,785/月


