
1/20
請注意,上方物件照片如有街景,為物件附近環境介紹,非物件本身。
1/20
有17人也在關注這間👀
本區專家
本案專家

預約看屋
按下送出表示您已同意本站
服務條款
與隱私權聲明
送出
有17人也在關注這間👀
詳情
總價(含車位)
13,000萬
格局
2廳2衛
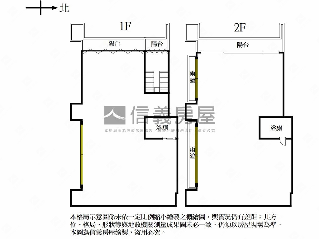
建坪
149.23坪
(主+陽83.78坪)
類型
店面
樓層
1-2樓/32樓
建坪單價
本物件含車位,詳洽經紀人員
屋齡
2.5年
地坪
14.91坪
地坪單價
詳洽經紀人員

SinyiCare十大守護 信義房屋購售屋服務保障

點擊觀看生活機能
捷運 (3)公車 (15)公共自行車 (3)停車場 (10)
0幸福站 - 出口1
8.1分鐘 / 550m
1幸福站 - 出口2
9.5分鐘 / 659m
2新北產業園區站 - 出口1
10.6分鐘 / 736m
0幸福站 - 出口1
8.1分鐘 / 550m
1幸福站 - 出口2
9.5分鐘 / 659m
2新北產業園區站 - 出口1
10.6分鐘 / 736m

SinyiCare十大守護 信義房屋購售屋服務保障
建坪
149.23坪
詳情
建坪單價
本物件含車位,詳洽經紀人員
地坪
14.91坪
主+陽
83.78坪=
主建物
76.58坪+
陽台
7.2坪
防空避難室兼停車場
23.84坪
共有部份
38.86坪
雨遮
2.75坪
地坪單價
詳洽經紀人員
格局
2廳2衛
加蓋格局
--
屋齡
2.5年
類型
店面
樓層
1-2樓/32樓
車位
2個坡道平面(車位總價:500萬)更多
邊間/暗房
是/否
建物朝向
北
警衛管理
全天候
建物詳情
建物結構
鋼骨鋼筋混凝土
外牆建材
石材
每層戶數
1
謄本用途
店舖
使用分區
商業區;
注意事項
--
收合
物件特色
頭前重劃區機能佳
長虹建設知名上市建商
大面寬適合文武百業
稀有雙層店面空間大
高質感石材外觀
附雙坡道平面大車位
網路預約專人服務
誠意出售敬請把握
類似物件實價登錄(6)
距離該物件1公里內,半年內成交,店面
共有6間與我相似的實價登錄物件
編輯篩選條件
列表
地圖
年月
地址
類型/車位
總價
單價
建坪
地坪
屋齡
樓層
格局
114年10月

新北市新莊區昌德街92號
店面
有車位
2,050萬
含車位375萬
含車位375萬
75.02萬
已扣除車位
已扣除車位
51.51坪
含車位29.19坪
含車位29.19坪
4.11坪
8.3年
1樓/11樓
1廳1衛
備註資訊:陽台外推;
114年10月
店面新北市新莊區昌德街92號2,050萬
含車位375萬
75.02萬/坪
已扣除車位
建坪51.51坪(含車位29.19坪)地坪4.11有車位
1廳1衛8.3年1樓/11樓
1廳1衛8.3年1樓/11樓
交易備註
備註資訊:其他增建;
114年08月
店面新北市新莊區福壽街136巷17號1,300萬
55.86萬/坪
114年06月

新北市新莊區幸福路599號
店面
3,960萬
127.72萬
31.01坪
12.85坪
45.3年
1樓/5樓
2廳1衛
備註資訊:其他增建;
114年06月
店面新北市新莊區幸福路599號3,960萬
127.72萬/坪
建坪31.01坪地坪12.85無車位
2廳1衛45.3年1樓/5樓
2廳1衛45.3年1樓/5樓
交易備註
114年06月

新北市三重區光復路二段42巷36號
店面
27,488萬
165.36萬
166.23坪
404.22坪
57.1年
1樓/1樓
0衛
歷史移轉2次
備註資訊:買賣標的現況為廠房作工業使用未登記建物;
114年06月
店面新北市三重區光復路二段42巷36號移轉2次
27,488萬
165.36萬/坪
建坪166.23坪地坪404.22無車位
0衛57.1年1樓/1樓
0衛57.1年1樓/1樓
交易備註
- 資料來源:
為信義房屋最新成交行情;
為內政部最新公布的實價登錄資料;
該數值為系統運算,詳細請看說明
- 本實價登錄分類係綜合內政部實價登錄2020年7月之建物型態分類調整,以及申報登錄之建物型態、建物權狀登載之「主要用途」資料推估而成,故資料呈現類型、順序可能會與內政部不動產交易實價查詢服務網之搜尋結果有所差異,請斟酌參考。看看我們如何推估實價登錄類型與順序
- 特殊行情物件可能為受到特別條件或特殊關係影響所造成,詳情請參考頁面之粉色「備註資訊」欄。排除特殊交易功能,開啟後可即時排除顯示申報備註中關係人間交易、特殊交易情況及標的類型、與政府有關之交易、僅車位交易、分件登記、含多筆土地或多棟建物、 交易標的僅有建物、土地面積為0(含地上權物件),及其他備註資訊,關閉後則會恢復顯示。
- 歷史移轉次數依據信義成交行情及政府實價登錄資訊推估,再由系統比對當筆與前一筆實價登錄,交易明細完全吻合方計算漲跌幅,當筆交易漲跌幅計算式為(當筆交易之成交總價/前一筆交易之成交總價)-1,計算百分比至小數點後兩位;可能與實際交易有所落差,資料請斟酌參考。
為信義房屋最新成交行情;- 本實價登錄分類係綜合內政部實價登錄2020年7月之建物型態分類調整,以及申報登錄之建物型態、建物權狀登載之「主要用途」資料推估而成,故資料呈現類型、順序可能會與內政部不動產交易實價查詢服務網之搜尋結果有所差異,請斟酌參考。看看我們如何推估實價登錄類型與順序
- 特殊行情物件可能為受到特別條件或特殊關係影響所造成,詳情請參考頁面之粉色「備註資訊」欄。排除特殊交易功能,開啟後可即時排除顯示申報備註中關係人間交易、特殊交易情況及標的類型、與政府有關之交易、僅車位交易、分件登記、含多筆土地或多棟建物、 交易標的僅有建物、土地面積為0(含地上權物件),及其他備註資訊,關閉後則會恢復顯示。
- 歷史移轉次數依據信義成交行情及政府實價登錄資訊推估,再由系統比對當筆與前一筆實價登錄,交易明細完全吻合方計算漲跌幅,當筆交易漲跌幅計算式為(當筆交易之成交總價/前一筆交易之成交總價)-1,計算百分比至小數點後兩位;可能與實際交易有所落差,資料請斟酌參考。
查看實價登錄
本區專家
本案專家

根據你的設定值計算
660,114/月


