吉璞長虹稀有邊間

更多相似
列印分享收藏
吉璞長虹稀有邊間(5551TL)
地址新北市汐止區福德二路建坪單價本物件含車位,詳洽經紀人員
7,650萬
3.92%
7,350
(含車位價)
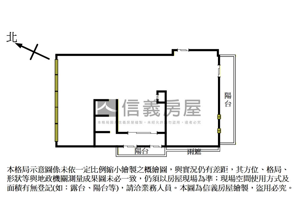
建坪162.91坪
主+陽(含其他)84.02坪細項
3廳1室
13.8年
辦公/大樓
3樓/12樓
依據你的設定值計算
依據你的設定值計算

元/月
試算
0人也在關注這間👀
本案專家
更多挑選
聯絡時間:皆可(9:00-21:00)
按下按鈕表示您已同意本站
服務條款
隱私權聲明
預約看屋
吉璞長虹稀有邊間
(5551TL)
新北市汐止區福德二路
有裝潢
前後陽台
有陽台
警衛管理
具垃圾處理
有花園
近公園
近捷運
近市場
近學校
新上架
有電梯
落地窗
近超市
0人也在關注這間👀
總價
7,350
7,650萬
3.92%
含車位價
建坪單價
本物件含車位,詳洽經紀人員
格局
3廳1室
房貸試算
計算
元/月
|利率%概算|undefined年寬限期
​符合首購資格嗎?
坪數詳情
細項
建坪162.91
主+陽(含其他)84.02
地坪22.4
類型辦公/大樓
屋齡13.8年
樓層3樓/12樓
管理費
約13,818 元/月
加蓋格局--
車位5個坡道平面
謄本用途一般事務所
使用分區乙種工業區;
完整物件詳情
本案專家
更多挑選
回電給我
物件特色
機能
近公園
近公園
近捷運
近捷運
近市場
近市場
近學校
近學校
近超市
近超市
特色
新上架
新上架
屋況
前後陽台
前後陽台
有陽台
有陽台
有裝潢
有裝潢
有電梯
有電梯
落地窗
落地窗
設施
具垃圾處理
具垃圾處理
有花園
有花園
警衛管理
警衛管理
24小時警衛管理
設有專門卸貨碼頭
邊間大空間規劃便利
周邊交通便利
大廳挑高氣派十足
網路預約專人服務
周邊生活機能
SinyiCare十大守護 信義房屋購售屋服務保障
點擊觀看生活機能
各學校位置僅為顯示與該校區的距離,非指學區;重要設施以現場實際狀況為主;興建中的捷運站站名尚未定案,請依照捷運官方實際核定站名為主
交通
學校
購物
醫療
金融
休閒
寵物
警消
捷運 (1)
公車 (31)
公共自行車 (2)
停車場 (4)
0社后站(規劃中) - 出口
6.2分鐘 / 427m
0社后站(規劃中) - 出口
6.2分鐘 / 427m
SinyiCare十大守護 信義房屋購售屋服務保障
類似物件實價登錄
(86)
1公里內 | 半年內 | 辦公/大樓
編輯篩選條件
2廳0衛
|
103.66
|
有車位
3,40032.76萬/坪
114/10成交
1房1廳1衛
|
8.24
|
無車位
32038.81萬/坪
115/01成交
義起聊