
1/21
請注意,上方物件照片如有街景,為物件附近環境介紹,非物件本身。
1/21
有0人也在關注這間👀
本案專家

預約看屋
按下送出表示您已同意本站
服務條款
與隱私權聲明
送出
遠眺山脈田園風光美麗透天
(5724YL)
苗栗縣苗栗市新庄街
有0人也在關注這間👀
詳情
總價
2,980萬
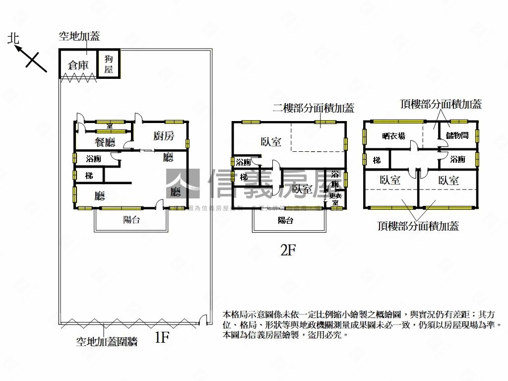
格局
4房4廳4衛2室
建坪
49.84坪
(主+陽49.84坪)
類型
別墅/透天
樓層
1-3樓/3樓
建坪單價
59.79 萬/坪
屋齡
16.0年
地坪
157.3坪
地坪單價
--

SinyiCare十大守護 信義房屋購售屋服務保障
點擊觀看生活機能
國小 (1)幼稚園 (1)
0縣立僑育國小
299m
0縣立僑育國小
299m

SinyiCare十大守護 信義房屋購售屋服務保障
建坪
49.84坪
詳情
建坪單價
59.79 萬/坪
地坪
157.3坪
主+陽
49.84坪=
主建物
43.26坪+
陽台
6.58坪
格局
4房4廳4衛2室
加蓋格局
--
屋齡
16.0年
類型
別墅/透天
樓層
1-3樓/3樓
車位
--
邊間/暗房
否/否
建物朝向
西南
大門朝向
西南
警衛管理
無
建物詳情
建物結構
鋼筋混凝土
外牆建材
石材
每層戶數
1
謄本用途
農舍
使用分區
特定農業區農牧用地;
注意事項
--
收合
物件特色
山脈相連田園風光
近苗栗市區採買方便
四面採光好通風佳
格局方正好規劃
用心維護 屋況良好
綠樹植栽庭院欣欣向榮
方便停車 空間大
網路預約 專人服務
類似物件實價登錄(17)
距離該物件1公里內,半年內成交,別墅/透天
共有17間與我相似的實價登錄物件
編輯篩選條件
列表
地圖
年月
地址
類型/車位
總價
單價
建坪
地坪
屋齡
樓層
格局
114年09月

苗栗縣苗栗市維勝街63巷10弄4號
別墅/透天
167萬
4.02萬
41.4坪
24.8坪
45.4年
1樓/4樓
5房2廳3衛
備註資訊:本案係為辦理自用住宅優惠增值稅之移轉,屬母子之間買賣親友、員工、共有人或其他特殊關係間之交易;頂樓加蓋;
114年09月
別墅/透天苗栗縣苗栗市維勝街63巷10弄4號167萬
4.02萬/坪
建坪41.4坪地坪24.8無車位
5房2廳3衛45.4年1樓/4樓
5房2廳3衛45.4年1樓/4樓
交易備註
114年08月

苗栗縣苗栗市維新里24鄰新庄街350巷82弄6號
別墅/透天
1,968萬
17.52萬
112.35坪
64.04坪
15.6年
1樓/3樓
6房2廳4衛
備註資訊:其他增建;
114年08月
別墅/透天苗栗縣苗栗市維新里24鄰新庄街350巷82弄6號1,968萬
17.52萬/坪
建坪112.35坪地坪64.04無車位
6房2廳4衛15.6年1樓/3樓
6房2廳4衛15.6年1樓/3樓
交易備註
114年06月

苗栗縣苗栗市維祥里7鄰維勝街63巷6弄12號
別墅/透天
450萬
7.91萬
56.86坪
32.7坪
26.3年
1樓/4樓
4房2廳3衛
備註資訊:親友、員工、共有人或其他特殊關係間之交易;
114年06月
別墅/透天苗栗縣苗栗市維祥里7鄰維勝街63巷6弄12號450萬
7.91萬/坪
建坪56.86坪地坪32.7無車位
4房2廳3衛26.3年1樓/4樓
4房2廳3衛26.3年1樓/4樓
交易備註
114年06月

苗栗縣苗栗市維新里10鄰新庄街4號
別墅/透天
309萬
14.93萬
20.69坪
10.35坪
46.5年
1樓/2樓
3房2廳1衛
歷史移轉2次
備註資訊:親友、員工、共有人或其他特殊關係間之交易;
114年06月
別墅/透天苗栗縣苗栗市維新里10鄰新庄街4號移轉2次
309萬
14.93萬/坪
建坪20.69坪地坪10.35無車位
3房2廳1衛46.5年1樓/2樓
3房2廳1衛46.5年1樓/2樓
交易備註
114年06月

苗栗縣苗栗市新苗里6鄰新東街9號
別墅/透天
900萬
16.84萬
53.44坪
38.33坪
49.9年
1樓/2樓
6房2衛
114年06月
別墅/透天苗栗縣苗栗市新苗里6鄰新東街9號900萬
16.84萬/坪
建坪53.44坪地坪38.33無車位
6房2衛49.9年1樓/2樓
6房2衛49.9年1樓/2樓
- 資料來源:
為信義房屋最新成交行情;
為內政部最新公布的實價登錄資料;
該數值為系統運算,詳細請看說明
- 本實價登錄分類係綜合內政部實價登錄2020年7月之建物型態分類調整,以及申報登錄之建物型態、建物權狀登載之「主要用途」資料推估而成,故資料呈現類型、順序可能會與內政部不動產交易實價查詢服務網之搜尋結果有所差異,請斟酌參考。看看我們如何推估實價登錄類型與順序
- 特殊行情物件可能為受到特別條件或特殊關係影響所造成,詳情請參考頁面之粉色「備註資訊」欄。排除特殊交易功能,開啟後可即時排除顯示申報備註中關係人間交易、特殊交易情況及標的類型、與政府有關之交易、僅車位交易、分件登記、含多筆土地或多棟建物、 交易標的僅有建物、土地面積為0(含地上權物件),及其他備註資訊,關閉後則會恢復顯示。
- 歷史移轉次數依據信義成交行情及政府實價登錄資訊推估,再由系統比對當筆與前一筆實價登錄,交易明細完全吻合方計算漲跌幅,當筆交易漲跌幅計算式為(當筆交易之成交總價/前一筆交易之成交總價)-1,計算百分比至小數點後兩位;可能與實際交易有所落差,資料請斟酌參考。
為信義房屋最新成交行情;- 本實價登錄分類係綜合內政部實價登錄2020年7月之建物型態分類調整,以及申報登錄之建物型態、建物權狀登載之「主要用途」資料推估而成,故資料呈現類型、順序可能會與內政部不動產交易實價查詢服務網之搜尋結果有所差異,請斟酌參考。看看我們如何推估實價登錄類型與順序
- 特殊行情物件可能為受到特別條件或特殊關係影響所造成,詳情請參考頁面之粉色「備註資訊」欄。排除特殊交易功能,開啟後可即時排除顯示申報備註中關係人間交易、特殊交易情況及標的類型、與政府有關之交易、僅車位交易、分件登記、含多筆土地或多棟建物、 交易標的僅有建物、土地面積為0(含地上權物件),及其他備註資訊,關閉後則會恢復顯示。
- 歷史移轉次數依據信義成交行情及政府實價登錄資訊推估,再由系統比對當筆與前一筆實價登錄,交易明細完全吻合方計算漲跌幅,當筆交易漲跌幅計算式為(當筆交易之成交總價/前一筆交易之成交總價)-1,計算百分比至小數點後兩位;可能與實際交易有所落差,資料請斟酌參考。
查看實價登錄
本案專家

根據你的設定值計算
151,318/月


