
請注意,上方物件照片如有街景,為物件附近環境介紹,非物件本身。
1/22
有510人也在關注這間👀
本案專家
更多挑選
按下按鈕表示您已同意本站
服務條款
與隱私權聲明
預約看屋
✦石牌學區一家人的夢想宅
(5731JC)
台北市北投區致遠一路二段
有510人也在關注這間👀
總價
2,080萬
建坪單價
62.39 萬/坪
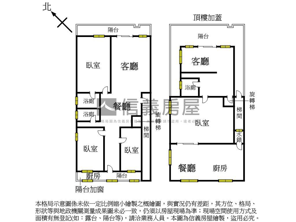
格局
4房4廳3衛
含加蓋1房2廳1衛
房貸試算
計算
元/月
年|利率%概算|undefined年寬限期
符合首購資格嗎?
坪數詳情
細項
建坪33.34
主+陽31.19
地坪9.04
類型公寓
屋齡42.6年
樓層5樓/5樓
加蓋格局1房2廳1衛
謄本用途住家用
使用分區第三種住宅區;
完整物件詳情
本案專家
更多挑選
物件特色
石牌國小國中明星學區
近捷運、學校、市場
前後陽台保留
格局方正空間好規劃
邊間明亮.正馬路棟距遠
使用空間大頂加有內外梯
近榮總振興醫療資源豐富
網路預約.專人為您服務
周邊生活機能


SinyiCare十大守護 信義房屋購售屋服務保障
點擊觀看生活機能
捷運 (6)
公車 (17)
公共自行車 (2)
停車場 (3)
0石牌站 - 出口1
6.5分鐘 / 443m
1石牌站 - 出口2
6.5分鐘 / 438m
2明德站 - 出口3
10.8分鐘 / 766m
3明德站 - 出口2
11.7分鐘 / 831m
4明德站 - 出口1
12.7分鐘 / 906m
5五分港站(規劃中) - 出口
19.9分鐘 / 1424m
0石牌站 - 出口1
6.5分鐘 / 443m
1石牌站 - 出口2
6.5分鐘 / 438m
2明德站 - 出口3
10.8分鐘 / 766m
3明德站 - 出口2
11.7分鐘 / 831m
4明德站 - 出口1
12.7分鐘 / 906m
完整周邊生活圈


SinyiCare十大守護 信義房屋購售屋服務保障
類似物件實價登錄
(53)
1公里內 | 半年內 | 公寓
3房2廳2衛
|35.16坪
|無車位
1,938萬55.12萬/坪
115/02成交
2房3廳2衛
|35.53坪
|無車位
3,200萬90.08萬/坪
115/01成交


