
1/22
請注意,上方物件照片如有街景,為物件附近環境介紹,非物件本身。
1/22
有5人也在關注這間👀
本區專家
本案專家

預約看屋
按下送出表示您已同意本站
服務條款
與隱私權聲明
送出
秀岡山莊美極別墅
(5828HB)
新北市新店區秀岡三街
有5人也在關注這間👀
詳情
總價(含車位)
4,688萬
格局
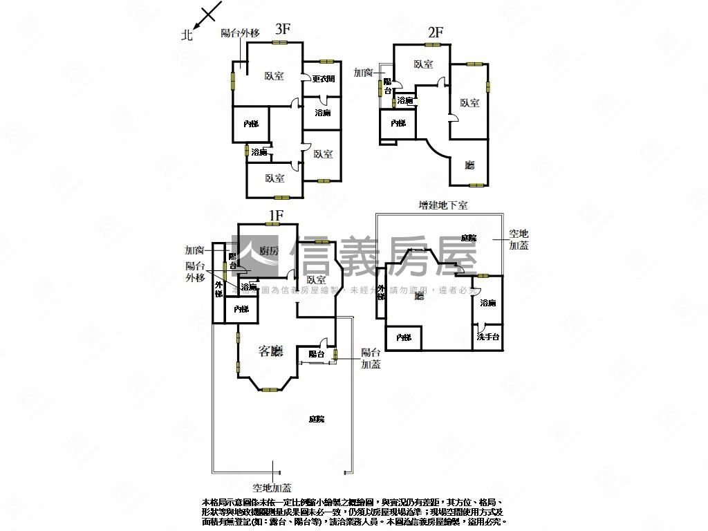
6房3廳5衛
建坪
84.45坪
(主+陽84.45坪)
類型
別墅/透天
樓層
1-3樓/3樓
建坪單價
本物件含車位及加蓋,詳洽經紀人員
屋齡
25.7年
地坪
127.72坪
地坪單價
詳洽經紀人員

SinyiCare十大守護 信義房屋購售屋服務保障


SinyiCare十大守護 信義房屋購售屋服務保障
建坪
84.45坪
詳情
建坪單價
本物件含車位及加蓋,詳洽經紀人員
地坪
127.72坪
主+陽
84.45坪=
主建物
78.74坪+
陽台
5.71坪
地坪單價
詳洽經紀人員
格局
6房2廳4衛
加蓋格局
1廳1衛
屋齡
25.7年
類型
別墅/透天
樓層
1-3樓/3樓
車位
1個其他,詳情請洽經紀人員更多
邊間/暗房
是/否
建物朝向
西北
大門朝向
西北
落地窗朝向
東南
警衛管理
全天候
管理費
10134 元/月
建物詳情
建物結構
鋼筋混凝土
外牆建材
二丁掛
每層戶數
1
謄本用途
住家用
使用分區
第一種住宅區;
注意事項
--
收合
物件特色
青山綠水環境優美
近康橋中學地段佳
室內空間大裝潢漂亮
人間仙境美麗山景
類似物件實價登錄(5)
距離該物件1公里內,半年內成交,別墅/透天
共有5間與我相似的實價登錄物件
編輯篩選條件
列表
地圖
年月
地址
類型/車位
總價
單價
建坪
地坪
屋齡
樓層
格局
114年07月

新北市新店區秀岡三街12巷8號
別墅/透天
3,700萬
43.63萬
84.81坪
144.84坪
25.8年
1樓/3樓
5房2廳3衛
備註資訊:車庫增建陽台外推;其他增建;
114年07月
別墅/透天新北市新店區秀岡三街12巷8號3,700萬
43.63萬/坪
建坪84.81坪地坪144.84無車位
5房2廳3衛25.8年1樓/3樓
5房2廳3衛25.8年1樓/3樓
交易備註
114年08月

新北市新店區秀岡二街51號
別墅/透天
有車位
2,980萬
含車位價
含車位價
45.48萬
含車位計算
含車位計算
65.53坪
含車位--坪
含車位--坪
90.91坪
23.0年
1樓/3樓
4房2廳3衛
歷史移轉2次
備註資訊:夾層;
114年08月
別墅/透天新北市新店區秀岡二街51號移轉2次
2,980萬
含車位價
45.48萬/坪
含車位計算
建坪65.53坪(含車位--坪)地坪90.91有車位
4房2廳3衛23.0年1樓/3樓
4房2廳3衛23.0年1樓/3樓
交易備註
114年07月

新北市新店區秀岡二街129號
別墅/透天
2,688萬
40.5萬
66.37坪
109.85坪
23.0年
1樓/2樓
5房2廳3衛
備註資訊:陽台外推;其他增建;
114年07月
別墅/透天新北市新店區秀岡二街129號2,688萬
40.5萬/坪
建坪66.37坪地坪109.85無車位
5房2廳3衛23.0年1樓/2樓
5房2廳3衛23.0年1樓/2樓
交易備註
114年08月

新北市新店區秀岡三街7巷26號
別墅/透天
有車位
4,000萬
含車位價
含車位價
37.79萬
含車位計算
含車位計算
105.85坪
含車位--坪
含車位--坪
139.11坪
7.1年
1樓/3樓
0衛
114年08月
別墅/透天新北市新店區秀岡三街7巷26號4,000萬
含車位價
37.79萬/坪
含車位計算
建坪105.85坪(含車位--坪)地坪139.11有車位
0衛7.1年1樓/3樓
0衛7.1年1樓/3樓
114年07月

新北市新店區秀岡三街7巷52號
別墅/透天
有車位
6,200萬
含車位價
含車位價
61.6萬
含車位計算
含車位計算
100.65坪
含車位--坪
含車位--坪
148.12坪
7.1年
1樓/3樓
5房2廳6衛
歷史移轉2次
備註資訊:頂樓加蓋;
114年07月
別墅/透天新北市新店區秀岡三街7巷52號移轉2次
6,200萬
含車位價
61.6萬/坪
含車位計算
建坪100.65坪(含車位--坪)地坪148.12有車位
5房2廳6衛7.1年1樓/3樓
5房2廳6衛7.1年1樓/3樓
交易備註
- 資料來源:
為信義房屋最新成交行情;
為內政部最新公布的實價登錄資料;
該數值為系統運算,詳細請看說明
- 本實價登錄分類係綜合內政部實價登錄2020年7月之建物型態分類調整,以及申報登錄之建物型態、建物權狀登載之「主要用途」資料推估而成,故資料呈現類型、順序可能會與內政部不動產交易實價查詢服務網之搜尋結果有所差異,請斟酌參考。看看我們如何推估實價登錄類型與順序
- 特殊行情物件可能為受到特別條件或特殊關係影響所造成,詳情請參考頁面之粉色「備註資訊」欄。排除特殊交易功能,開啟後可即時排除顯示申報備註中關係人間交易、特殊交易情況及標的類型、與政府有關之交易、僅車位交易、分件登記、含多筆土地或多棟建物、 交易標的僅有建物、土地面積為0(含地上權物件),及其他備註資訊,關閉後則會恢復顯示。
- 歷史移轉次數依據信義成交行情及政府實價登錄資訊推估,再由系統比對當筆與前一筆實價登錄,交易明細完全吻合方計算漲跌幅,當筆交易漲跌幅計算式為(當筆交易之成交總價/前一筆交易之成交總價)-1,計算百分比至小數點後兩位;可能與實際交易有所落差,資料請斟酌參考。
為信義房屋最新成交行情;- 本實價登錄分類係綜合內政部實價登錄2020年7月之建物型態分類調整,以及申報登錄之建物型態、建物權狀登載之「主要用途」資料推估而成,故資料呈現類型、順序可能會與內政部不動產交易實價查詢服務網之搜尋結果有所差異,請斟酌參考。看看我們如何推估實價登錄類型與順序
- 特殊行情物件可能為受到特別條件或特殊關係影響所造成,詳情請參考頁面之粉色「備註資訊」欄。排除特殊交易功能,開啟後可即時排除顯示申報備註中關係人間交易、特殊交易情況及標的類型、與政府有關之交易、僅車位交易、分件登記、含多筆土地或多棟建物、 交易標的僅有建物、土地面積為0(含地上權物件),及其他備註資訊,關閉後則會恢復顯示。
- 歷史移轉次數依據信義成交行情及政府實價登錄資訊推估,再由系統比對當筆與前一筆實價登錄,交易明細完全吻合方計算漲跌幅,當筆交易漲跌幅計算式為(當筆交易之成交總價/前一筆交易之成交總價)-1,計算百分比至小數點後兩位;可能與實際交易有所落差,資料請斟酌參考。
查看實價登錄
本區專家
本案專家

根據你的設定值計算
238,047/月


