
1/16
請注意,上方物件照片如有街景,為物件附近環境介紹,非物件本身。
1/16
有98人也在關注這間👀
本案專家

預約看屋
按下送出表示您已同意本站
服務條款
與隱私權聲明
送出
捷運黃線正街邊間車庫美透
(5835GB)
高雄市鳥松區松竹西街
有98人也在關注這間👀
詳情
總價
1,198萬
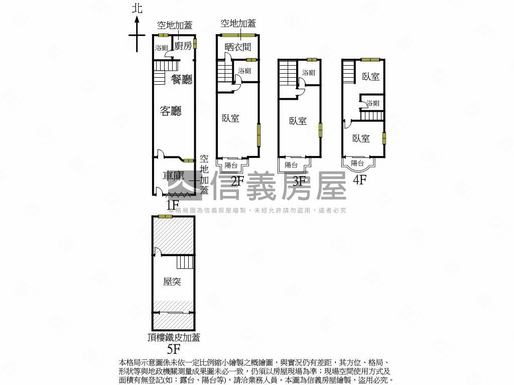
格局
4房2廳4衛
建坪
52.27坪
(主+陽47.73坪)
類型
透天
樓層
1-4樓/4樓
建坪單價
本物件含車位及加蓋,詳洽經紀人員
屋齡
33.4年
地坪
21.18坪
地坪單價
--

SinyiCare十大守護 信義房屋購售屋服務保障
點擊觀看生活機能
公車 (4)公共自行車 (1)
0三叢竹
4.8分鐘 / 351m
1三叢竹
5.2分鐘 / 377m
2牛稠埔(鳳山)
8.6分鐘 / 628m
3牛稠埔(鳳山)
8.8分鐘 / 645m
0三叢竹
4.8分鐘 / 351m
1三叢竹
5.2分鐘 / 377m
2牛稠埔(鳳山)
8.6分鐘 / 628m
3牛稠埔(鳳山)
8.8分鐘 / 645m

SinyiCare十大守護 信義房屋購售屋服務保障
建坪
52.27坪
詳情
建坪單價
本物件含車位及加蓋,詳洽經紀人員
地坪
21.18坪
主+陽
47.73坪=
主建物
44.65坪+
陽台
3.08坪
屋頂突出物
4.54坪
格局
4房2廳3衛
加蓋格局
1衛
屋齡
33.4年
類型
透天
樓層
1-4樓/4樓
車位
1個一樓平面
邊間/暗房
是/否
建物朝向
南
大門朝向
南
落地窗朝向
南
警衛管理
無
建物詳情
建物結構
鋼筋混凝土
外牆建材
二丁掛
每層戶數
1
謄本用途
住家用
使用分區
見土地使用分區證明影本;
注意事項
--
收合
物件特色
稀有正街邊間車庫透天
屋況良好不需大整理
鄰近未來捷運黃線站點
近文山特區澄清湖特區
第一手屋主 單純乾淨
出動入靜 交通便利
邊間採光良好 格局方正
一通電話專人服務
類似物件實價登錄(8)
距離該物件1公里內,半年內成交,別墅/透天
共有8間與我相似的實價登錄物件
編輯篩選條件
列表
地圖
年月
地址
類型/車位
總價
單價
建坪
地坪
屋齡
樓層
格局
114年09月

高雄市鳳山區北忠街321號
別墅/透天
3,800萬
37.3萬
101.88坪
58.38坪
30.8年
1樓/4樓
5房3廳8衛
114年09月
別墅/透天高雄市鳳山區北忠街321號3,800萬
37.3萬/坪
建坪101.88坪地坪58.38無車位
5房3廳8衛30.8年1樓/4樓
5房3廳8衛30.8年1樓/4樓
114年08月

高雄市鳥松區忠誠路41巷4弄29號
別墅/透天
638萬
17.98萬
35.49坪
19.11坪
37.6年
1樓/3樓
4房2廳3衛
114年08月
別墅/透天高雄市鳥松區忠誠路41巷4弄29號638萬
17.98萬/坪
建坪35.49坪地坪19.11無車位
4房2廳3衛37.6年1樓/3樓
4房2廳3衛37.6年1樓/3樓
114年08月

高雄市鳥松區忠誠路41巷4弄40號
別墅/透天
1,400萬
18.47萬
75.8坪
45.89坪
36.6年
1樓/3樓
6房2廳6衛
歷史移轉3次
備註資訊:壹樓空地增建、鐵皮屋頂增建、一樓增建沿著加蓋。其他增建;
114年08月
別墅/透天高雄市鳥松區忠誠路41巷4弄40號移轉3次
1,400萬
18.47萬/坪
建坪75.8坪地坪45.89無車位
6房2廳6衛36.6年1樓/3樓
6房2廳6衛36.6年1樓/3樓
交易備註
114年12月

高雄市鳳山區北文街60巷16號
別墅/透天
1,700萬
27.11萬
62.71坪
21.9坪
21.3年
1樓/4樓
5房2廳4衛
歷史移轉2次
114年12月
別墅/透天高雄市鳳山區北文街60巷16號移轉2次
1,700萬
27.11萬/坪
建坪62.71坪地坪21.9無車位
5房2廳4衛21.3年1樓/4樓
5房2廳4衛21.3年1樓/4樓
114年09月

高雄市鳳山區北華街72號
別墅/透天
3,050萬
36萬
84.72坪
20.57坪
1.1年
1樓/5樓
4房2廳6衛
114年09月
別墅/透天高雄市鳳山區北華街72號3,050萬
36萬/坪
建坪84.72坪地坪20.57無車位
4房2廳6衛1.1年1樓/5樓
4房2廳6衛1.1年1樓/5樓
- 資料來源:
為信義房屋最新成交行情;
為內政部最新公布的實價登錄資料;
該數值為系統運算,詳細請看說明
- 本實價登錄分類係綜合內政部實價登錄2020年7月之建物型態分類調整,以及申報登錄之建物型態、建物權狀登載之「主要用途」資料推估而成,故資料呈現類型、順序可能會與內政部不動產交易實價查詢服務網之搜尋結果有所差異,請斟酌參考。看看我們如何推估實價登錄類型與順序
- 特殊行情物件可能為受到特別條件或特殊關係影響所造成,詳情請參考頁面之粉色「備註資訊」欄。排除特殊交易功能,開啟後可即時排除顯示申報備註中關係人間交易、特殊交易情況及標的類型、與政府有關之交易、僅車位交易、分件登記、含多筆土地或多棟建物、 交易標的僅有建物、土地面積為0(含地上權物件),及其他備註資訊,關閉後則會恢復顯示。
- 歷史移轉次數依據信義成交行情及政府實價登錄資訊推估,再由系統比對當筆與前一筆實價登錄,交易明細完全吻合方計算漲跌幅,當筆交易漲跌幅計算式為(當筆交易之成交總價/前一筆交易之成交總價)-1,計算百分比至小數點後兩位;可能與實際交易有所落差,資料請斟酌參考。
為信義房屋最新成交行情;- 本實價登錄分類係綜合內政部實價登錄2020年7月之建物型態分類調整,以及申報登錄之建物型態、建物權狀登載之「主要用途」資料推估而成,故資料呈現類型、順序可能會與內政部不動產交易實價查詢服務網之搜尋結果有所差異,請斟酌參考。看看我們如何推估實價登錄類型與順序
- 特殊行情物件可能為受到特別條件或特殊關係影響所造成,詳情請參考頁面之粉色「備註資訊」欄。排除特殊交易功能,開啟後可即時排除顯示申報備註中關係人間交易、特殊交易情況及標的類型、與政府有關之交易、僅車位交易、分件登記、含多筆土地或多棟建物、 交易標的僅有建物、土地面積為0(含地上權物件),及其他備註資訊,關閉後則會恢復顯示。
- 歷史移轉次數依據信義成交行情及政府實價登錄資訊推估,再由系統比對當筆與前一筆實價登錄,交易明細完全吻合方計算漲跌幅,當筆交易漲跌幅計算式為(當筆交易之成交總價/前一筆交易之成交總價)-1,計算百分比至小數點後兩位;可能與實際交易有所落差,資料請斟酌參考。
查看實價登錄
本案專家

根據你的設定值計算
60,832/月


