
1/22
請注意,上方物件照片如有街景,為物件附近環境介紹,非物件本身。
1/22
有95人也在關注這間👀
本案專家

預約看屋
按下送出表示您已同意本站
服務條款
與隱私權聲明
送出
中正重劃環北印象美墅
(6356AG)
新竹縣竹北市新北街
有95人也在關注這間👀
詳情
總價
3,198萬
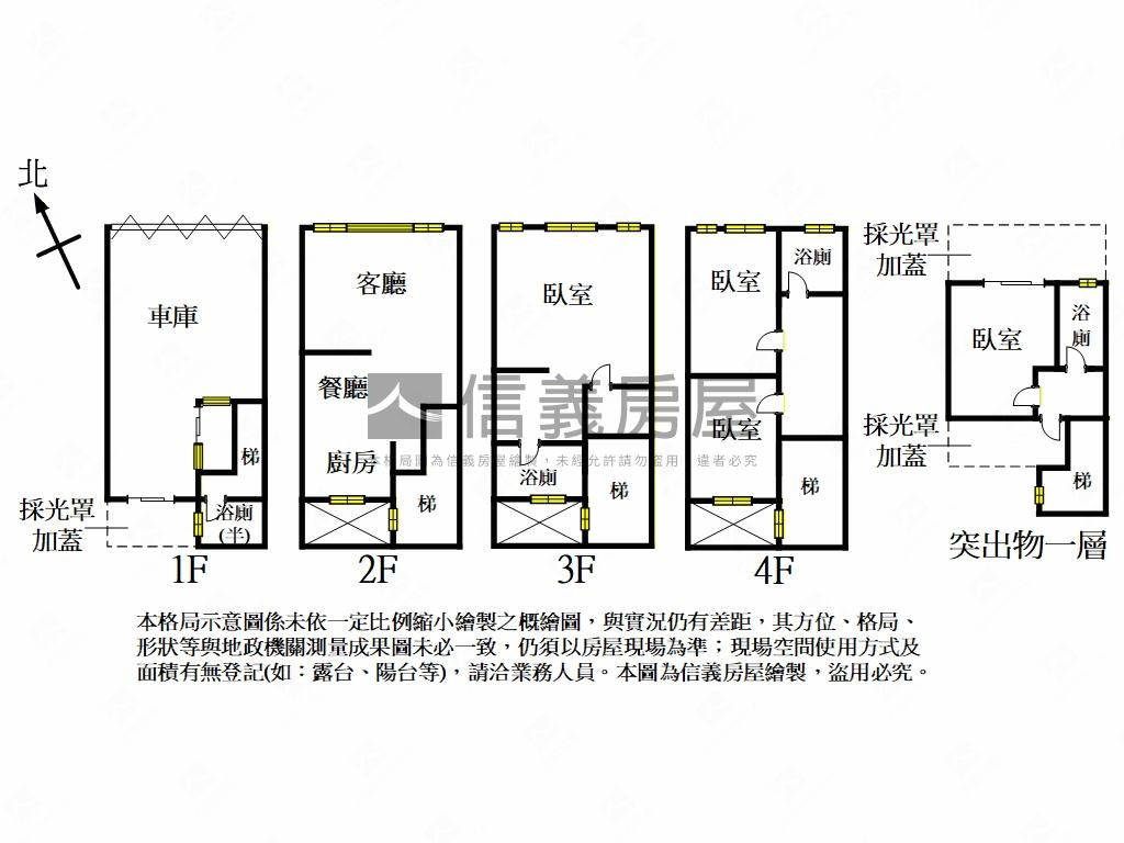
格局
4房2廳3.5衛
建坪
67.41坪
(主+陽59.51坪)
類型
別墅/透天
樓層
1-4樓/4樓
建坪單價
47.44 萬/坪
屋齡
6.6年
地坪
23.1坪
地坪單價
--

SinyiCare十大守護 信義房屋購售屋服務保障
點擊觀看生活機能
公車 (10)公共自行車 (1)
0新社里
6分鐘 / 411m
1新社里
6分鐘 / 414m
2新民街
10.9分鐘 / 754m
3新民街
10.3分鐘 / 709m
4聯興口
7.7分鐘 / 530m
5聯興口
7.7分鐘 / 530m
6溝貝街口
7.5分鐘 / 544m
7溝貝街口
7.4分鐘 / 543m
8新社尾
7.4分鐘 / 522m
9新社尾
7.5分鐘 / 532m
0新社里
6分鐘 / 411m
1新社里
6分鐘 / 414m
2新民街
10.9分鐘 / 754m
3新民街
10.3分鐘 / 709m
4聯興口
7.7分鐘 / 530m
觀看全部

SinyiCare十大守護 信義房屋購售屋服務保障
建坪
67.41坪
詳情
建坪單價
47.44 萬/坪
地坪
23.1坪
主+陽
59.51坪=
主建物
55.66坪+
陽台
3.85坪
屋頂突出物
7.9坪
格局
4房2廳3.5衛
加蓋格局
--
屋齡
6.6年
類型
別墅/透天
樓層
1-4樓/4樓
車位
--
邊間/暗房
否/否
建物朝向
東北
大門朝向
東北
落地窗朝向
東北
警衛管理
無
建物詳情
建物結構
鋼筋混凝土
外牆建材
二丁掛
每層戶數
1
謄本用途
住家用
使用分區
鄉村區乙種建築用地;
注意事項
--
收合
物件特色
新興規劃中正重劃區
近公園空氣清新舒適
鬧中取靜離城不離塵
優質透天稀有釋出
社區型透天規劃漂亮
格局方正前後採光
衛浴皆開窗通風好
買方服務費成交價1%
類似物件實價登錄(8)
距離該物件1公里內,半年內成交,別墅/透天
共有8間與我相似的實價登錄物件
編輯篩選條件
列表
地圖
年月
地址
類型/車位
總價
單價
建坪
地坪
屋齡
樓層
格局
114年09月

新竹縣竹北市中正西路280巷12弄7號
別墅/透天
1,900萬
27.68萬
68.63坪
32.2坪
30.5年
1樓/4樓
5房2廳3衛
備註資訊:其他增建;
114年09月
別墅/透天新竹縣竹北市中正西路280巷12弄7號1,900萬
27.68萬/坪
建坪68.63坪地坪32.2無車位
5房2廳3衛30.5年1樓/4樓
5房2廳3衛30.5年1樓/4樓
交易備註
114年08月

新竹縣竹北市新北街47巷2號
別墅/透天
2,566萬
42.66萬
60.14坪
27.76坪
5.6年
1樓/4樓
4房2廳4衛
歷史移轉2次
備註資訊:其他增建;
114年08月
別墅/透天新竹縣竹北市新北街47巷2號移轉2次
2,566萬
42.66萬/坪
建坪60.14坪地坪27.76無車位
4房2廳4衛5.6年1樓/4樓
4房2廳4衛5.6年1樓/4樓
交易備註
114年12月

新竹縣竹北市新興路181巷63弄28號
別墅/透天
1,250萬
27.7萬
45.13坪
28.17坪
4.8年
1樓/4樓
3房1廳4衛
歷史移轉2次
備註資訊:親友、員工、共有人或其他特殊關係間之交易;
114年12月
別墅/透天新竹縣竹北市新興路181巷63弄28號移轉2次
1,250萬
27.7萬/坪
建坪45.13坪地坪28.17無車位
3房1廳4衛4.8年1樓/4樓
3房1廳4衛4.8年1樓/4樓
交易備註
114年10月

新竹縣竹北市中正西路497巷3弄2號
別墅/透天
187萬
4.06萬
46.02坪
29.34坪
24.8年
1樓/3樓
5房2廳4衛
備註資訊:親友、員工、共有人或其他特殊關係間之交易;
114年10月
別墅/透天新竹縣竹北市中正西路497巷3弄2號187萬
4.06萬/坪
建坪46.02坪地坪29.34無車位
5房2廳4衛24.8年1樓/3樓
5房2廳4衛24.8年1樓/3樓
交易備註
114年11月

新竹縣竹北市中正西路139巷1弄14號
別墅/透天
1,800萬
39.69萬
45.35坪
26.77坪
31.4年
1樓/3樓
4房2廳3衛
歷史移轉2次
114年11月
別墅/透天新竹縣竹北市中正西路139巷1弄14號移轉2次
1,800萬
39.69萬/坪
建坪45.35坪地坪26.77無車位
4房2廳3衛31.4年1樓/3樓
4房2廳3衛31.4年1樓/3樓
- 資料來源:
為信義房屋最新成交行情;
為內政部最新公布的實價登錄資料;
該數值為系統運算,詳細請看說明
- 本實價登錄分類係綜合內政部實價登錄2020年7月之建物型態分類調整,以及申報登錄之建物型態、建物權狀登載之「主要用途」資料推估而成,故資料呈現類型、順序可能會與內政部不動產交易實價查詢服務網之搜尋結果有所差異,請斟酌參考。看看我們如何推估實價登錄類型與順序
- 特殊行情物件可能為受到特別條件或特殊關係影響所造成,詳情請參考頁面之粉色「備註資訊」欄。排除特殊交易功能,開啟後可即時排除顯示申報備註中關係人間交易、特殊交易情況及標的類型、與政府有關之交易、僅車位交易、分件登記、含多筆土地或多棟建物、 交易標的僅有建物、土地面積為0(含地上權物件),及其他備註資訊,關閉後則會恢復顯示。
- 歷史移轉次數依據信義成交行情及政府實價登錄資訊推估,再由系統比對當筆與前一筆實價登錄,交易明細完全吻合方計算漲跌幅,當筆交易漲跌幅計算式為(當筆交易之成交總價/前一筆交易之成交總價)-1,計算百分比至小數點後兩位;可能與實際交易有所落差,資料請斟酌參考。
為信義房屋最新成交行情;- 本實價登錄分類係綜合內政部實價登錄2020年7月之建物型態分類調整,以及申報登錄之建物型態、建物權狀登載之「主要用途」資料推估而成,故資料呈現類型、順序可能會與內政部不動產交易實價查詢服務網之搜尋結果有所差異,請斟酌參考。看看我們如何推估實價登錄類型與順序
- 特殊行情物件可能為受到特別條件或特殊關係影響所造成,詳情請參考頁面之粉色「備註資訊」欄。排除特殊交易功能,開啟後可即時排除顯示申報備註中關係人間交易、特殊交易情況及標的類型、與政府有關之交易、僅車位交易、分件登記、含多筆土地或多棟建物、 交易標的僅有建物、土地面積為0(含地上權物件),及其他備註資訊,關閉後則會恢復顯示。
- 歷史移轉次數依據信義成交行情及政府實價登錄資訊推估,再由系統比對當筆與前一筆實價登錄,交易明細完全吻合方計算漲跌幅,當筆交易漲跌幅計算式為(當筆交易之成交總價/前一筆交易之成交總價)-1,計算百分比至小數點後兩位;可能與實際交易有所落差,資料請斟酌參考。
查看實價登錄
本案專家

根據你的設定值計算
162,388/月


