
請注意,上方物件照片如有街景,為物件附近環境介紹,非物件本身。
1/22
有2人也在關注這間👀
本案專家
更多挑選
按下按鈕表示您已同意本站
服務條款
與隱私權聲明
預約看屋
大地坪獨棟透天
(6468WF)
台中市大肚區沙田路一段
有2人也在關注這間👀
總價
1,980萬
建坪單價
28.74 萬/坪
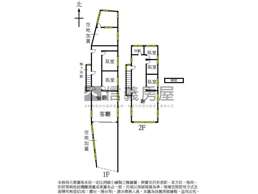
格局
5房3廳2衛
房貸試算
計算
元/月
年|利率%概算|undefined年寬限期
符合首購資格嗎?
坪數詳情
細項
建坪68.89
主(含其他)68.89
地坪91.81
類型透天
屋齡43.7年
樓層1-2樓/2樓
加蓋格局--
謄本用途住家用
使用分區因土地筆數過多或分區內容過長,請詳見不動產說明書或使用分區證明文件
完整物件詳情
本案專家
更多挑選
物件特色
獨棟透天
四面採光
地坪約91.8坪
停車方便
屋主誠售
交通便利
歡迎來電預約
買方服務費成交價1%
周邊生活機能


SinyiCare十大守護 信義房屋購售屋服務保障
點擊觀看生活機能
公車 (4)
0營埔里
4.9分鐘 / 365m
1營埔里
5.7分鐘 / 396m
2社腳
5.7分鐘 / 410m
3社腳
5.6分鐘 / 421m
0營埔里
4.9分鐘 / 365m
1營埔里
5.7分鐘 / 396m
2社腳
5.7分鐘 / 410m
3社腳
5.6分鐘 / 421m

SinyiCare十大守護 信義房屋購售屋服務保障
類似物件實價登錄
(1)
1公里內 | 半年內 | 透天
4房1廳2衛
|59.96坪
|無車位
300萬5萬/坪
115/02成交


