
1/9
請注意,上方物件照片如有街景,為物件附近環境介紹,非物件本身。
1/9
有20人也在關注這間👀
本案專家

預約看屋
按下送出表示您已同意本站
服務條款
與隱私權聲明
送出
南郭商圈收租聖品
(6540DN)
彰化縣彰化市中興路
有20人也在關注這間👀
詳情
總價
1,680萬
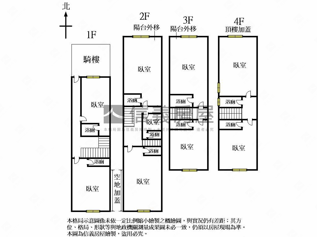
格局
9房9衛
建坪
49.37坪
(主建物45.13坪)
類型
透天
樓層
1-3樓/3樓
建坪單價
34.03 萬/坪
屋齡
44.7年
地坪
25.41坪
地坪單價
--

SinyiCare十大守護 信義房屋購售屋服務保障
點擊觀看生活機能
公車 (7)
0介壽南路(彰化高中)
3.3分鐘 / 231m
1保警新村
6.1分鐘 / 395m
2彰商
9.6分鐘 / 673m
3華陽公園
8.1分鐘 / 482m
4太極新村
5.4分鐘 / 412m
5體育場
11.8分鐘 / 768m
6成功營區
13.7分鐘 / 974m
0介壽南路(彰化高中)
3.3分鐘 / 231m
1保警新村
6.1分鐘 / 395m
2彰商
9.6分鐘 / 673m
3華陽公園
8.1分鐘 / 482m
4太極新村
5.4分鐘 / 412m
觀看全部

SinyiCare十大守護 信義房屋購售屋服務保障
建坪
49.37坪
詳情
建坪單價
34.03 萬/坪
地坪
25.41坪
主建物
45.13坪
騎樓
4.24坪
格局
5房7衛
加蓋格局
4房2衛
屋齡
44.7年
類型
透天
樓層
1-3樓/3樓
車位
--
邊間/暗房
否/否
建物朝向
北
大門朝向
北
警衛管理
日間
建物詳情
建物結構
鋼筋混凝土
外牆建材
二丁掛
每層戶數
1
謄本用途
住商用
使用分區
見土地使用分區證明影本;
注意事項
--
收合
物件特色
格局方正好利用
前後開窗採光佳
南郭、彰基商圈機能佳
穩定收租中
類似物件實價登錄(5)
距離該物件1公里內,半年內成交,別墅/透天
共有5間與我相似的實價登錄物件
編輯篩選條件
列表
地圖
年月
地址
類型/車位
總價
單價
建坪
地坪
屋齡
樓層
格局
114年10月

彰化縣彰化市介壽新村148號
別墅/透天
2,100萬
37.21萬
56.43坪
59.59坪
49.1年
1樓/2樓
5房3廳6衛
備註資訊:未登記建物;
114年10月
別墅/透天彰化縣彰化市介壽新村148號2,100萬
37.21萬/坪
建坪56.43坪地坪59.59無車位
5房3廳6衛49.1年1樓/2樓
5房3廳6衛49.1年1樓/2樓
交易備註
114年08月

彰化縣彰化市桃源街39號
別墅/透天
800萬
15.87萬
50.42坪
23.33坪
49.0年
1樓/3樓
3房2廳3衛
備註資訊:一樓後方頂樓加蓋;
114年08月
別墅/透天彰化縣彰化市桃源街39號800萬
15.87萬/坪
建坪50.42坪地坪23.33無車位
3房2廳3衛49.0年1樓/3樓
3房2廳3衛49.0年1樓/3樓
交易備註
114年09月

彰化縣彰化市公園路二段163巷15號
別墅/透天
600萬
15.52萬
38.66坪
16.05坪
47.9年
1樓/3樓
5房2廳3衛
歷史移轉2次
備註資訊:頂樓加蓋;其他增建;
114年09月
別墅/透天彰化縣彰化市公園路二段163巷15號移轉2次
600萬
15.52萬/坪
建坪38.66坪地坪16.05無車位
5房2廳3衛47.9年1樓/3樓
5房2廳3衛47.9年1樓/3樓
交易備註
114年07月

彰化縣彰化市公園路一段362巷16號
別墅/透天
720萬
28.34萬
25.41坪
23.29坪
50.0年
1樓/2樓
9房7衛
歷史移轉5次
備註資訊:其他增建:1樓後方曬衣間、側邊頂樓加蓋;其他增建;
114年07月
別墅/透天彰化縣彰化市公園路一段362巷16號移轉5次
720萬
28.34萬/坪
建坪25.41坪地坪23.29無車位
9房7衛50.0年1樓/2樓
9房7衛50.0年1樓/2樓
交易備註
114年09月

彰化縣彰化市公園路一段296巷6號
別墅/透天
715萬
25.95萬
27.55坪
21.48坪
52.1年
1樓/2樓
4房2廳2衛
歷史移轉2次
備註資訊:其他增建:壹樓空地、現況增建一併移轉其他增建;
114年09月
別墅/透天彰化縣彰化市公園路一段296巷6號移轉2次
715萬
25.95萬/坪
建坪27.55坪地坪21.48無車位
4房2廳2衛52.1年1樓/2樓
4房2廳2衛52.1年1樓/2樓
交易備註
- 資料來源:
為信義房屋最新成交行情;
為內政部最新公布的實價登錄資料;
該數值為系統運算,詳細請看說明
- 本實價登錄分類係綜合內政部實價登錄2020年7月之建物型態分類調整,以及申報登錄之建物型態、建物權狀登載之「主要用途」資料推估而成,故資料呈現類型、順序可能會與內政部不動產交易實價查詢服務網之搜尋結果有所差異,請斟酌參考。看看我們如何推估實價登錄類型與順序
- 特殊行情物件可能為受到特別條件或特殊關係影響所造成,詳情請參考頁面之粉色「備註資訊」欄。排除特殊交易功能,開啟後可即時排除顯示申報備註中關係人間交易、特殊交易情況及標的類型、與政府有關之交易、僅車位交易、分件登記、含多筆土地或多棟建物、 交易標的僅有建物、土地面積為0(含地上權物件),及其他備註資訊,關閉後則會恢復顯示。
- 歷史移轉次數依據信義成交行情及政府實價登錄資訊推估,再由系統比對當筆與前一筆實價登錄,交易明細完全吻合方計算漲跌幅,當筆交易漲跌幅計算式為(當筆交易之成交總價/前一筆交易之成交總價)-1,計算百分比至小數點後兩位;可能與實際交易有所落差,資料請斟酌參考。
為信義房屋最新成交行情;- 本實價登錄分類係綜合內政部實價登錄2020年7月之建物型態分類調整,以及申報登錄之建物型態、建物權狀登載之「主要用途」資料推估而成,故資料呈現類型、順序可能會與內政部不動產交易實價查詢服務網之搜尋結果有所差異,請斟酌參考。看看我們如何推估實價登錄類型與順序
- 特殊行情物件可能為受到特別條件或特殊關係影響所造成,詳情請參考頁面之粉色「備註資訊」欄。排除特殊交易功能,開啟後可即時排除顯示申報備註中關係人間交易、特殊交易情況及標的類型、與政府有關之交易、僅車位交易、分件登記、含多筆土地或多棟建物、 交易標的僅有建物、土地面積為0(含地上權物件),及其他備註資訊,關閉後則會恢復顯示。
- 歷史移轉次數依據信義成交行情及政府實價登錄資訊推估,再由系統比對當筆與前一筆實價登錄,交易明細完全吻合方計算漲跌幅,當筆交易漲跌幅計算式為(當筆交易之成交總價/前一筆交易之成交總價)-1,計算百分比至小數點後兩位;可能與實際交易有所落差,資料請斟酌參考。
查看實價登錄
本案專家

根據你的設定值計算
85,307/月


