
1/5
請注意,上方物件照片如有街景,為物件附近環境介紹,非物件本身。
1/5
有0人也在關注這間👀
本案專家

預約看屋
按下送出表示您已同意本站
服務條款
與隱私權聲明
送出
四維五福學區精美稀有透天
(6581BT)
高雄市苓雅區民權一路
有0人也在關注這間👀
詳情
總價
1,980萬
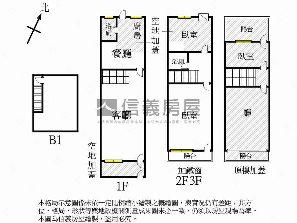
格局
5房3廳3衛
建坪
36.89坪
(主建物36.89坪)
類型
透天
樓層
1-3樓/3樓
建坪單價
53.67 萬/坪
屋齡
53.1年
地坪
19.36坪
地坪單價
--

SinyiCare十大守護 信義房屋購售屋服務保障
點擊觀看生活機能
捷運 (9)公車 (27)公共自行車 (1)停車場 (2)
0信義國小站 - 出口4
12.5分鐘 / 839m
1信義國小站 - 出口5
13.1分鐘 / 870m
2信義國小站 - 出口3
12.7分鐘 / 855m
3信義國小站 - 出口2
12.9分鐘 / 855m
4信義國小站 - 出口1
12.9分鐘 / 855m
5文化中心站 - 出口2
16.3分鐘 / 1156m
6文化中心站 - 出口1
16.3分鐘 / 1139m
7文化中心站 - 出口3
16.1分鐘 / 1136m
8文化中心站 - 出口4
17.8分鐘 / 1229m
0信義國小站 - 出口4
12.5分鐘 / 839m
1信義國小站 - 出口5
13.1分鐘 / 870m
2信義國小站 - 出口3
12.7分鐘 / 855m
3信義國小站 - 出口2
12.9分鐘 / 855m
4信義國小站 - 出口1
12.9分鐘 / 855m
觀看全部

SinyiCare十大守護 信義房屋購售屋服務保障
建坪
36.89坪
詳情
建坪單價
53.67 萬/坪
地坪
19.36坪
主建物
36.89坪
格局
2房2廳2衛
加蓋格局
3房1廳1衛
屋齡
53.1年
類型
透天
樓層
1-3樓/3樓
車位
--
邊間/暗房
否/否
建物朝向
東南
大門朝向
東南
落地窗朝向
東南
警衛管理
無
建物詳情
建物結構
加強磚造
外牆建材
二丁掛
每層戶數
1
謄本用途
住宅
使用分區
第五種住宅區;
注意事項
--
收合
物件特色
四維五福,優質學區
近文化中心,機能便利
格局方正,好規劃
鴛鴦梯,前後房間
屋況良好,敬請把握
巷道乾淨,出動入靜
正樓層,無夾層
近市場,採買便利
類似物件實價登錄(19)
距離該物件1公里內,半年內成交,別墅/透天
共有19間與我相似的實價登錄物件
編輯篩選條件
列表
地圖
年月
地址
類型/車位
總價
單價
建坪
地坪
屋齡
樓層
格局
114年08月

高雄市新興區忠孝一路12巷21號
別墅/透天
2,300萬
51.03萬
45.07坪
42.95坪
53.9年
1樓/2樓
5房2廳3衛
114年08月
別墅/透天高雄市新興區忠孝一路12巷21號2,300萬
51.03萬/坪
建坪45.07坪地坪42.95無車位
5房2廳3衛53.9年1樓/2樓
5房2廳3衛53.9年1樓/2樓
備註資訊:其他增建;
114年04月

高雄市新興區民生一路255巷51號
別墅/透天
1,299萬
62.73萬
20.71坪
11.19坪
54.0年
1樓/2樓
5房2廳1衛
歷史移轉2次
114年04月
別墅/透天高雄市新興區民生一路255巷51號移轉2次
1,299萬
62.73萬/坪
建坪20.71坪地坪11.19無車位
5房2廳1衛54.0年1樓/2樓
5房2廳1衛54.0年1樓/2樓
114年07月

高雄市苓雅區廣州一街106巷7號
別墅/透天
106萬
17.04萬
6.22坪
4.33坪
53.3年
1樓/2樓
3房1廳2衛
備註資訊:親友、員工、共有人或其他特殊關係間之交易;
114年07月
別墅/透天高雄市苓雅區廣州一街106巷7號106萬
17.04萬/坪
建坪6.22坪地坪4.33無車位
3房1廳2衛53.3年1樓/2樓
3房1廳2衛53.3年1樓/2樓
交易備註
114年06月

高雄市苓雅區永康街1號
別墅/透天
1,200萬
42.49萬
28.24坪
21.78坪
58.0年
1樓/2樓
4房3廳3衛
備註資訊:其他增建;未登記建物;
114年06月
別墅/透天高雄市苓雅區永康街1號1,200萬
42.49萬/坪
建坪28.24坪地坪21.78無車位
4房3廳3衛58.0年1樓/2樓
4房3廳3衛58.0年1樓/2樓
交易備註
- 資料來源:
為信義房屋最新成交行情;
為內政部最新公布的實價登錄資料;
該數值為系統運算,詳細請看說明
- 本實價登錄分類係綜合內政部實價登錄2020年7月之建物型態分類調整,以及申報登錄之建物型態、建物權狀登載之「主要用途」資料推估而成,故資料呈現類型、順序可能會與內政部不動產交易實價查詢服務網之搜尋結果有所差異,請斟酌參考。看看我們如何推估實價登錄類型與順序
- 特殊行情物件可能為受到特別條件或特殊關係影響所造成,詳情請參考頁面之粉色「備註資訊」欄。排除特殊交易功能,開啟後可即時排除顯示申報備註中關係人間交易、特殊交易情況及標的類型、與政府有關之交易、僅車位交易、分件登記、含多筆土地或多棟建物、 交易標的僅有建物、土地面積為0(含地上權物件),及其他備註資訊,關閉後則會恢復顯示。
- 歷史移轉次數依據信義成交行情及政府實價登錄資訊推估,再由系統比對當筆與前一筆實價登錄,交易明細完全吻合方計算漲跌幅,當筆交易漲跌幅計算式為(當筆交易之成交總價/前一筆交易之成交總價)-1,計算百分比至小數點後兩位;可能與實際交易有所落差,資料請斟酌參考。
為信義房屋最新成交行情;- 本實價登錄分類係綜合內政部實價登錄2020年7月之建物型態分類調整,以及申報登錄之建物型態、建物權狀登載之「主要用途」資料推估而成,故資料呈現類型、順序可能會與內政部不動產交易實價查詢服務網之搜尋結果有所差異,請斟酌參考。看看我們如何推估實價登錄類型與順序
- 特殊行情物件可能為受到特別條件或特殊關係影響所造成,詳情請參考頁面之粉色「備註資訊」欄。排除特殊交易功能,開啟後可即時排除顯示申報備註中關係人間交易、特殊交易情況及標的類型、與政府有關之交易、僅車位交易、分件登記、含多筆土地或多棟建物、 交易標的僅有建物、土地面積為0(含地上權物件),及其他備註資訊,關閉後則會恢復顯示。
- 歷史移轉次數依據信義成交行情及政府實價登錄資訊推估,再由系統比對當筆與前一筆實價登錄,交易明細完全吻合方計算漲跌幅,當筆交易漲跌幅計算式為(當筆交易之成交總價/前一筆交易之成交總價)-1,計算百分比至小數點後兩位;可能與實際交易有所落差,資料請斟酌參考。
查看實價登錄
本案專家

根據你的設定值計算
100,540/月


