
1/22
請注意,上方物件照片如有街景,為物件附近環境介紹,非物件本身。 1/22
1/22
有3人也在關注這間👀
本案專家

預約看屋
按下送出表示您已同意本站
服務條款
與隱私權聲明
送出
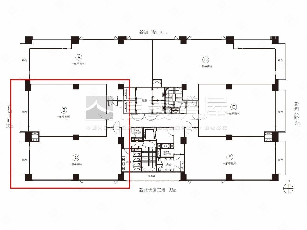
中悦寰宇一號高樓頂辦兩戶
(6621PY)
新北市新莊區新北大道三段
有3人也在關注這間👀
詳情
總價(含車位)
12,376萬
格局
2廳
建坪
195.6坪
(主+陽100.19坪)
類型
辦公/大樓
樓層
11樓/18樓
建坪單價
本物件含車位,詳洽經紀人員
屋齡
3.6年
地坪
24.28坪
地坪單價
詳洽經紀人員

SinyiCare十大守護 信義房屋購售屋服務保障
點擊觀看生活機能
捷運 (4)公車 (15)公共自行車 (3)停車場 (3)
0新北產業園區站 - 出口1
10.3分鐘 / 766m
1工商展覽中心站(規劃中) - 出口
11.7分鐘 / 851m
2新莊副都心站 - 出口2
11.9分鐘 / 841m
3新莊副都心站 - 出口1
12.3分鐘 / 874m
0新北產業園區站 - 出口1
10.3分鐘 / 766m
1工商展覽中心站(規劃中) - 出口
11.7分鐘 / 851m
2新莊副都心站 - 出口2
11.9分鐘 / 841m
3新莊副都心站 - 出口1
12.3分鐘 / 874m

SinyiCare十大守護 信義房屋購售屋服務保障
建坪
195.6坪
詳情
建坪單價
本物件含車位,詳洽經紀人員
地坪
24.28坪
主+陽
100.19坪= 
主建物
92.37坪+ 
陽台
7.82坪
共有部份
62.91坪
停車空間(含公設)
32.52坪
地坪單價
詳洽經紀人員
格局
2廳
加蓋格局
--
屋齡
3.6年
類型
辦公/大樓
樓層
11樓/18樓
車位
坡道平面、坡道平面、坡道平面、坡道平面(車位總價:960萬)更多
邊間/暗房
是/否
建物朝向
西
大門朝向
西
落地窗朝向
西
警衛管理
全天候
管理費
21570 元/月
建物詳情
建物結構
鋼筋混凝土
外牆建材
玻璃帷幕
每層戶數
6
謄本用途
一般事務所
使用分區
第一種商業區;
注意事項
--
收合
物件特色
北側知識產業園區頂辦
氣派玻璃帷幕外觀
高規格挑高大廳
公設規劃功能齊全
面公園兩戶可挑選
綠建築智慧建築雙標章
近未來雙捷運交會
中悦建設品質保證
類似物件實價登錄(178)
距離該物件1公里內,半年內成交,辦公/大樓
共有178間與我相似的實價登錄物件 編輯篩選條件
編輯篩選條件 列表
列表 地圖
地圖
年月
地址
類型/車位
總價
單價
建坪
地坪
屋齡
樓層
格局
1,468萬
含車位220萬
60.91萬/坪
已扣除車位
建坪31.42坪(含車位10.93坪)地坪2.89有車位
0衛4.0年12樓/18樓
0衛4.0年12樓/18樓
114年06月
辦公新北市新莊區新北大道三段220號九樓5,138萬
含車位520萬
56.6萬/坪
已扣除車位
114年04月


新北大道三段216號14樓等3戶
辦公
 有車位
有車位
19,700萬
含車位4840萬
含車位4840萬
54.2萬
已扣除車位
已扣除車位
387.99坪
含車位113.81坪
含車位113.81坪
40.83坪
3.0年
14樓/18樓
3廳0衛
114年04月
辦公新北大道三段216號14樓等3戶19,700萬
含車位4840萬
54.2萬/坪
已扣除車位
建坪387.99坪(含車位113.81坪)地坪40.83有車位
3廳0衛3.0年14樓/18樓
3廳0衛3.0年14樓/18樓
 信義成交
信義成交- 資料來源: 為信義房屋最新成交行情;
為信義房屋最新成交行情; 為內政部最新公布的實價登錄資料;
為內政部最新公布的實價登錄資料; 該數值為系統運算,詳細請看說明
該數值為系統運算,詳細請看說明
- 本實價登錄分類係綜合內政部實價登錄2020年7月之建物型態分類調整,以及申報登錄之建物型態、建物權狀登載之「主要用途」資料推估而成,故資料呈現類型、順序可能會與內政部不動產交易實價查詢服務網之搜尋結果有所差異,請斟酌參考。看看我們如何推估實價登錄類型與順序
- 特殊行情物件可能為受到特別條件或特殊關係影響所造成,詳情請參考頁面之粉色「備註資訊」欄。排除特殊交易功能,開啟後可即時排除顯示申報備註中關係人間交易、特殊交易情況及標的類型、與政府有關之交易、僅車位交易、分件登記、含多筆土地或多棟建物、 交易標的僅有建物、土地面積為0(含地上權物件),及其他備註資訊,關閉後則會恢復顯示。
- 歷史移轉次數依據信義成交行情及政府實價登錄資訊推估,再由系統比對當筆與前一筆實價登錄,交易明細完全吻合方計算漲跌幅,當筆交易漲跌幅計算式為(當筆交易之成交總價/前一筆交易之成交總價)-1,計算百分比至小數點後兩位;可能與實際交易有所落差,資料請斟酌參考。
 為信義房屋最新成交行情;
為信義房屋最新成交行情;- 本實價登錄分類係綜合內政部實價登錄2020年7月之建物型態分類調整,以及申報登錄之建物型態、建物權狀登載之「主要用途」資料推估而成,故資料呈現類型、順序可能會與內政部不動產交易實價查詢服務網之搜尋結果有所差異,請斟酌參考。看看我們如何推估實價登錄類型與順序
- 特殊行情物件可能為受到特別條件或特殊關係影響所造成,詳情請參考頁面之粉色「備註資訊」欄。排除特殊交易功能,開啟後可即時排除顯示申報備註中關係人間交易、特殊交易情況及標的類型、與政府有關之交易、僅車位交易、分件登記、含多筆土地或多棟建物、 交易標的僅有建物、土地面積為0(含地上權物件),及其他備註資訊,關閉後則會恢復顯示。
- 歷史移轉次數依據信義成交行情及政府實價登錄資訊推估,再由系統比對當筆與前一筆實價登錄,交易明細完全吻合方計算漲跌幅,當筆交易漲跌幅計算式為(當筆交易之成交總價/前一筆交易之成交總價)-1,計算百分比至小數點後兩位;可能與實際交易有所落差,資料請斟酌參考。
查看實價登錄
本案專家

根據你的設定值計算
628,428/月


