
1/7
請注意,上方物件照片如有街景,為物件附近環境介紹,非物件本身。
1/7
有0人也在關注這間👀
本案專家

預約看屋
按下送出表示您已同意本站
服務條款
與隱私權聲明
送出
近衛武營活巷騎樓透天
(66616B)
高雄市鳳山區凱旋路
有0人也在關注這間👀
詳情
總價
898萬
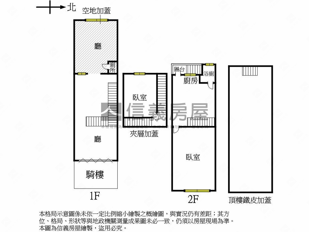
格局
2房2廳1.5衛
建坪
26.95坪
(主建物23.69坪)
類型
透天
樓層
1-2樓/2樓
建坪單價
--
屋齡
49.6年
地坪
19.97坪
地坪單價
44.97 萬/坪

SinyiCare十大守護 信義房屋購售屋服務保障
點擊觀看生活機能
公車 (12)公共自行車 (5)停車場 (1)
0鳳新高中(南京路)
3.2分鐘 / 232m
1新康街口
4.8分鐘 / 353m
2鳳新高中(南京路)
4.4分鐘 / 285m
3衛武營都會公園(南京路)
4.5分鐘 / 318m
4新康街口
5.3分鐘 / 393m
5南京路口(南福街)
5.7分鐘 / 372m
6衛武營都會公園(南京路)
5.3分鐘 / 354m
7南京路口(南福街)
6.6分鐘 / 426m
8新富路
6.7分鐘 / 449m
9鳳新高中
6.6分鐘 / 486m
A鳳新高中
6.7分鐘 / 495m
B新富路
6.7分鐘 / 449m
0鳳新高中(南京路)
3.2分鐘 / 232m
1新康街口
4.8分鐘 / 353m
2鳳新高中(南京路)
4.4分鐘 / 285m
3衛武營都會公園(南京路)
4.5分鐘 / 318m
4新康街口
5.3分鐘 / 393m
觀看全部

SinyiCare十大守護 信義房屋購售屋服務保障
建坪
26.95坪
詳情
建坪單價
--
地坪
19.97坪
主建物
23.69坪
騎樓
3.27坪
地坪單價
44.97 萬/坪
格局
1房1廳1衛
加蓋格局
1房1廳0.5衛
屋齡
49.6年
類型
透天
樓層
1-2樓/2樓
車位
--
邊間/暗房
否/否
建物朝向
東
大門朝向
東
落地窗朝向
東
警衛管理
無
建物詳情
建物結構
加強磚造
外牆建材
二丁掛
每層戶數
1
謄本用途
住商用
使用分區
見土地使用分區證明影本;
注意事項
--
收合
物件特色
自有騎樓,進出便利
近衛武營,生活機能佳
近學區,家長喜愛
格局方正,空間好利用
鬧中取靜,宜居宜住
南來北往交通便利
網路預約專人服務
買方服務費成交價1%
類似物件實價登錄(3)
距離該物件1公里內,半年內成交,別墅/透天
共有3間與我相似的實價登錄物件
編輯篩選條件
列表
地圖
年月
地址
類型/車位
總價
單價
建坪
地坪
屋齡
樓層
格局
114年09月

高雄市鳳山區五權南路149巷7號
別墅/透天
240萬
11.62萬
20.66坪
16.94坪
50.4年
1樓/2樓
3房2廳2衛
備註資訊:親友、員工、共有人或其他特殊關係間之交易;
114年09月
別墅/透天高雄市鳳山區五權南路149巷7號240萬
11.62萬/坪
建坪20.66坪地坪16.94無車位
3房2廳2衛50.4年1樓/2樓
3房2廳2衛50.4年1樓/2樓
交易備註
114年06月

高雄市鳳山區七聖街112巷7弄14號
別墅/透天
900萬
24.19萬
37.21坪
18.45坪
45.2年
1樓/3樓
4房2廳3衛
114年06月
別墅/透天高雄市鳳山區七聖街112巷7弄14號900萬
24.19萬/坪
建坪37.21坪地坪18.45無車位
4房2廳3衛45.2年1樓/3樓
4房2廳3衛45.2年1樓/3樓
114年04月

高雄市鳳山區武營路230巷2號
別墅/透天
700萬
19.77萬
35.4坪
19.06坪
47.8年
1樓/3樓
4房1廳3衛
歷史移轉2次
114年04月
別墅/透天高雄市鳳山區武營路230巷2號移轉2次
700萬
19.77萬/坪
建坪35.4坪地坪19.06無車位
4房1廳3衛47.8年1樓/3樓
4房1廳3衛47.8年1樓/3樓
- 資料來源:
為信義房屋最新成交行情;
為內政部最新公布的實價登錄資料;
該數值為系統運算,詳細請看說明
- 本實價登錄分類係綜合內政部實價登錄2020年7月之建物型態分類調整,以及申報登錄之建物型態、建物權狀登載之「主要用途」資料推估而成,故資料呈現類型、順序可能會與內政部不動產交易實價查詢服務網之搜尋結果有所差異,請斟酌參考。看看我們如何推估實價登錄類型與順序
- 特殊行情物件可能為受到特別條件或特殊關係影響所造成,詳情請參考頁面之粉色「備註資訊」欄。排除特殊交易功能,開啟後可即時排除顯示申報備註中關係人間交易、特殊交易情況及標的類型、與政府有關之交易、僅車位交易、分件登記、含多筆土地或多棟建物、 交易標的僅有建物、土地面積為0(含地上權物件),及其他備註資訊,關閉後則會恢復顯示。
- 歷史移轉次數依據信義成交行情及政府實價登錄資訊推估,再由系統比對當筆與前一筆實價登錄,交易明細完全吻合方計算漲跌幅,當筆交易漲跌幅計算式為(當筆交易之成交總價/前一筆交易之成交總價)-1,計算百分比至小數點後兩位;可能與實際交易有所落差,資料請斟酌參考。
為信義房屋最新成交行情;- 本實價登錄分類係綜合內政部實價登錄2020年7月之建物型態分類調整,以及申報登錄之建物型態、建物權狀登載之「主要用途」資料推估而成,故資料呈現類型、順序可能會與內政部不動產交易實價查詢服務網之搜尋結果有所差異,請斟酌參考。看看我們如何推估實價登錄類型與順序
- 特殊行情物件可能為受到特別條件或特殊關係影響所造成,詳情請參考頁面之粉色「備註資訊」欄。排除特殊交易功能,開啟後可即時排除顯示申報備註中關係人間交易、特殊交易情況及標的類型、與政府有關之交易、僅車位交易、分件登記、含多筆土地或多棟建物、 交易標的僅有建物、土地面積為0(含地上權物件),及其他備註資訊,關閉後則會恢復顯示。
- 歷史移轉次數依據信義成交行情及政府實價登錄資訊推估,再由系統比對當筆與前一筆實價登錄,交易明細完全吻合方計算漲跌幅,當筆交易漲跌幅計算式為(當筆交易之成交總價/前一筆交易之成交總價)-1,計算百分比至小數點後兩位;可能與實際交易有所落差,資料請斟酌參考。
查看實價登錄
本案專家

根據你的設定值計算
45,599/月


