
1/22
請注意,上方物件照片如有街景,為物件附近環境介紹,非物件本身。
1/22
有188人也在關注這間👀
本案專家

預約看屋
按下送出表示您已同意本站
服務條款
與隱私權聲明
送出
太平近勤益臨路透天
(6713JD)
台中市太平區中山路二段
有188人也在關注這間👀
詳情
總價
1,498萬
1598萬
格局
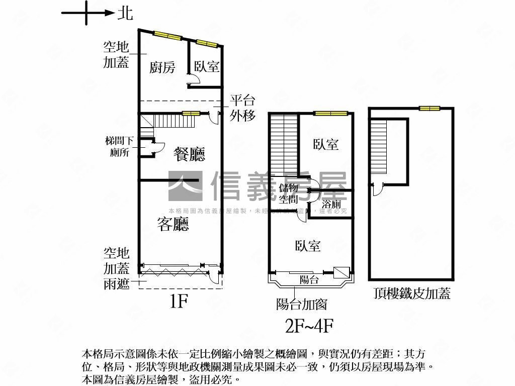
7房2廳4衛
建坪
60.44坪
(主+陽56.79坪)
類型
透天
樓層
1-4樓/4樓
建坪單價
24.78 萬/坪
屋齡
30.6年
地坪
20.74坪
地坪單價
--

SinyiCare十大守護 信義房屋購售屋服務保障
點擊觀看生活機能
公車 (12)公共自行車 (1)
0三中心
4.3分鐘 / 318m
1三中心
4.4分鐘 / 327m
2坪林
2.6分鐘 / 199m
3太平國中
3.3分鐘 / 226m
4太平國中
3.4分鐘 / 233m
5坪林
3分鐘 / 229m
6如意新村
3.8分鐘 / 283m
7如意新村
3.8分鐘 / 282m
8叉路口(中山路)
7.5分鐘 / 539m
9叉路口(中山路)
7.4分鐘 / 527m
A勤益科技大學
6.4分鐘 / 465m
B勤益科技大學
6.9分鐘 / 513m
0三中心
4.3分鐘 / 318m
1三中心
4.4分鐘 / 327m
2坪林
2.6分鐘 / 199m
3太平國中
3.3分鐘 / 226m
4太平國中
3.4分鐘 / 233m
觀看全部

SinyiCare十大守護 信義房屋購售屋服務保障
建坪
60.44坪
詳情
建坪單價
24.78 萬/坪
地坪
20.74坪
主+陽
56.79坪=
主建物
53.31坪+
陽台
3.48坪
屋頂突出物
2.63坪
平台
1.02坪
格局
6房2廳4衛
加蓋格局
1房
屋齡
30.6年
類型
透天
樓層
1-4樓/4樓
車位
--
邊間/暗房
否/否
建物朝向
東
警衛管理
無
建物詳情
建物結構
鋼筋混凝土
外牆建材
方塊磚
每層戶數
1
謄本用途
店舖、住宅、梯間
使用分區
鄉村區乙種建築用地;
注意事項
--
收合
物件特色
近太平中山路機能佳
適合三代同堂
近新光重劃區交通方便
近全聯、便利商店
近勤益大學、太平國中
近中國醫bot院區
屋主誠售歡迎約看
信義購售屋享十大守護
類似物件實價登錄(21)
距離該物件1公里內,半年內成交,別墅/透天
共有21間與我相似的實價登錄物件
編輯篩選條件
列表
地圖
年月
地址
類型/車位
總價
單價
建坪
地坪
屋齡
樓層
格局
114年12月

台中市太平區中山路二段129巷16號
別墅/透天
有車位
183萬
含車位價
含車位價
3萬
含車位計算
含車位計算
61.09坪
含車位--坪
含車位--坪
22.99坪
30.0年
1樓/4樓
4房3廳3衛
備註資訊:親友、員工、共有人或其他特殊關係間之交易;
114年12月
別墅/透天台中市太平區中山路二段129巷16號183萬
含車位價
3萬/坪
含車位計算
建坪61.09坪(含車位--坪)地坪22.99有車位
4房3廳3衛30.0年1樓/4樓
4房3廳3衛30.0年1樓/4樓
交易備註
114年12月

台中市太平區坪林路57之1-7號
別墅/透天
2,340萬
36.19萬
64.66坪
28.29坪
2.1年
1樓/4樓
5房2廳6衛
備註資訊:其他增建;
114年12月
別墅/透天台中市太平區坪林路57之1-7號2,340萬
36.19萬/坪
建坪64.66坪地坪28.29無車位
5房2廳6衛2.1年1樓/4樓
5房2廳6衛2.1年1樓/4樓
交易備註
114年09月

台中市太平區中山路一段322巷12弄45號
別墅/透天
1,745萬
27.67萬
63.07坪
29.49坪
19.4年
1樓/4樓
4房3廳3衛
歷史移轉3次
備註資訊:其他增建;
114年09月
別墅/透天台中市太平區中山路一段322巷12弄45號移轉3次
1,745萬
27.67萬/坪
建坪63.07坪地坪29.49無車位
4房3廳3衛19.4年1樓/4樓
4房3廳3衛19.4年1樓/4樓
交易備註
114年09月

台中市太平區坪林路46巷15號
別墅/透天
1,690萬
24.84萬
68.05坪
44.06坪
26.8年
1樓/4樓
5房2廳6衛
歷史移轉3次
備註資訊:陽台外推;
114年09月
別墅/透天台中市太平區坪林路46巷15號移轉3次
1,690萬
24.84萬/坪
建坪68.05坪地坪44.06無車位
5房2廳6衛26.8年1樓/4樓
5房2廳6衛26.8年1樓/4樓
交易備註
114年07月

台中市太平區坪林路42巷11號
別墅/透天
1,858萬
29.65萬
62.65坪
44.79坪
6.9年
1樓/3樓
5房2廳3衛
歷史移轉2次
備註資訊:其他增建;
114年07月
別墅/透天台中市太平區坪林路42巷11號移轉2次
1,858萬
29.65萬/坪
建坪62.65坪地坪44.79無車位
5房2廳3衛6.9年1樓/3樓
5房2廳3衛6.9年1樓/3樓
交易備註
- 資料來源:
為信義房屋最新成交行情;
為內政部最新公布的實價登錄資料;
該數值為系統運算,詳細請看說明
- 本實價登錄分類係綜合內政部實價登錄2020年7月之建物型態分類調整,以及申報登錄之建物型態、建物權狀登載之「主要用途」資料推估而成,故資料呈現類型、順序可能會與內政部不動產交易實價查詢服務網之搜尋結果有所差異,請斟酌參考。看看我們如何推估實價登錄類型與順序
- 特殊行情物件可能為受到特別條件或特殊關係影響所造成,詳情請參考頁面之粉色「備註資訊」欄。排除特殊交易功能,開啟後可即時排除顯示申報備註中關係人間交易、特殊交易情況及標的類型、與政府有關之交易、僅車位交易、分件登記、含多筆土地或多棟建物、 交易標的僅有建物、土地面積為0(含地上權物件),及其他備註資訊,關閉後則會恢復顯示。
- 歷史移轉次數依據信義成交行情及政府實價登錄資訊推估,再由系統比對當筆與前一筆實價登錄,交易明細完全吻合方計算漲跌幅,當筆交易漲跌幅計算式為(當筆交易之成交總價/前一筆交易之成交總價)-1,計算百分比至小數點後兩位;可能與實際交易有所落差,資料請斟酌參考。
為信義房屋最新成交行情;- 本實價登錄分類係綜合內政部實價登錄2020年7月之建物型態分類調整,以及申報登錄之建物型態、建物權狀登載之「主要用途」資料推估而成,故資料呈現類型、順序可能會與內政部不動產交易實價查詢服務網之搜尋結果有所差異,請斟酌參考。看看我們如何推估實價登錄類型與順序
- 特殊行情物件可能為受到特別條件或特殊關係影響所造成,詳情請參考頁面之粉色「備註資訊」欄。排除特殊交易功能,開啟後可即時排除顯示申報備註中關係人間交易、特殊交易情況及標的類型、與政府有關之交易、僅車位交易、分件登記、含多筆土地或多棟建物、 交易標的僅有建物、土地面積為0(含地上權物件),及其他備註資訊,關閉後則會恢復顯示。
- 歷史移轉次數依據信義成交行情及政府實價登錄資訊推估,再由系統比對當筆與前一筆實價登錄,交易明細完全吻合方計算漲跌幅,當筆交易漲跌幅計算式為(當筆交易之成交總價/前一筆交易之成交總價)-1,計算百分比至小數點後兩位;可能與實際交易有所落差,資料請斟酌參考。
查看實價登錄
本案專家

根據你的設定值計算
76,065/月


