
1/22
請注意,上方物件照片如有街景,為物件附近環境介紹,非物件本身。
1/22
有0人也在關注這間👀
本案專家

預約看屋
按下送出表示您已同意本站
服務條款
與隱私權聲明
送出
春日路大面寬電梯店面
(6721RF)
桃園市桃園區春日路
有0人也在關注這間👀
詳情
總價
9,800萬
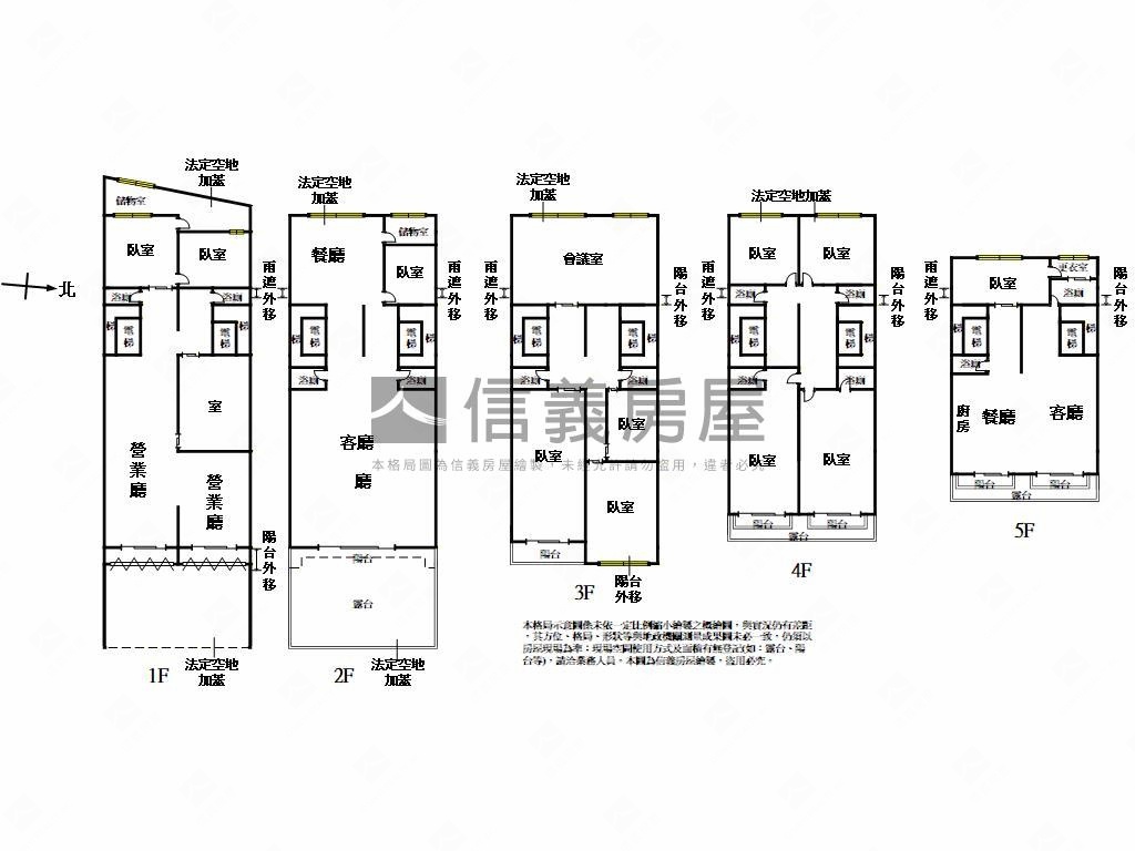
格局
11房6廳12衛5室
建坪
250.11坪
(主+陽241.94坪)
類型
店面
樓層
1-5樓/5樓
建坪單價
39.18 萬/坪
屋齡
17.7年
地坪
90.82坪
地坪單價
--

SinyiCare十大守護 信義房屋購售屋服務保障

點擊觀看生活機能
捷運 (1)公車 (25)停車場 (4)
0G10站(興建中) - 出口
15.9分鐘 / 1120m
0G10站(興建中) - 出口
15.9分鐘 / 1120m

SinyiCare十大守護 信義房屋購售屋服務保障
建坪
250.11坪
詳情
建坪單價
39.18 萬/坪
地坪
90.82坪
主+陽
241.94坪=
主建物
221.15坪+
陽台
20.79坪
雨遮
8.17坪
格局
5房5廳11衛1室
加蓋格局
6房1廳1衛4室
屋齡
17.7年
類型
店面
樓層
1-5樓/5樓
車位
--
邊間/暗房
是/否
建物朝向
東
大門朝向
東
落地窗朝向
東
警衛管理
無
建物詳情
建物結構
鋼筋混凝土
外牆建材
二丁掛
每層戶數
1
謄本用途
店舖、住宅、(附屬停車空間、、附屬機電設備空間)
使用分區
見土地使用分區證明影本;
注意事項
--
收合
物件特色
大地坪適合百工百業
近交流道交通便利
適合各式連鎖店
近大有大業生活圈
正春日路 人潮車潮多
近藝文商圈小檜溪生活圈
網路預約 專人服務
信義房屋 全國直營
類似物件實價登錄(8)
距離該物件1公里內,半年內成交,店面
共有8間與我相似的實價登錄物件
編輯篩選條件
列表
地圖
年月
地址
類型/車位
總價
單價
建坪
地坪
屋齡
樓層
格局
備註資訊:夾層;其他增建;
1,800萬
含車位130萬
37.34萬/坪
50.94萬
建坪48.2坪
含車位15.42坪地坪14.13有車位
0衛21.7年1樓/9樓
0衛21.7年1樓/9樓
交易備註
114年10月

桃園市桃園區會稽一街82巷24號
店面
1,620萬
52.04萬
31.13坪
29.96坪
45.5年
1樓/2樓
2房2廳2衛
114年10月
店面桃園市桃園區會稽一街82巷24號1,620萬
52.04萬/坪
建坪31.13坪地坪29.96無車位
2房2廳2衛45.5年1樓/2樓
2房2廳2衛45.5年1樓/2樓
114年07月

桃園市桃園區大有路801號
店面
3,100萬
30.62萬
101.23坪
42.7坪
11.8年
1樓/4樓
5房2廳6衛
備註資訊:頂樓加蓋;其他增建;
114年07月
店面桃園市桃園區大有路801號3,100萬
30.62萬/坪
建坪101.23坪地坪42.7無車位
5房2廳6衛11.8年1樓/4樓
5房2廳6衛11.8年1樓/4樓
交易備註
114年06月

桃園市桃園區民光東路332號
店面
有車位
6,063萬
含車位450萬
79.99萬
79.99萬
84.62坪
含車位14.45坪
10.86坪
0.0年
1樓/15樓
1衛
114年06月
店面桃園市桃園區民光東路332號6,063萬
含車位450萬
79.99萬/坪
79.99萬
建坪84.62坪
含車位14.45坪地坪10.86有車位
1衛0.0年1樓/15樓
1衛0.0年1樓/15樓
114年06月

桃園市桃園區民光東路330號
店面
有車位
10,575萬
含車位450萬
85萬
85萬
133.57坪
含車位14.45坪
18.45坪
0.0年
1樓/15樓
1衛
114年06月
店面桃園市桃園區民光東路330號10,575萬
含車位450萬
85萬/坪
85萬
建坪133.57坪
含車位14.45坪地坪18.45有車位
1衛0.0年1樓/15樓
1衛0.0年1樓/15樓
- 資料來源:
為信義房屋最新成交行情;
為內政部最新公布的實價登錄資料;
該數值為系統運算,詳細請看說明
- 本實價登錄分類係綜合內政部實價登錄2020年7月之建物型態分類調整,以及申報登錄之建物型態、建物權狀登載之「主要用途」資料推估而成,故資料呈現類型、順序可能會與內政部不動產交易實價查詢服務網之搜尋結果有所差異,請斟酌參考。看看我們如何推估實價登錄類型與順序
- 特殊行情物件可能為受到特別條件或特殊關係影響所造成,詳情請參考頁面之粉色「備註資訊」欄。排除特殊交易功能,開啟後可即時排除顯示申報備註中關係人間交易、特殊交易情況及標的類型、與政府有關之交易、僅車位交易、分件登記、含多筆土地或多棟建物、 交易標的僅有建物、土地面積為0(含地上權物件),及其他備註資訊,關閉後則會恢復顯示。
- 歷史移轉次數依據信義成交行情及政府實價登錄資訊推估,再由系統比對當筆與前一筆實價登錄,交易明細完全吻合方計算漲跌幅,當筆交易漲跌幅計算式為(當筆交易之成交總價/前一筆交易之成交總價)-1,計算百分比至小數點後兩位;可能與實際交易有所落差,資料請斟酌參考。
為信義房屋最新成交行情;- 本實價登錄分類係綜合內政部實價登錄2020年7月之建物型態分類調整,以及申報登錄之建物型態、建物權狀登載之「主要用途」資料推估而成,故資料呈現類型、順序可能會與內政部不動產交易實價查詢服務網之搜尋結果有所差異,請斟酌參考。看看我們如何推估實價登錄類型與順序
- 特殊行情物件可能為受到特別條件或特殊關係影響所造成,詳情請參考頁面之粉色「備註資訊」欄。排除特殊交易功能,開啟後可即時排除顯示申報備註中關係人間交易、特殊交易情況及標的類型、與政府有關之交易、僅車位交易、分件登記、含多筆土地或多棟建物、 交易標的僅有建物、土地面積為0(含地上權物件),及其他備註資訊,關閉後則會恢復顯示。
- 歷史移轉次數依據信義成交行情及政府實價登錄資訊推估,再由系統比對當筆與前一筆實價登錄,交易明細完全吻合方計算漲跌幅,當筆交易漲跌幅計算式為(當筆交易之成交總價/前一筆交易之成交總價)-1,計算百分比至小數點後兩位;可能與實際交易有所落差,資料請斟酌參考。
查看實價登錄
本案專家

根據你的設定值計算
497,624/月



