
1/10
請注意,上方物件照片如有街景,為物件附近環境介紹,非物件本身。
1/10
有71人也在關注這間👀
本案專家

預約看屋
按下送出表示您已同意本站
服務條款
與隱私權聲明
送出
高醫整理過透天
(6738BJ)
高雄市三民區建工路
有71人也在關注這間👀
詳情
總價
1,350萬
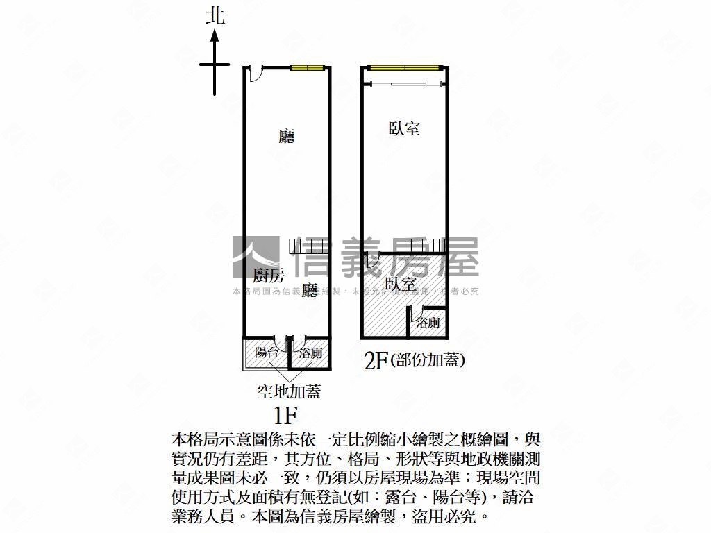
格局
2房2廳2衛
建坪
24.34坪
(主建物24.34坪)
類型
透天/辦公
樓層
1-2樓/2樓
建坪單價
55.46 萬/坪
屋齡
65.1年
地坪
19.06坪
地坪單價
--

SinyiCare十大守護 信義房屋購售屋服務保障

點擊觀看生活機能
捷運 (3)公車 (12)公共自行車 (2)停車場 (2)
0灣仔內站(大順鼎山) - 出口
11.7分鐘 / 816m
1高雄高工站 - 出口
11.6分鐘 / 816m
2大順民族 - 出口
16.4分鐘 / 1118m
0灣仔內站(大順鼎山) - 出口
11.7分鐘 / 816m
1高雄高工站 - 出口
11.6分鐘 / 816m
2大順民族 - 出口
16.4分鐘 / 1118m

SinyiCare十大守護 信義房屋購售屋服務保障
建坪
24.34坪
詳情
建坪單價
55.46 萬/坪
地坪
19.06坪
主建物
24.34坪
格局
1房2廳
加蓋格局
1房2衛
屋齡
65.1年
類型
透天/辦公
樓層
1-2樓/2樓
車位
--
邊間/暗房
否/否
建物朝向
北
大門朝向
北
落地窗朝向
北
警衛管理
無
建物詳情
建物結構
加強磚造
外牆建材
二丁掛
每層戶數
1
謄本用途
住宅
使用分區
第四種商業區;
注意事項
--
收合
物件特色
騎車約4分至高醫
騎車約3分至家樂福
騎車約4分至輕軌
巷口就是郵局
近鼎山家樂福商圈
生活方便,交通便利
近高雄應用科技大學
買方服務費成交價之1%
類似物件實價登錄(27)
距離該物件1公里內,半年內成交,別墅/透天/辦公
共有27間與我相似的實價登錄物件
編輯篩選條件
列表
地圖
年月
地址
類型/車位
總價
單價
建坪
地坪
屋齡
樓層
格局
114年11月

高雄市三民區民族一路374巷38號
別墅/透天
600萬
27.28萬
22坪
15.86坪
62.1年
1樓/2樓
4房1廳3衛
備註資訊:親友、員工、共有人或其他特殊關係間之交易;
114年11月
別墅/透天高雄市三民區民族一路374巷38號600萬
27.28萬/坪
建坪22坪地坪15.86無車位
4房1廳3衛62.1年1樓/2樓
4房1廳3衛62.1年1樓/2樓
交易備註
備註資訊:頂樓增建含裝潢費;其他增建;
114年09月
別墅/透天高雄市三民區灣中街268巷6弄8號移轉2次
850萬
37.48萬/坪
114年08月

高雄市三民區孝順街505巷14弄1號
別墅/透天
410萬
19.03萬
21.55坪
14.75坪
57.2年
1樓/2樓
3房2廳2衛
備註資訊:一樓空地增建至二樓,3樓增建其他增建;
114年08月
別墅/透天高雄市三民區孝順街505巷14弄1號410萬
19.03萬/坪
建坪21.55坪地坪14.75無車位
3房2廳2衛57.2年1樓/2樓
3房2廳2衛57.2年1樓/2樓
交易備註
備註資訊:其他增建:平台外推、鐵皮屋頂其他增建;
114年12月
別墅/透天高雄市三民區立志街125巷12號1,100萬
37.64萬/坪
- 資料來源:
為信義房屋最新成交行情;
為內政部最新公布的實價登錄資料;
該數值為系統運算,詳細請看說明
- 本實價登錄分類係綜合內政部實價登錄2020年7月之建物型態分類調整,以及申報登錄之建物型態、建物權狀登載之「主要用途」資料推估而成,故資料呈現類型、順序可能會與內政部不動產交易實價查詢服務網之搜尋結果有所差異,請斟酌參考。看看我們如何推估實價登錄類型與順序
- 特殊行情物件可能為受到特別條件或特殊關係影響所造成,詳情請參考頁面之粉色「備註資訊」欄。排除特殊交易功能,開啟後可即時排除顯示申報備註中關係人間交易、特殊交易情況及標的類型、與政府有關之交易、僅車位交易、分件登記、含多筆土地或多棟建物、 交易標的僅有建物、土地面積為0(含地上權物件),及其他備註資訊,關閉後則會恢復顯示。
- 歷史移轉次數依據信義成交行情及政府實價登錄資訊推估,再由系統比對當筆與前一筆實價登錄,交易明細完全吻合方計算漲跌幅,當筆交易漲跌幅計算式為(當筆交易之成交總價/前一筆交易之成交總價)-1,計算百分比至小數點後兩位;可能與實際交易有所落差,資料請斟酌參考。
為信義房屋最新成交行情;- 本實價登錄分類係綜合內政部實價登錄2020年7月之建物型態分類調整,以及申報登錄之建物型態、建物權狀登載之「主要用途」資料推估而成,故資料呈現類型、順序可能會與內政部不動產交易實價查詢服務網之搜尋結果有所差異,請斟酌參考。看看我們如何推估實價登錄類型與順序
- 特殊行情物件可能為受到特別條件或特殊關係影響所造成,詳情請參考頁面之粉色「備註資訊」欄。排除特殊交易功能,開啟後可即時排除顯示申報備註中關係人間交易、特殊交易情況及標的類型、與政府有關之交易、僅車位交易、分件登記、含多筆土地或多棟建物、 交易標的僅有建物、土地面積為0(含地上權物件),及其他備註資訊,關閉後則會恢復顯示。
- 歷史移轉次數依據信義成交行情及政府實價登錄資訊推估,再由系統比對當筆與前一筆實價登錄,交易明細完全吻合方計算漲跌幅,當筆交易漲跌幅計算式為(當筆交易之成交總價/前一筆交易之成交總價)-1,計算百分比至小數點後兩位;可能與實際交易有所落差,資料請斟酌參考。
查看實價登錄
本案專家

根據你的設定值計算
68,550/月


