
1/11
請注意,上方物件照片如有街景,為物件附近環境介紹,非物件本身。
1/11
有16人也在關注這間👀
本案專家

預約看屋
按下送出表示您已同意本站
服務條款
與隱私權聲明
送出
草屯鬧中取靜退休宅
(6836AK)
南投縣草屯鎮中正路
有16人也在關注這間👀
詳情
總價
728萬
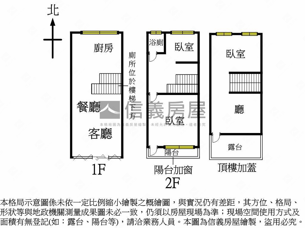
格局
3房3廳2衛
建坪
29.95坪
(主建物29.95坪)
類型
透天
樓層
1-2樓/2樓
建坪單價
24.31 萬/坪
屋齡
51.2年
地坪
18.98坪
地坪單價
38.36 萬/坪

SinyiCare十大守護 信義房屋購售屋服務保障
點擊觀看生活機能
公車 (23)
0草屯公有市場
2.4分鐘 / 171m
1草屯公有市場站
2.5分鐘 / 182m
2草屯公有市場站
2.5分鐘 / 182m
3草屯公有市場站
2.5分鐘 / 182m
4草屯公有市場站
2.5分鐘 / 182m
5大觀
4.2分鐘 / 306m
6大觀
5.8分鐘 / 411m
7農會前
6.1分鐘 / 440m
8農會前
6.1分鐘 / 441m
9大觀
6.2分鐘 / 426m
A草屯(第一銀行)
5.6分鐘 / 402m
B草屯
5.6分鐘 / 405m
C草屯
5.7分鐘 / 412m
D惠德宮站
5.9分鐘 / 426m
E惠德宮站
5.9分鐘 / 426m
F惠德宮站
5.9分鐘 / 426m
G惠德宮
5.9分鐘 / 426m
H惠德宮站
5.9分鐘 / 426m
I草屯戶政站
7.5分鐘 / 500m
J草屯戶政站
7.5分鐘 / 500m
K天主教堂
8.3分鐘 / 550m
L草屯(第一銀行)
6.8分鐘 / 488m
M天主教堂
8.2分鐘 / 547m
0草屯公有市場
2.4分鐘 / 171m
1草屯公有市場站
2.5分鐘 / 182m
2草屯公有市場站
2.5分鐘 / 182m
3草屯公有市場站
2.5分鐘 / 182m
4草屯公有市場站
2.5分鐘 / 182m
觀看全部

SinyiCare十大守護 信義房屋購售屋服務保障
建坪
29.95坪
詳情
建坪單價
24.31 萬/坪
地坪
18.98坪
主建物
29.95坪
地坪單價
38.36 萬/坪
格局
2房2廳2衛
加蓋格局
1房1廳
屋齡
51.2年
類型
透天
樓層
1-2樓/2樓
車位
--
邊間/暗房
否/否
建物朝向
南
大門朝向
南
落地窗朝向
南
警衛管理
無
建物詳情
建物結構
加強磚造
外牆建材
馬賽克
每層戶數
1
謄本用途
住商用
使用分區
見土地使用分區證明影本;
注意事項
--
收合
物件特色
鬧中取靜生活方便
透天自有空間大
低總價輕鬆入手
近草屯市區
類似物件實價登錄(12)
距離該物件1公里內,半年內成交,別墅/透天
共有12間與我相似的實價登錄物件
編輯篩選條件
列表
地圖
年月
地址
類型/車位
總價
單價
建坪
地坪
屋齡
樓層
格局
115年01月

南投縣草屯鎮自由街12巷7號
別墅/透天
30萬
7.48萬
4.01坪
3.08坪
50.9年
1樓/2樓
5房2廳2衛
歷史移轉2次
115年01月
別墅/透天南投縣草屯鎮自由街12巷7號移轉2次
30萬
7.48萬/坪
建坪4.01坪地坪3.08無車位
5房2廳2衛50.9年1樓/2樓
5房2廳2衛50.9年1樓/2樓
114年07月

南投縣草屯鎮自由街12巷7號
別墅/透天
260萬
21.62萬
12.03坪
9.25坪
50.4年
1樓/2樓
5房2廳2衛
歷史移轉2次
114年07月
別墅/透天南投縣草屯鎮自由街12巷7號移轉2次
260萬
21.62萬/坪
建坪12.03坪地坪9.25無車位
5房2廳2衛50.4年1樓/2樓
5房2廳2衛50.4年1樓/2樓
114年10月

南投縣草屯鎮草溪路970巷26號
別墅/透天
508萬
16.86萬
30.13坪
21.78坪
57.8年
1樓/2樓
2房2廳2衛
114年10月
別墅/透天南投縣草屯鎮草溪路970巷26號508萬
16.86萬/坪
建坪30.13坪地坪21.78無車位
2房2廳2衛57.8年1樓/2樓
2房2廳2衛57.8年1樓/2樓
114年10月

南投縣草屯鎮虎山路714巷1號
別墅/透天
395萬
16.61萬
23.79坪
15.3坪
51.2年
1樓/2樓
2房1廳1衛
備註資訊:其他增建;
114年10月
別墅/透天南投縣草屯鎮虎山路714巷1號395萬
16.61萬/坪
建坪23.79坪地坪15.3無車位
2房1廳1衛51.2年1樓/2樓
2房1廳1衛51.2年1樓/2樓
交易備註
114年08月

南投縣草屯鎮虎山路648巷54弄22號
別墅/透天
540萬
24.89萬
21.69坪
41.78坪
50.2年
1樓/1樓
4房2廳1衛
備註資訊:其他增建;
114年08月
別墅/透天南投縣草屯鎮虎山路648巷54弄22號540萬
24.89萬/坪
建坪21.69坪地坪41.78無車位
4房2廳1衛50.2年1樓/1樓
4房2廳1衛50.2年1樓/1樓
交易備註
- 資料來源:
為信義房屋最新成交行情;
為內政部最新公布的實價登錄資料;
該數值為系統運算,詳細請看說明
- 本實價登錄分類係綜合內政部實價登錄2020年7月之建物型態分類調整,以及申報登錄之建物型態、建物權狀登載之「主要用途」資料推估而成,故資料呈現類型、順序可能會與內政部不動產交易實價查詢服務網之搜尋結果有所差異,請斟酌參考。看看我們如何推估實價登錄類型與順序
- 特殊行情物件可能為受到特別條件或特殊關係影響所造成,詳情請參考頁面之粉色「備註資訊」欄。排除特殊交易功能,開啟後可即時排除顯示申報備註中關係人間交易、特殊交易情況及標的類型、與政府有關之交易、僅車位交易、分件登記、含多筆土地或多棟建物、 交易標的僅有建物、土地面積為0(含地上權物件),及其他備註資訊,關閉後則會恢復顯示。
- 歷史移轉次數依據信義成交行情及政府實價登錄資訊推估,再由系統比對當筆與前一筆實價登錄,交易明細完全吻合方計算漲跌幅,當筆交易漲跌幅計算式為(當筆交易之成交總價/前一筆交易之成交總價)-1,計算百分比至小數點後兩位;可能與實際交易有所落差,資料請斟酌參考。
為信義房屋最新成交行情;- 本實價登錄分類係綜合內政部實價登錄2020年7月之建物型態分類調整,以及申報登錄之建物型態、建物權狀登載之「主要用途」資料推估而成,故資料呈現類型、順序可能會與內政部不動產交易實價查詢服務網之搜尋結果有所差異,請斟酌參考。看看我們如何推估實價登錄類型與順序
- 特殊行情物件可能為受到特別條件或特殊關係影響所造成,詳情請參考頁面之粉色「備註資訊」欄。排除特殊交易功能,開啟後可即時排除顯示申報備註中關係人間交易、特殊交易情況及標的類型、與政府有關之交易、僅車位交易、分件登記、含多筆土地或多棟建物、 交易標的僅有建物、土地面積為0(含地上權物件),及其他備註資訊,關閉後則會恢復顯示。
- 歷史移轉次數依據信義成交行情及政府實價登錄資訊推估,再由系統比對當筆與前一筆實價登錄,交易明細完全吻合方計算漲跌幅,當筆交易漲跌幅計算式為(當筆交易之成交總價/前一筆交易之成交總價)-1,計算百分比至小數點後兩位;可能與實際交易有所落差,資料請斟酌參考。
查看實價登錄
本案專家

根據你的設定值計算
36,966/月


