
請注意,上方物件照片如有街景,為物件附近環境介紹,非物件本身。
1/22
有741人也在關注這間👀
本案專家
更多挑選
按下按鈕表示您已同意本站
服務條款
與隱私權聲明
預約看屋
成都大廈稀有釋出
(6869DK)
台北市萬華區成都路
有741人也在關注這間👀
總價
450萬
建坪單價
61.06 萬/坪
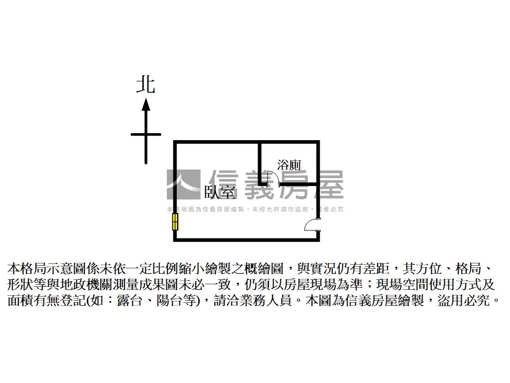
格局
1房1衛
房貸試算
計算
元/月
年|利率%概算|undefined年寬限期
符合首購資格嗎?
坪數詳情
細項
建坪7.37
主建物5.64
地坪0.62
類型大樓
屋齡48.8年
樓層4樓/12樓
管理費
約369 元/月
加蓋格局--
謄本用途辦公室
使用分區第四種商業區;
完整物件詳情
本案專家
更多挑選
物件特色
後棟安靜稀有釋出
近西門捷運站/公車站
白天保全收垃圾收信件
商圈熱鬧鬧中取靜
低總價收租置產皆宜
通風採光好
交通便利機能好
網路預約專人服務
周邊生活機能


SinyiCare十大守護 信義房屋購售屋服務保障
點擊觀看生活機能
捷運 (9)
公車 (21)
公共自行車 (4)
停車場 (4)
0西門站 - 出口6
9.7分鐘 / 665m
1西門站 - 出口1
9.4分鐘 / 657m
2西門站 - 出口2
12.2分鐘 / 797m
3西門站 - 出口5
12.8分鐘 / 824m
4西門站 - 出口3
12.4分鐘 / 811m
5西門站 - 出口4
12.4分鐘 / 793m
6龍山寺站 - 出口3
14.9分鐘 / 1034m
7龍山寺站 - 出口1
15.9分鐘 / 1127m
8龍山寺站 - 出口2
16.8分鐘 / 1140m
0西門站 - 出口6
9.7分鐘 / 665m
1西門站 - 出口1
9.4分鐘 / 657m
2西門站 - 出口2
12.2分鐘 / 797m
3西門站 - 出口5
12.8分鐘 / 824m
4西門站 - 出口3
12.4分鐘 / 811m
完整周邊生活圈

SinyiCare十大守護 信義房屋購售屋服務保障
類似物件實價登錄
(74)
1公里內 | 半年內 | 大樓
3房2廳1衛
|25.88坪
|無車位
1,550萬59.89萬/坪
115/02成交
0衛
|10.11坪
|無車位
522萬51.65萬/坪
115/02成交


