
1/22
請注意,上方物件照片如有街景,為物件附近環境介紹,非物件本身。
1/22
有439人也在關注這間👀
本案專家

預約看屋
按下送出表示您已同意本站
服務條款
與隱私權聲明
送出
正大墩路黃金透店稀有釋出
(6938US)
台中市南屯區大墩路
有439人也在關注這間👀
詳情
總價
3,498萬
3688萬
格局
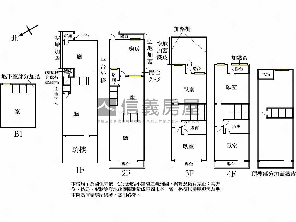
4房4廳4衛1室
建坪
78.3坪
(主+陽64.19坪)
類型
店面/透天
樓層
B1-4樓/4樓
建坪單價
本物件含加蓋,詳洽經紀人員
屋齡
38.9年
地坪
24.2坪
地坪單價
詳洽經紀人員

SinyiCare十大守護 信義房屋購售屋服務保障
點擊觀看生活機能
捷運 (3)公車 (21)公共自行車 (4)停車場 (1)
0水安宮站 - 出口
8.8分鐘 / 636m
1市政府站 - 出口2
12.3分鐘 / 864m
2市政府站 - 出口1
13.4分鐘 / 937m
0水安宮站 - 出口
8.8分鐘 / 636m
1市政府站 - 出口2
12.3分鐘 / 864m
2市政府站 - 出口1
13.4分鐘 / 937m

SinyiCare十大守護 信義房屋購售屋服務保障
建坪
78.3坪
詳情
建坪單價
本物件含加蓋,詳洽經紀人員
地坪
24.2坪
主+陽
64.19坪=
主建物
58.1坪+
陽台
6.09坪
地下室
6.23坪
屋頂突出物
2.21坪
平台
0.96坪
騎樓
4.71坪
地坪單價
詳洽經紀人員
格局
4房3廳3衛1室
加蓋格局
1廳1衛
屋齡
38.9年
類型
店面/透天
樓層
B1-4樓/4樓
車位
--
邊間/暗房
否/否
建物朝向
西北
大門朝向
西北
落地窗朝向
西北
警衛管理
無
建物詳情
建物結構
鋼筋混凝土
外牆建材
二丁掛
每層戶數
1
謄本用途
店舖、住房、人行道、避難室
使用分區
第二種住宅區;
注意事項
--
收合
物件特色
正大墩路透天店面
格局方正大空間好規劃
鬧中取靜臨路寬敞
大棟距視野採光棒
五期&七期 雙生活圈
近捷運水安宮、市政府
誠意售屋敬請把握
網路預約為您用心服務
類似物件實價登錄(21)
距離該物件1公里內,半年內成交,店面/別墅/透天
共有21間與我相似的實價登錄物件
編輯篩選條件
列表
地圖
年月
地址
類型/車位
總價
單價
建坪
地坪
屋齡
樓層
格局
備註資訊:其他增建;
114年08月
別墅/透天台中市南屯區大光街184巷19號1,958萬
43.39萬/坪
114年07月

台中市西屯區大進街728號
別墅/透天
3,090萬
57.93萬
53.34坪
54.75坪
39.0年
1樓/2樓
4房3廳4衛
備註資訊:陽台外推;夾層;其他增建;
114年07月
別墅/透天台中市西屯區大進街728號3,090萬
57.93萬/坪
建坪53.34坪地坪54.75無車位
4房3廳4衛39.0年1樓/2樓
4房3廳4衛39.0年1樓/2樓
交易備註
114年06月

台中市南屯區大墩十八街20號
別墅/透天
2,680萬
57.27萬
46.8坪
32.67坪
38.0年
1樓/2樓
4房3廳4衛
114年06月
別墅/透天台中市南屯區大墩十八街20號2,680萬
57.27萬/坪
建坪46.8坪地坪32.67無車位
4房3廳4衛38.0年1樓/2樓
4房3廳4衛38.0年1樓/2樓
備註資訊:頂樓加蓋;其他增建;
114年05月
別墅/透天台中市南屯區大英街594巷11號2,560萬
63.22萬/坪
114年04月

台中市西區精忠街52巷2之1號
別墅/透天
1,670萬
59.06萬
28.27坪
20.57坪
41.9年
1樓/2樓
4房2廳4衛
備註資訊:陽台外推;頂樓加蓋;其他增建;
114年04月
別墅/透天台中市西區精忠街52巷2之1號1,670萬
59.06萬/坪
建坪28.27坪地坪20.57無車位
4房2廳4衛41.9年1樓/2樓
4房2廳4衛41.9年1樓/2樓
交易備註
- 資料來源:
為信義房屋最新成交行情;
為內政部最新公布的實價登錄資料;
該數值為系統運算,詳細請看說明
- 本實價登錄分類係綜合內政部實價登錄2020年7月之建物型態分類調整,以及申報登錄之建物型態、建物權狀登載之「主要用途」資料推估而成,故資料呈現類型、順序可能會與內政部不動產交易實價查詢服務網之搜尋結果有所差異,請斟酌參考。看看我們如何推估實價登錄類型與順序
- 特殊行情物件可能為受到特別條件或特殊關係影響所造成,詳情請參考頁面之粉色「備註資訊」欄。排除特殊交易功能,開啟後可即時排除顯示申報備註中關係人間交易、特殊交易情況及標的類型、與政府有關之交易、僅車位交易、分件登記、含多筆土地或多棟建物、 交易標的僅有建物、土地面積為0(含地上權物件),及其他備註資訊,關閉後則會恢復顯示。
- 歷史移轉次數依據信義成交行情及政府實價登錄資訊推估,再由系統比對當筆與前一筆實價登錄,交易明細完全吻合方計算漲跌幅,當筆交易漲跌幅計算式為(當筆交易之成交總價/前一筆交易之成交總價)-1,計算百分比至小數點後兩位;可能與實際交易有所落差,資料請斟酌參考。
為信義房屋最新成交行情;- 本實價登錄分類係綜合內政部實價登錄2020年7月之建物型態分類調整,以及申報登錄之建物型態、建物權狀登載之「主要用途」資料推估而成,故資料呈現類型、順序可能會與內政部不動產交易實價查詢服務網之搜尋結果有所差異,請斟酌參考。看看我們如何推估實價登錄類型與順序
- 特殊行情物件可能為受到特別條件或特殊關係影響所造成,詳情請參考頁面之粉色「備註資訊」欄。排除特殊交易功能,開啟後可即時排除顯示申報備註中關係人間交易、特殊交易情況及標的類型、與政府有關之交易、僅車位交易、分件登記、含多筆土地或多棟建物、 交易標的僅有建物、土地面積為0(含地上權物件),及其他備註資訊,關閉後則會恢復顯示。
- 歷史移轉次數依據信義成交行情及政府實價登錄資訊推估,再由系統比對當筆與前一筆實價登錄,交易明細完全吻合方計算漲跌幅,當筆交易漲跌幅計算式為(當筆交易之成交總價/前一筆交易之成交總價)-1,計算百分比至小數點後兩位;可能與實際交易有所落差,資料請斟酌參考。
查看實價登錄
本案專家

根據你的設定值計算
177,621/月


