
請注意,上方物件照片如有街景,為物件附近環境介紹,非物件本身。
1/5
有13人也在關注這間👀
本案專家
更多挑選
按下按鈕表示您已同意本站
服務條款
與隱私權聲明
預約看屋
富宇仰睦稀有店面
(7209MW)
新竹市興濱路
有13人也在關注這間👀
總價
2,198萬
含車位價
建坪單價
56.03 萬/坪(扣除車位價及車坪)
格局
1廳1衛
房貸試算
計算
元/月
年|利率%概算|undefined年寬限期
符合首購資格嗎?
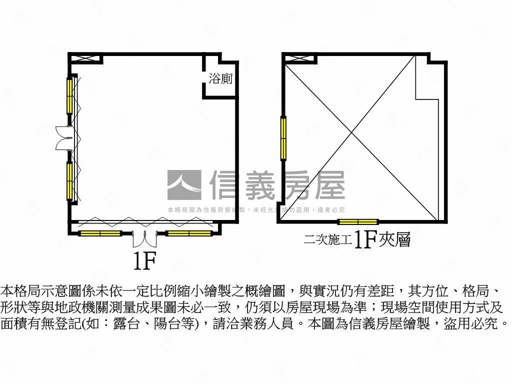
坪數詳情
細項
建坪44.74
主+附23.48
地坪--
類型店面
屋齡預售
樓層1樓/15樓
加蓋格局--
謄本用途--
使用分區--
完整物件詳情
本案專家
更多挑選
物件特色
知名建商
近快速道路
附近社區、住家多
邊間漂亮面寬店面
周邊生活機能


SinyiCare十大守護 信義房屋購售屋服務保障
點擊觀看生活機能
公車 (18)
0蝦仔埔
4.3分鐘 / 307m
1蝦仔埔
4.2分鐘 / 307m
2信義新村
6分鐘 / 442m
3信義新村
5.5分鐘 / 405m
4上南寮
4.7分鐘 / 336m
5上南寮
4.8分鐘 / 346m
6蟹仔埔
5.1分鐘 / 373m
7蟹仔埔
5.6分鐘 / 390m
8天府站
5.9分鐘 / 406m
9天府站
7.8分鐘 / 545m
A南華國中
6.2分鐘 / 455m
B漁港口
6.9分鐘 / 498m
C漁港口
7.2分鐘 / 519m
D中寮
9.2分鐘 / 633m
E里辦公處
7.8分鐘 / 558m
F中寮
9.2分鐘 / 631m
G里辦公處
8.6分鐘 / 612m
H蟹仔埔公園
8.4分鐘 / 602m
0蝦仔埔
4.3分鐘 / 307m
1蝦仔埔
4.2分鐘 / 307m
2信義新村
6分鐘 / 442m
3信義新村
5.5分鐘 / 405m
4上南寮
4.7分鐘 / 336m
完整周邊生活圈

SinyiCare十大守護 信義房屋購售屋服務保障
類似物件實價登錄
(1)
1公里內 | 半年內 | 店面
2房2廳2衛
|29.52坪
|有車位
1,200萬40.64萬/坪
114/10成交


