
請注意,上方物件照片如有街景,為物件附近環境介紹,非物件本身。
1/10
有54人也在關注這間👀
本案專家
更多挑選
按下按鈕表示您已同意本站
服務條款
與隱私權聲明
預約看屋
霄裡靜巷幸運樓層兩房車位
(7260LQ)
桃園市八德區霄裡路
有54人也在關注這間👀
總價
990萬
含車位價
建坪單價
37.07 萬/坪(扣除車位價及車坪)
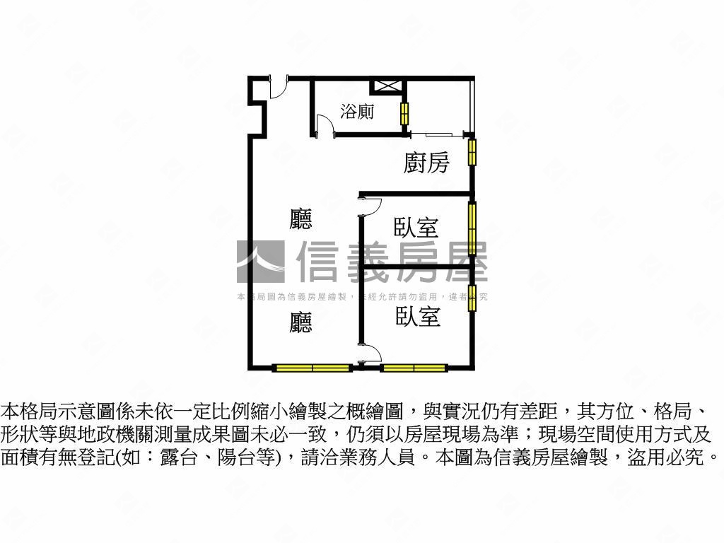
格局
2房2廳1衛
房貸試算
計算
元/月
年|利率%概算|undefined年寬限期
符合首購資格嗎?
坪數詳情
細項
建坪30.08
主+附14.94
地坪--
類型大樓
屋齡預售
樓層6樓/14樓
加蓋格局--
謄本用途--
使用分區--
完整物件詳情
本案專家
更多挑選
物件特色
格局方正好規劃
自住出租兩相宜
近未來GE02捷運站
離塵不離城好愜意
近未來預定桃園市立醫院
陽光、綠地開窗就有
小家庭的起家厝
買方服務費成交價1%
周邊生活機能


SinyiCare十大守護 信義房屋購售屋服務保障
點擊觀看生活機能
捷運 (1)
公車 (13)
0GE2站(興建中) - 出口
17.3分鐘 / 1200m
0GE2站(興建中) - 出口
17.3分鐘 / 1200m

SinyiCare十大守護 信義房屋購售屋服務保障
類似物件實價登錄
(7)


