
1/11
請注意,上方物件照片如有街景,為物件附近環境介紹,非物件本身。
1/11
有97人也在關注這間👀
本案專家

預約看屋
按下送出表示您已同意本站
服務條款
與隱私權聲明
送出
⭐福德一路稀有獨棟廠房⭐
(7366QS)
新北市汐止區福德一路
有97人也在關注這間👀
詳情
總價(含車位)
48,000萬
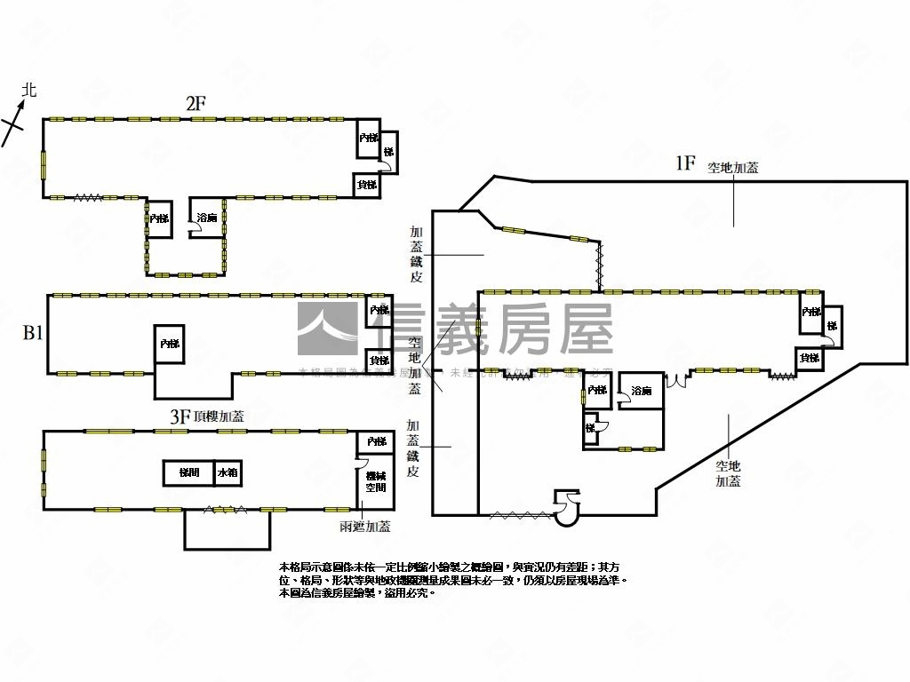
格局
4廳2衛1室
建坪
506.6坪
(主建物339.22坪)
類型
廠房
樓層
B1-2樓/2樓
建坪單價
本物件含車位及加蓋,詳洽經紀人員
屋齡
37.8年
地坪
530.45坪
地坪單價
詳洽經紀人員

SinyiCare十大守護 信義房屋購售屋服務保障

點擊觀看生活機能
捷運 (5)公車 (19)公共自行車 (1)停車場 (1)
0社后站(規劃中) - 出口
16.6分鐘 / 1187m
1下社后站(規劃中) - 出口
21.3分鐘 / 1556m
2南港展覽館站 - 出口4
33.6分鐘 / 2365m
3南港軟體園區站 - 出口0
43.1分鐘 / 3089m
4南港展覽館站 - 出口3
33.3分鐘 / 2339m
0社后站(規劃中) - 出口
16.6分鐘 / 1187m
1下社后站(規劃中) - 出口
21.3分鐘 / 1556m
2南港展覽館站 - 出口4
33.6分鐘 / 2365m
3南港軟體園區站 - 出口0
43.1分鐘 / 3089m
4南港展覽館站 - 出口3
33.3分鐘 / 2339m

SinyiCare十大守護 信義房屋購售屋服務保障
建坪
506.6坪
詳情
建坪單價
本物件含車位及加蓋,詳洽經紀人員
地坪
530.45坪
主建物
339.22坪
屋頂突出物
25.86坪
倉庫、防空避難室
141.52坪
地坪單價
詳洽經紀人員
格局
3廳2衛1室
加蓋格局
1廳
屋齡
37.8年
類型
廠房
樓層
B1-2樓/2樓
車位
1個一樓平面
邊間/暗房
是/否
建物朝向
南
大門朝向
南
落地窗朝向
南
警衛管理
無
建物詳情
建物結構
鋼筋混凝土
外牆建材
二丁掛
每層戶數
1
謄本用途
工商用、見注意事項
使用分區
乙種工業區;
注意事項
--
收合
物件特色
稀有獨棟【透天】廠房
近【南陽大橋】
【百坪土地】好規劃
【乙種】工業用地
有室內【貨梯】
門口【停車方便】
貨車進出方便有卸貨碼頭
【網路預約】專人介紹
類似物件實價登錄(14)
距離該物件1公里內,半年內成交,廠房
共有14間與我相似的實價登錄物件
編輯篩選條件
列表
地圖
年月
地址
類型/車位
總價
單價
建坪
地坪
屋齡
樓層
格局
115年01月

新北市汐止區大同路一段181號10樓
廠房
4,166萬
23.82萬
174.87坪
16.06坪
32.0年
10樓/14樓
0衛
115年01月
廠房新北市汐止區大同路一段181號10樓4,166萬
23.82萬/坪
建坪174.87坪地坪16.06無車位
0衛32.0年10樓/14樓
0衛32.0年10樓/14樓
114年12月

新北市汐止區大同路一段179號8樓
廠房
1,880萬
26.5萬
70.95坪
7坪
31.9年
8樓/14樓
0衛
歷史移轉2次
備註資訊:陽台外推;
114年12月
廠房新北市汐止區大同路一段179號8樓移轉2次
1,880萬
26.5萬/坪
建坪70.95坪地坪7無車位
0衛31.9年8樓/14樓
0衛31.9年8樓/14樓
交易備註
114年12月

新北市汐止區康寧街169巷25號7樓之1
廠房
有車位
2,650萬
含車位價
含車位價
26.38萬
含車位計算
含車位計算
100.47坪
含車位--坪
含車位--坪
14.87坪
30.4年
7樓/13樓
0衛
備註資訊:坡道平面車位增設機械上層
114年12月
廠房新北市汐止區康寧街169巷25號7樓之12,650萬
含車位價
26.38萬/坪
含車位計算
建坪100.47坪(含車位--坪)地坪14.87有車位
0衛30.4年7樓/13樓
0衛30.4年7樓/13樓
交易備註
114年10月

新北市汐止區環河街195號
廠房
350萬
2.55萬
137.23坪
0坪
15.3年
1樓/1樓
0衛
備註資訊:建物坐落地號:環河段652地號;親友、員工、共有人或其他特殊關係間之交易;其他增建;
114年10月
廠房新北市汐止區環河街195號350萬
2.55萬/坪
建坪137.23坪地坪0無車位
0衛15.3年1樓/1樓
0衛15.3年1樓/1樓
交易備註
114年10月

新北市汐止區環河街193號
廠房
560萬
2.54萬
220.12坪
0坪
15.3年
1樓/1樓
0衛
備註資訊:建物坐落地號:環河段652地號;親友、員工、共有人或其他特殊關係間之交易;其他增建;
114年10月
廠房新北市汐止區環河街193號560萬
2.54萬/坪
建坪220.12坪地坪0無車位
0衛15.3年1樓/1樓
0衛15.3年1樓/1樓
交易備註
- 資料來源:
為信義房屋最新成交行情;
為內政部最新公布的實價登錄資料;
該數值為系統運算,詳細請看說明
- 本實價登錄分類係綜合內政部實價登錄2020年7月之建物型態分類調整,以及申報登錄之建物型態、建物權狀登載之「主要用途」資料推估而成,故資料呈現類型、順序可能會與內政部不動產交易實價查詢服務網之搜尋結果有所差異,請斟酌參考。看看我們如何推估實價登錄類型與順序
- 特殊行情物件可能為受到特別條件或特殊關係影響所造成,詳情請參考頁面之粉色「備註資訊」欄。排除特殊交易功能,開啟後可即時排除顯示申報備註中關係人間交易、特殊交易情況及標的類型、與政府有關之交易、僅車位交易、分件登記、含多筆土地或多棟建物、 交易標的僅有建物、土地面積為0(含地上權物件),及其他備註資訊,關閉後則會恢復顯示。
- 歷史移轉次數依據信義成交行情及政府實價登錄資訊推估,再由系統比對當筆與前一筆實價登錄,交易明細完全吻合方計算漲跌幅,當筆交易漲跌幅計算式為(當筆交易之成交總價/前一筆交易之成交總價)-1,計算百分比至小數點後兩位;可能與實際交易有所落差,資料請斟酌參考。
為信義房屋最新成交行情;- 本實價登錄分類係綜合內政部實價登錄2020年7月之建物型態分類調整,以及申報登錄之建物型態、建物權狀登載之「主要用途」資料推估而成,故資料呈現類型、順序可能會與內政部不動產交易實價查詢服務網之搜尋結果有所差異,請斟酌參考。看看我們如何推估實價登錄類型與順序
- 特殊行情物件可能為受到特別條件或特殊關係影響所造成,詳情請參考頁面之粉色「備註資訊」欄。排除特殊交易功能,開啟後可即時排除顯示申報備註中關係人間交易、特殊交易情況及標的類型、與政府有關之交易、僅車位交易、分件登記、含多筆土地或多棟建物、 交易標的僅有建物、土地面積為0(含地上權物件),及其他備註資訊,關閉後則會恢復顯示。
- 歷史移轉次數依據信義成交行情及政府實價登錄資訊推估,再由系統比對當筆與前一筆實價登錄,交易明細完全吻合方計算漲跌幅,當筆交易漲跌幅計算式為(當筆交易之成交總價/前一筆交易之成交總價)-1,計算百分比至小數點後兩位;可能與實際交易有所落差,資料請斟酌參考。
查看實價登錄
本案專家

根據你的設定值計算
2,437,343/月



