
1/14
請注意,上方物件照片如有街景,為物件附近環境介紹,非物件本身。
1/14
有0人也在關注這間👀
本案專家

預約看屋
按下送出表示您已同意本站
服務條款
與隱私權聲明
送出
河北路面公園輕鬆成家透天
(8151RF)
高雄市苓雅區河北路
有0人也在關注這間👀
詳情
總價
1,098萬
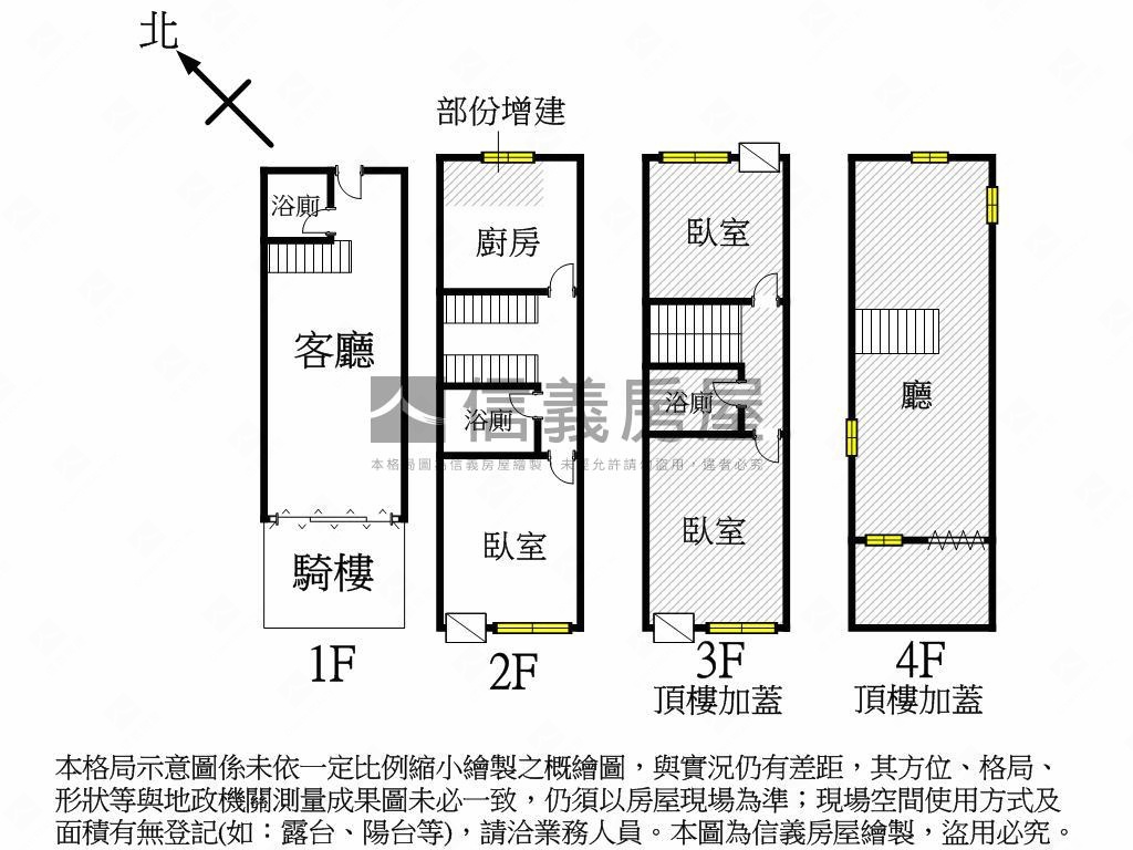
格局
3房2廳3衛
建坪
23.63坪
(主建物20.71坪)
類型
透天
樓層
1-2樓/2樓
建坪單價
46.47 萬/坪
屋齡
57.6年
地坪
13.92坪
地坪單價
78.88 萬/坪

SinyiCare十大守護 信義房屋購售屋服務保障
點擊觀看生活機能
捷運 (15)公車 (19)公共自行車 (3)停車場 (2)
0五塊厝站 - 出口4
8.2分鐘 / 582m
1五塊厝站 - 出口6
7.9分鐘 / 541m
2苓雅運動園區站 - 出口2
9分鐘 / 651m
3五塊厝站 - 出口5
9.5分鐘 / 649m
4苓雅運動園區站 - 出口1
9.4分鐘 / 668m
5五塊厝站 - 出口3
9.2分鐘 / 667m
6五塊厝站 - 出口1
10.4分鐘 / 717m
7五塊厝站 - 出口2
10.4分鐘 / 717m
8苓雅運動園區站 - 出口3
10.5分鐘 / 768m
9苓雅運動園區站 - 出口4
11分鐘 / 780m
A衛生局站 - 出口
10.1分鐘 / 733m
B五權國小站 - 出口
12.8分鐘 / 929m
C凱旋公園站 - 出口
12.2分鐘 / 885m
D聖功醫院站 - 出口
17.7分鐘 / 1265m
E凱旋武昌站 - 出口
19.8分鐘 / 1408m
0五塊厝站 - 出口4
8.2分鐘 / 582m
1五塊厝站 - 出口6
7.9分鐘 / 541m
2苓雅運動園區站 - 出口2
9分鐘 / 651m
3五塊厝站 - 出口5
9.5分鐘 / 649m
4苓雅運動園區站 - 出口1
9.4分鐘 / 668m
觀看全部

SinyiCare十大守護 信義房屋購售屋服務保障
建坪
23.63坪
詳情
建坪單價
46.47 萬/坪
地坪
13.92坪
主建物
20.71坪
騎樓
2.92坪
地坪單價
78.88 萬/坪
格局
1房1廳2衛
加蓋格局
2房1廳1衛
屋齡
57.6年
類型
透天
樓層
1-2樓/2樓
車位
--
邊間/暗房
否/否
建物朝向
西南
大門朝向
西南
落地窗朝向
西南
警衛管理
無
建物詳情
建物結構
加強磚造
外牆建材
方塊磚
每層戶數
1
謄本用途
住宅
使用分區
第四種住宅區;
注意事項
--
收合
物件特色
格局方正採光佳
坐東北朝西南冬暖夏涼
面綠景景觀好
近武廟商圈採買方便
近文化中心及衛武營
綠景公園護眼睛
騎樓可停汽車好方便
低總價透天,屋主誠售
類似物件實價登錄(16)
距離該物件1公里內,半年內成交,別墅/透天
共有16間與我相似的實價登錄物件
編輯篩選條件
列表
地圖
年月
地址
類型/車位
總價
單價
建坪
地坪
屋齡
樓層
格局
備註資訊:其他增建;
114年12月

高雄市苓雅區福德三路21巷56號
別墅/透天
281萬
13.39萬
21.01坪
15.13坪
53.8年
1樓/2樓
3房1廳2衛
備註資訊:親友、員工、共有人或其他特殊關係間之交易;未登記建物;
114年12月
別墅/透天高雄市苓雅區福德三路21巷56號281萬
13.39萬/坪
建坪21.01坪地坪15.13無車位
3房1廳2衛53.8年1樓/2樓
3房1廳2衛53.8年1樓/2樓
交易備註
114年11月

高雄市苓雅區武漢街5號
別墅/透天
1,050萬
36.37萬
28.87坪
17.55坪
57.5年
1樓/2樓
8房2廳4衛
備註資訊:頂樓加蓋;其他增建;
114年11月
別墅/透天高雄市苓雅區武漢街5號1,050萬
36.37萬/坪
建坪28.87坪地坪17.55無車位
8房2廳4衛57.5年1樓/2樓
8房2廳4衛57.5年1樓/2樓
交易備註
- 資料來源:
為信義房屋最新成交行情;
為內政部最新公布的實價登錄資料;
該數值為系統運算,詳細請看說明
- 本實價登錄分類係綜合內政部實價登錄2020年7月之建物型態分類調整,以及申報登錄之建物型態、建物權狀登載之「主要用途」資料推估而成,故資料呈現類型、順序可能會與內政部不動產交易實價查詢服務網之搜尋結果有所差異,請斟酌參考。看看我們如何推估實價登錄類型與順序
- 特殊行情物件可能為受到特別條件或特殊關係影響所造成,詳情請參考頁面之粉色「備註資訊」欄。排除特殊交易功能,開啟後可即時排除顯示申報備註中關係人間交易、特殊交易情況及標的類型、與政府有關之交易、僅車位交易、分件登記、含多筆土地或多棟建物、 交易標的僅有建物、土地面積為0(含地上權物件),及其他備註資訊,關閉後則會恢復顯示。
- 歷史移轉次數依據信義成交行情及政府實價登錄資訊推估,再由系統比對當筆與前一筆實價登錄,交易明細完全吻合方計算漲跌幅,當筆交易漲跌幅計算式為(當筆交易之成交總價/前一筆交易之成交總價)-1,計算百分比至小數點後兩位;可能與實際交易有所落差,資料請斟酌參考。
為信義房屋最新成交行情;- 本實價登錄分類係綜合內政部實價登錄2020年7月之建物型態分類調整,以及申報登錄之建物型態、建物權狀登載之「主要用途」資料推估而成,故資料呈現類型、順序可能會與內政部不動產交易實價查詢服務網之搜尋結果有所差異,請斟酌參考。看看我們如何推估實價登錄類型與順序
- 特殊行情物件可能為受到特別條件或特殊關係影響所造成,詳情請參考頁面之粉色「備註資訊」欄。排除特殊交易功能,開啟後可即時排除顯示申報備註中關係人間交易、特殊交易情況及標的類型、與政府有關之交易、僅車位交易、分件登記、含多筆土地或多棟建物、 交易標的僅有建物、土地面積為0(含地上權物件),及其他備註資訊,關閉後則會恢復顯示。
- 歷史移轉次數依據信義成交行情及政府實價登錄資訊推估,再由系統比對當筆與前一筆實價登錄,交易明細完全吻合方計算漲跌幅,當筆交易漲跌幅計算式為(當筆交易之成交總價/前一筆交易之成交總價)-1,計算百分比至小數點後兩位;可能與實際交易有所落差,資料請斟酌參考。
查看實價登錄
本案專家

根據你的設定值計算
55,754/月


