
請注意,上方物件照片如有街景,為物件附近環境介紹,非物件本身。
1/18
有486人也在關注這間👀
本案專家
更多挑選
按下按鈕表示您已同意本站
服務條款
與隱私權聲明
預約看屋
景美女中成家首購宅
(8160FM)
台北市文山區辛亥路七段
有486人也在關注這間👀
總價
1,450萬
建坪單價
53.49 萬/坪
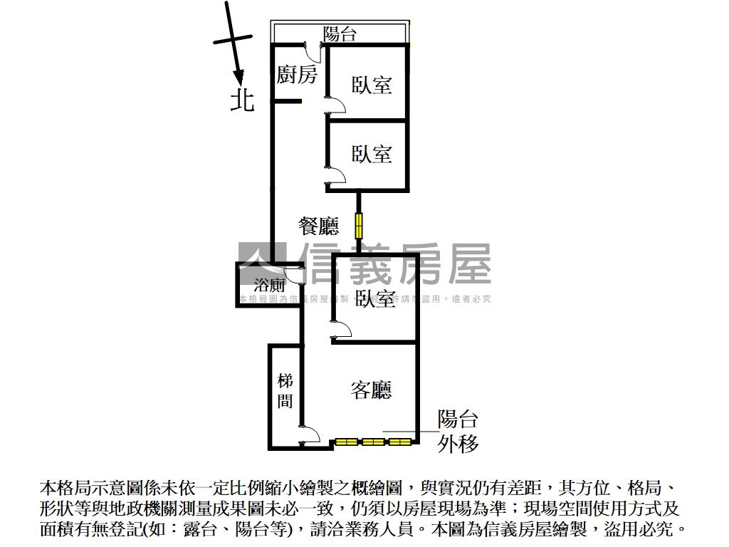
格局
3房2廳1衛
房貸試算
計算
元/月
年|利率%概算|undefined年寬限期
符合首購資格嗎?
坪數詳情
細項
建坪27.11
主+陽24.43
地坪10.08
類型公寓
屋齡41.0年
樓層4樓/5樓
加蓋格局--
謄本用途住家用
使用分區第三種住宅區; 道路用地(公共設施用地)【61/2/7】;
完整物件詳情
本案專家
更多挑選
物件特色
低總價成家首選
三房邊間採光佳
學區走路就到
木新生活圈機能便利
三房都可放雙人床
近河濱公園休閒好去處
靜巷純住
網路預約專人服務
周邊生活機能


SinyiCare十大守護 信義房屋購售屋服務保障
點擊觀看生活機能
捷運 (3)
公車 (17)
公共自行車 (3)
停車場 (3)
0Y5站(興建中) - 出口1
16.6分鐘 / 1198m
1溝子口站(規劃中) - 出口
10.9分鐘 / 794m
2馬明潭站(規劃中) - 出口
19.3分鐘 / 1378m
0Y5站(興建中) - 出口1
16.6分鐘 / 1198m
1溝子口站(規劃中) - 出口
10.9分鐘 / 794m
2馬明潭站(規劃中) - 出口
19.3分鐘 / 1378m

SinyiCare十大守護 信義房屋購售屋服務保障
類似物件實價登錄
(37)
1公里內 | 半年內 | 公寓
3房2廳2衛
|27.07坪
|無車位
2,260萬83.49萬/坪
114/12成交
4房2廳2衛
|42.2坪
|無車位
1,605萬38.03萬/坪
115/02成交


