
請注意,上方物件照片如有街景,為物件附近環境介紹,非物件本身。
1/22
有53人也在關注這間👀
本案專家
更多挑選
按下按鈕表示您已同意本站
服務條款
與隱私權聲明
預約看屋
富國路大墅雲集三角窗透店
(8401PQ)
桃園市桃園區富國路
有53人也在關注這間👀
總價
3,880萬
含車位價
建坪單價
本物件含車位,詳洽經紀人員
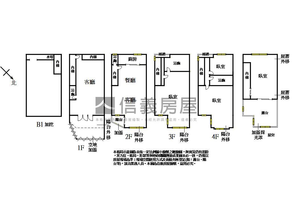
格局
4房3廳4衛
房貸試算
計算
元/月
年|利率%概算|undefined年寬限期
符合首購資格嗎?
坪數詳情
細項
建坪65.39
主+陽(含其他)64.09
地坪22.34
類型店面/透天
屋齡20.6年
樓層1-4樓/4樓
管理費
約2,000 元/月
加蓋格局--
謄本用途店舖、住宅、梯間
使用分區見土地使用分區證明影本;
完整物件詳情
本案專家
更多挑選
物件特色
角間臨路保值地段
格局方正好規劃
近交流道四通發達
衛浴有開窗好通風
社區僅四戶正臨富國路
難得釋出,敬請把握
網路預約專人服務
買方服務費僅成交價1%
周邊生活機能


SinyiCare十大守護 信義房屋購售屋服務保障
點擊觀看生活機能
公車 (12)
0銀店子
0分鐘 / 3m
1李氏宗祠
0.1分鐘 / 5m
2李氏宗祠
0.3分鐘 / 19m
3銀店子
0.3分鐘 / 23m
4富國社區
2.9分鐘 / 215m
5富國社區
3分鐘 / 221m
6富國起毛廠
4分鐘 / 280m
7富國起毛廠
4.2分鐘 / 291m
8莊敬路口
4.3分鐘 / 299m
9莊敬路口
4.3分鐘 / 299m
A銀店埤
6.6分鐘 / 482m
B銀店埤
6.8分鐘 / 491m
0銀店子
0分鐘 / 3m
1李氏宗祠
0.1分鐘 / 5m
2李氏宗祠
0.3分鐘 / 19m
3銀店子
0.3分鐘 / 23m
4富國社區
2.9分鐘 / 215m
完整周邊生活圈


SinyiCare十大守護 信義房屋購售屋服務保障
類似物件實價登錄
(3)
1公里內 | 半年內 | 店面/透天
5房3廳3衛
|73.89坪
|無車位
2,500萬33.83萬/坪
114/10成交
4房3廳2衛
|17.06坪
|無車位
300萬17.59萬/坪
115/01成交


