
1/10
請注意,上方物件照片如有街景,為物件附近環境介紹,非物件本身。
1/10
有6人也在關注這間👀
本案專家

預約看屋
按下送出表示您已同意本站
服務條款
與隱私權聲明
送出
台北橋美寓頂加大空間
(8457ZZ)
新北市三重區和平街
有6人也在關注這間👀
詳情
總價
1,488萬
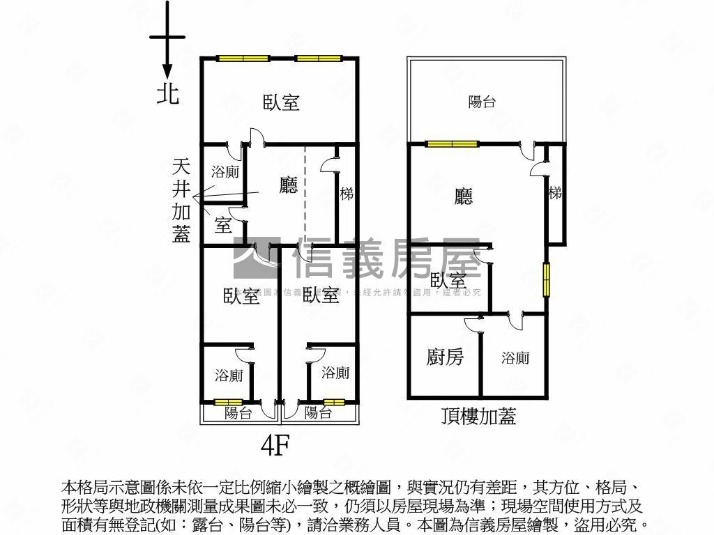
格局
4房2廳4衛1室
建坪
17.91坪
(主建物17.91坪)
類型
公寓
樓層
4樓/4樓
建坪單價
本物件含加蓋,詳洽經紀人員
屋齡
52.4年
地坪
6.61坪
地坪單價
詳洽經紀人員

SinyiCare十大守護 信義房屋購售屋服務保障
點擊觀看生活機能
捷運 (3)公車 (12)公共自行車 (2)
0臺北橋站 - 出口
4.2分鐘 / 305m
1大橋頭站 - 出口1A
39分鐘 / 2743m
2大橋頭站 - 出口1
39.7分鐘 / 2792m
0臺北橋站 - 出口
4.2分鐘 / 305m
1大橋頭站 - 出口1A
39分鐘 / 2743m
2大橋頭站 - 出口1
39.7分鐘 / 2792m

SinyiCare十大守護 信義房屋購售屋服務保障
建坪
17.91坪
詳情
建坪單價
本物件含加蓋,詳洽經紀人員
地坪
6.61坪
主建物
17.91坪
地坪單價
詳洽經紀人員
格局
3房2衛
加蓋格局
1房2廳2衛1室
屋齡
52.4年
類型
公寓
樓層
4樓/4樓
車位
--
邊間/暗房
否/否
建物朝向
北
警衛管理
無
建物詳情
建物結構
鋼筋混凝土
外牆建材
馬賽克
每層戶數
2
謄本用途
住家用
使用分區
住宅區; 商業區;
注意事項
--
收合
物件特色
格局方正採光通風佳
北市一橋之隔
近台北橋捷運站
近市場採買便利
離塵不離城環境優靜
戶數單純一層兩戶
小資成家置產收租寶
使用空間大可塑性高
類似物件實價登錄(85)
距離該物件1公里內,半年內成交,公寓
共有85間與我相似的實價登錄物件
編輯篩選條件
列表
地圖
年月
地址
類型/車位
總價
單價
建坪
地坪
屋齡
樓層
格局
114年11月

新北市三重區大榮街27號四樓
公寓
1,380萬
64.28萬
21.47坪
7.77坪
51.3年
4樓/4樓
3房2廳2衛
歷史移轉3次
備註資訊:頂樓加蓋;其他增建;
114年11月
公寓新北市三重區大榮街27號四樓移轉3次
1,380萬
64.28萬/坪
建坪21.47坪地坪7.77無車位
3房2廳2衛51.3年4樓/4樓
3房2廳2衛51.3年4樓/4樓
交易備註
114年11月

新北市三重區和平街67號三樓
公寓
725萬
39.99萬
18.13坪
6.67坪
49.9年
3樓/4樓
3房1廳1衛
備註資訊:其他增建;
114年11月
公寓新北市三重區和平街67號三樓725萬
39.99萬/坪
建坪18.13坪地坪6.67無車位
3房1廳1衛49.9年3樓/4樓
3房1廳1衛49.9年3樓/4樓
交易備註
114年11月

新北市三重區長元街98巷2號
公寓
1,040萬
60.5萬
17.19坪
17.57坪
49.8年
1樓/4樓
10房3廳3衛
備註資訊:親友、員工、共有人或其他特殊關係間之交易;
114年11月
公寓新北市三重區長元街98巷2號1,040萬
60.5萬/坪
建坪17.19坪地坪17.57無車位
10房3廳3衛49.8年1樓/4樓
10房3廳3衛49.8年1樓/4樓
交易備註
114年10月

新北市三重區中央南路45巷21號
公寓
565萬
34.1萬
16.57坪
9.1坪
56.8年
1樓/2樓
2房1廳1衛
備註資訊:親友、員工、共有人或其他特殊關係間之交易;
114年10月
公寓新北市三重區中央南路45巷21號565萬
34.1萬/坪
建坪16.57坪地坪9.1無車位
2房1廳1衛56.8年1樓/2樓
2房1廳1衛56.8年1樓/2樓
交易備註
114年10月

新北市三重區正義北路33巷12號
公寓
600萬
38.14萬
15.73坪
5.37坪
51.3年
3樓/4樓
3房1廳1衛
備註資訊:其他增建;
114年10月
公寓新北市三重區正義北路33巷12號600萬
38.14萬/坪
建坪15.73坪地坪5.37無車位
3房1廳1衛51.3年3樓/4樓
3房1廳1衛51.3年3樓/4樓
交易備註
- 資料來源:
為信義房屋最新成交行情;
為內政部最新公布的實價登錄資料;
該數值為系統運算,詳細請看說明
- 本實價登錄分類係綜合內政部實價登錄2020年7月之建物型態分類調整,以及申報登錄之建物型態、建物權狀登載之「主要用途」資料推估而成,故資料呈現類型、順序可能會與內政部不動產交易實價查詢服務網之搜尋結果有所差異,請斟酌參考。看看我們如何推估實價登錄類型與順序
- 特殊行情物件可能為受到特別條件或特殊關係影響所造成,詳情請參考頁面之粉色「備註資訊」欄。排除特殊交易功能,開啟後可即時排除顯示申報備註中關係人間交易、特殊交易情況及標的類型、與政府有關之交易、僅車位交易、分件登記、含多筆土地或多棟建物、 交易標的僅有建物、土地面積為0(含地上權物件),及其他備註資訊,關閉後則會恢復顯示。
- 歷史移轉次數依據信義成交行情及政府實價登錄資訊推估,再由系統比對當筆與前一筆實價登錄,交易明細完全吻合方計算漲跌幅,當筆交易漲跌幅計算式為(當筆交易之成交總價/前一筆交易之成交總價)-1,計算百分比至小數點後兩位;可能與實際交易有所落差,資料請斟酌參考。
為信義房屋最新成交行情;- 本實價登錄分類係綜合內政部實價登錄2020年7月之建物型態分類調整,以及申報登錄之建物型態、建物權狀登載之「主要用途」資料推估而成,故資料呈現類型、順序可能會與內政部不動產交易實價查詢服務網之搜尋結果有所差異,請斟酌參考。看看我們如何推估實價登錄類型與順序
- 特殊行情物件可能為受到特別條件或特殊關係影響所造成,詳情請參考頁面之粉色「備註資訊」欄。排除特殊交易功能,開啟後可即時排除顯示申報備註中關係人間交易、特殊交易情況及標的類型、與政府有關之交易、僅車位交易、分件登記、含多筆土地或多棟建物、 交易標的僅有建物、土地面積為0(含地上權物件),及其他備註資訊,關閉後則會恢復顯示。
- 歷史移轉次數依據信義成交行情及政府實價登錄資訊推估,再由系統比對當筆與前一筆實價登錄,交易明細完全吻合方計算漲跌幅,當筆交易漲跌幅計算式為(當筆交易之成交總價/前一筆交易之成交總價)-1,計算百分比至小數點後兩位;可能與實際交易有所落差,資料請斟酌參考。
查看實價登錄
本案專家

根據你的設定值計算
75,558/月


