
1/7
請注意,上方物件照片如有街景,為物件附近環境介紹,非物件本身。
1/7
有5人也在關注這間👀
本案專家

預約看屋
按下送出表示您已同意本站
服務條款
與隱私權聲明
送出
樹林臨路獨棟邊間廠店
(8527WT)
新北市樹林區俊英街
有5人也在關注這間👀
詳情
總價
18,800萬
格局
5廳4衛7室
建坪
360.55坪
(主+陽301.6坪)
類型
廠房
樓層
1-2樓/2樓
建坪單價
52.14 萬/坪
屋齡
39.6年
地坪
218.76坪
地坪單價
--

SinyiCare十大守護 信義房屋購售屋服務保障
點擊觀看生活機能
捷運 (1)公車 (16)公共自行車 (3)停車場 (2)
0監理所站(規劃中) - 出口
17分鐘 / 1250m
0監理所站(規劃中) - 出口
17分鐘 / 1250m

SinyiCare十大守護 信義房屋購售屋服務保障
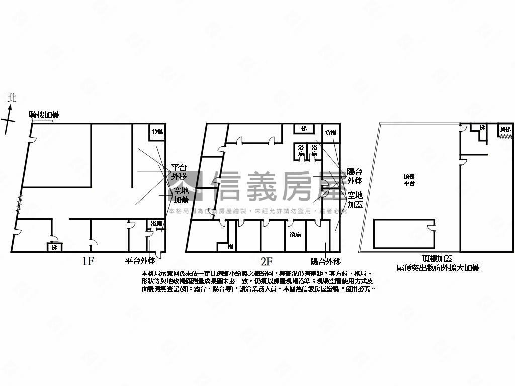
建坪
360.55坪
詳情
建坪單價
52.14 萬/坪
地坪
218.76坪
主+陽
301.6坪=
主建物
291.16坪+
陽台
10.44坪
屋頂突出物
22.91坪
平台
10.44坪
騎樓
25.59坪
格局
5廳3衛7室
加蓋格局
1衛
屋齡
39.6年
類型
廠房
樓層
1-2樓/2樓
車位
--
邊間/暗房
是/否
建物朝向
西南
警衛管理
無
建物詳情
建物結構
鋼筋混凝土
外牆建材
馬賽克
每層戶數
1
謄本用途
廠房、避難室、宿舍、辦公室
使用分區
乙種工業區;
注意事項
--
收合
物件特色
臨大路具店面展示效益
獨棟邊間雙面臨路
地形方正漂亮
一樓使照高度4.7米
鄰近住宅區餐飲機能佳
附近產業聚集招工方便
增建空間大
稀有釋出歡迎預約看屋
類似物件實價登錄(11)
距離該物件1公里內,半年內成交,廠房
共有11間與我相似的實價登錄物件
編輯篩選條件
列表
地圖
年月
地址
類型/車位
總價
單價
建坪
地坪
屋齡
樓層
格局
114年09月

新北市新莊區民安西路403巷6號
廠房
1,709萬
85.25萬
20.04坪
39.73坪
40.2年
1樓/2樓
0衛
歷史移轉6次
114年09月
廠房新北市新莊區民安西路403巷6號移轉6次
1,709萬
85.25萬/坪
建坪20.04坪地坪39.73無車位
0衛40.2年1樓/2樓
0衛40.2年1樓/2樓
114年07月

新北市新莊區民安西路403巷6號
廠房
4,305萬
99.14萬
43.42坪
86.09坪
40.0年
1樓/2樓
0衛
歷史移轉6次
114年07月
廠房新北市新莊區民安西路403巷6號移轉6次
4,305萬
99.14萬/坪
建坪43.42坪地坪86.09無車位
0衛40.0年1樓/2樓
0衛40.0年1樓/2樓
115年01月

新北市樹林區俊英街116巷41弄1號八樓
廠房
950萬
30.5萬
31.15坪
6.82坪
30.8年
8樓/10樓
3房1廳2衛
115年01月
廠房新北市樹林區俊英街116巷41弄1號八樓950萬
30.5萬/坪
建坪31.15坪地坪6.82無車位
3房1廳2衛30.8年8樓/10樓
3房1廳2衛30.8年8樓/10樓
備註資訊:陽台外推;其他增建;
1,000萬
29.39萬/坪
建坪34.03坪地坪5.42無車位
3房2廳2衛31.4年4樓/11樓
3房2廳2衛31.4年4樓/11樓
交易備註
- 資料來源:
為信義房屋最新成交行情;
為內政部最新公布的實價登錄資料;
該數值為系統運算,詳細請看說明
- 本實價登錄分類係綜合內政部實價登錄2020年7月之建物型態分類調整,以及申報登錄之建物型態、建物權狀登載之「主要用途」資料推估而成,故資料呈現類型、順序可能會與內政部不動產交易實價查詢服務網之搜尋結果有所差異,請斟酌參考。看看我們如何推估實價登錄類型與順序
- 特殊行情物件可能為受到特別條件或特殊關係影響所造成,詳情請參考頁面之粉色「備註資訊」欄。排除特殊交易功能,開啟後可即時排除顯示申報備註中關係人間交易、特殊交易情況及標的類型、與政府有關之交易、僅車位交易、分件登記、含多筆土地或多棟建物、 交易標的僅有建物、土地面積為0(含地上權物件),及其他備註資訊,關閉後則會恢復顯示。
- 歷史移轉次數依據信義成交行情及政府實價登錄資訊推估,再由系統比對當筆與前一筆實價登錄,交易明細完全吻合方計算漲跌幅,當筆交易漲跌幅計算式為(當筆交易之成交總價/前一筆交易之成交總價)-1,計算百分比至小數點後兩位;可能與實際交易有所落差,資料請斟酌參考。
為信義房屋最新成交行情;- 本實價登錄分類係綜合內政部實價登錄2020年7月之建物型態分類調整,以及申報登錄之建物型態、建物權狀登載之「主要用途」資料推估而成,故資料呈現類型、順序可能會與內政部不動產交易實價查詢服務網之搜尋結果有所差異,請斟酌參考。看看我們如何推估實價登錄類型與順序
- 特殊行情物件可能為受到特別條件或特殊關係影響所造成,詳情請參考頁面之粉色「備註資訊」欄。排除特殊交易功能,開啟後可即時排除顯示申報備註中關係人間交易、特殊交易情況及標的類型、與政府有關之交易、僅車位交易、分件登記、含多筆土地或多棟建物、 交易標的僅有建物、土地面積為0(含地上權物件),及其他備註資訊,關閉後則會恢復顯示。
- 歷史移轉次數依據信義成交行情及政府實價登錄資訊推估,再由系統比對當筆與前一筆實價登錄,交易明細完全吻合方計算漲跌幅,當筆交易漲跌幅計算式為(當筆交易之成交總價/前一筆交易之成交總價)-1,計算百分比至小數點後兩位;可能與實際交易有所落差,資料請斟酌參考。
查看實價登錄
本案專家

根據你的設定值計算
954,626/月


