
1/14
請注意,上方物件照片如有街景,為物件附近環境介紹,非物件本身。
1/14
有48人也在關注這間👀
本案專家

預約看屋
按下送出表示您已同意本站
服務條款
與隱私權聲明
送出
燙金七期正市政路透天店面
(8631CC)
台中市西屯區市政路
有48人也在關注這間👀
詳情
總價
6,888萬
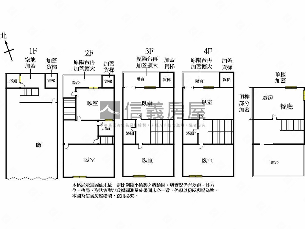
格局
6房2廳4衛
建坪
81.49坪
(主+陽77.19坪)
類型
店面/透天
樓層
1-4樓/4樓
建坪單價
84.53 萬/坪
屋齡
26.9年
地坪
28.98坪
地坪單價
237.68 萬/坪

SinyiCare十大守護 信義房屋購售屋服務保障
點擊觀看生活機能
公車 (11)公共自行車 (2)停車場 (3)
0黎明龍門路口
3.8分鐘 / 272m
1黎明龍門路口
4.4分鐘 / 317m
2黎明市政路口
4分鐘 / 255m
3市政黎明路口
4.2分鐘 / 271m
4黎明市政路口
4.5分鐘 / 293m
5環中市政路口
5.8分鐘 / 400m
6西屯區公所(朝貴路)
6分鐘 / 425m
7西屯區公所
7.7分鐘 / 545m
8西屯區公所
7.7分鐘 / 548m
9西屯區公所(朝貴路)
6.5分鐘 / 461m
A河南市政路口
7.2分鐘 / 484m
0黎明龍門路口
3.8分鐘 / 272m
1黎明龍門路口
4.4分鐘 / 317m
2黎明市政路口
4分鐘 / 255m
3市政黎明路口
4.2分鐘 / 271m
4黎明市政路口
4.5分鐘 / 293m
觀看全部

SinyiCare十大守護 信義房屋購售屋服務保障
建坪
81.49坪
詳情
建坪單價
84.53 萬/坪
地坪
28.98坪
主+陽
77.19坪=
主建物
74.45坪+
陽台
2.74坪
屋頂突出物
4.3坪
地坪單價
237.68 萬/坪
格局
6房1廳4衛
加蓋格局
1廳
屋齡
26.9年
類型
店面/透天
樓層
1-4樓/4樓
車位
--
邊間/暗房
是/否
建物朝向
西南
大門朝向
西南
落地窗朝向
西南
警衛管理
無
建物詳情
建物結構
鋼筋混凝土
外牆建材
二丁掛
每層戶數
1
謄本用途
住宅、店舖、停車空間、樓梯間
使用分區
第二種住宅區;
注意事項
--
收合
物件特色
黃金門牌正市政路店面
可宅可申請公司行號
交通便利位於交通樞紐
街道寬闊、車水馬龍
機能便利、快速上74
近新光、大遠百大型商場
車流高未來發展可期
多人潮地點正七期店面
類似物件實價登錄(9)
距離該物件1公里內,半年內成交,店面/別墅/透天
共有9間與我相似的實價登錄物件
編輯篩選條件
列表
地圖
年月
地址
類型/車位
總價
單價
建坪
地坪
屋齡
樓層
格局
備註資訊:親友、員工、共有人或其他特殊關係間之交易;
1,200萬
含車位價
18.78萬/坪
含車位計算
建坪63.9坪(含車位7.82坪)地坪20.55有車位
3房2廳3衛27.0年1樓/4樓
3房2廳3衛27.0年1樓/4樓
交易備註
114年08月

台中市西屯區朝貴路95號
別墅/透天
有車位
4,000萬
含車位價
含車位價
38.73萬
含車位計算
含車位計算
103.27坪
含車位--坪
含車位--坪
41.78坪
20.0年
1樓/5樓
6房3廳7衛
114年08月
別墅/透天台中市西屯區朝貴路95號4,000萬
含車位價
38.73萬/坪
含車位計算
建坪103.27坪(含車位--坪)地坪41.78有車位
6房3廳7衛20.0年1樓/5樓
6房3廳7衛20.0年1樓/5樓
114年07月

台中市西屯區市政南一路31號
別墅/透天
3,980萬
40.78萬
97.6坪
45坪
29.6年
1樓/4樓
6房5廳4衛
歷史移轉3次
備註資訊:陽台外推;未登記建物;
114年07月
別墅/透天台中市西屯區市政南一路31號移轉3次
3,980萬
40.78萬/坪
建坪97.6坪地坪45無車位
6房5廳4衛29.6年1樓/4樓
6房5廳4衛29.6年1樓/4樓
交易備註
114年07月

台中市西屯區龍德路二段396之10號
別墅/透天
3,900萬
64.56萬
60.41坪
31.26坪
3.6年
1樓/4樓
4房2廳4衛
歷史移轉2次
備註資訊:陽台外推;頂樓加蓋;其他增建;
114年07月
別墅/透天台中市西屯區龍德路二段396之10號移轉2次
3,900萬
64.56萬/坪
建坪60.41坪地坪31.26無車位
4房2廳4衛3.6年1樓/4樓
4房2廳4衛3.6年1樓/4樓
交易備註
114年06月

台中市南屯區懷德街59巷17號
別墅/透天
1,880萬
68.42萬
27.48坪
23.59坪
49.8年
1樓/2樓
4房2廳2衛
備註資訊:其他增建;
114年06月
別墅/透天台中市南屯區懷德街59巷17號1,880萬
68.42萬/坪
建坪27.48坪地坪23.59無車位
4房2廳2衛49.8年1樓/2樓
4房2廳2衛49.8年1樓/2樓
交易備註
- 資料來源:
為信義房屋最新成交行情;
為內政部最新公布的實價登錄資料;
該數值為系統運算,詳細請看說明
- 本實價登錄分類係綜合內政部實價登錄2020年7月之建物型態分類調整,以及申報登錄之建物型態、建物權狀登載之「主要用途」資料推估而成,故資料呈現類型、順序可能會與內政部不動產交易實價查詢服務網之搜尋結果有所差異,請斟酌參考。看看我們如何推估實價登錄類型與順序
- 特殊行情物件可能為受到特別條件或特殊關係影響所造成,詳情請參考頁面之粉色「備註資訊」欄。排除特殊交易功能,開啟後可即時排除顯示申報備註中關係人間交易、特殊交易情況及標的類型、與政府有關之交易、僅車位交易、分件登記、含多筆土地或多棟建物、 交易標的僅有建物、土地面積為0(含地上權物件),及其他備註資訊,關閉後則會恢復顯示。
- 歷史移轉次數依據信義成交行情及政府實價登錄資訊推估,再由系統比對當筆與前一筆實價登錄,交易明細完全吻合方計算漲跌幅,當筆交易漲跌幅計算式為(當筆交易之成交總價/前一筆交易之成交總價)-1,計算百分比至小數點後兩位;可能與實際交易有所落差,資料請斟酌參考。
為信義房屋最新成交行情;- 本實價登錄分類係綜合內政部實價登錄2020年7月之建物型態分類調整,以及申報登錄之建物型態、建物權狀登載之「主要用途」資料推估而成,故資料呈現類型、順序可能會與內政部不動產交易實價查詢服務網之搜尋結果有所差異,請斟酌參考。看看我們如何推估實價登錄類型與順序
- 特殊行情物件可能為受到特別條件或特殊關係影響所造成,詳情請參考頁面之粉色「備註資訊」欄。排除特殊交易功能,開啟後可即時排除顯示申報備註中關係人間交易、特殊交易情況及標的類型、與政府有關之交易、僅車位交易、分件登記、含多筆土地或多棟建物、 交易標的僅有建物、土地面積為0(含地上權物件),及其他備註資訊,關閉後則會恢復顯示。
- 歷史移轉次數依據信義成交行情及政府實價登錄資訊推估,再由系統比對當筆與前一筆實價登錄,交易明細完全吻合方計算漲跌幅,當筆交易漲跌幅計算式為(當筆交易之成交總價/前一筆交易之成交總價)-1,計算百分比至小數點後兩位;可能與實際交易有所落差,資料請斟酌參考。
查看實價登錄
本案專家

根據你的設定值計算
349,759/月


