
1/19
請注意,上方物件照片如有街景,為物件附近環境介紹,非物件本身。
1/19
有19人也在關注這間👀
本案專家

預約看屋
按下送出表示您已同意本站
服務條款
與隱私權聲明
送出
大里一期◆臨路透天
(8804MP)
台中市大里區文隆街
有19人也在關注這間👀
詳情
總價
2,058萬
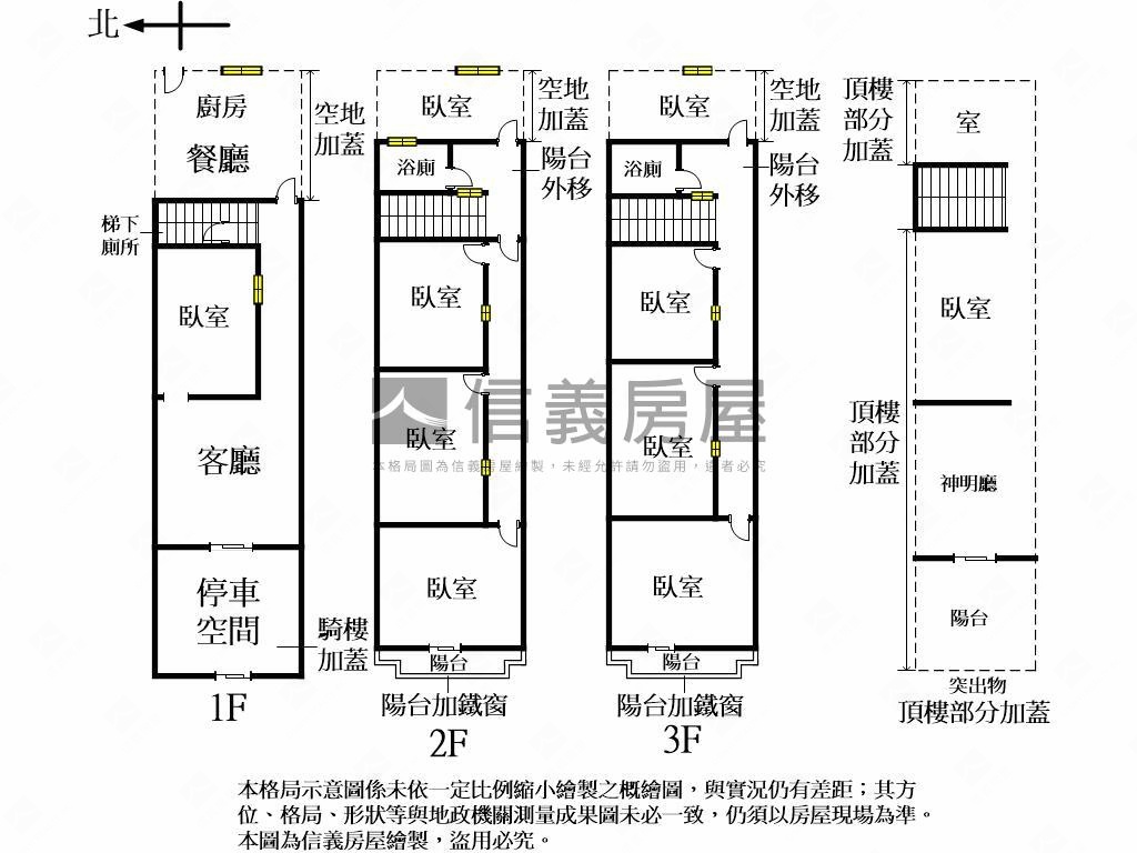
格局
10房3廳3衛1室
建坪
56.66坪
(主+陽50.14坪)
類型
透天
樓層
1-3樓/3樓
建坪單價
36.32 萬/坪
屋齡
37.5年
地坪
25.41坪
地坪單價
--

SinyiCare十大守護 信義房屋購售屋服務保障
點擊觀看生活機能
公車 (18)公共自行車 (2)停車場 (2)
0興大附中(益民路)
3.3分鐘 / 239m
1益民德芳路口
3.9分鐘 / 274m
2益民德芳路口
3.9分鐘 / 274m
3興大附中(益民路)
4.8分鐘 / 347m
4興大附中(東榮路)
6.2分鐘 / 448m
5興大附中(東榮路)
6.4分鐘 / 461m
6國光德芳路口
5.6分鐘 / 415m
7國光德芳路口
6分鐘 / 421m
8大里仁愛醫院(東榮路)
7.1分鐘 / 523m
9大里仁愛醫院(國光路)
9.5分鐘 / 680m
A大里地政事務所
7.9分鐘 / 569m
B德芳兒童公園
7.7分鐘 / 549m
C大里地政事務所
8分鐘 / 578m
D大里仁愛醫院(國光路)
7.3分鐘 / 522m
E德芳兒童公園
8.6分鐘 / 622m
F益民國小
7.7分鐘 / 549m
G國光花市
9.1分鐘 / 627m
H益民國小
7.8分鐘 / 554m
0興大附中(益民路)
3.3分鐘 / 239m
1益民德芳路口
3.9分鐘 / 274m
2益民德芳路口
3.9分鐘 / 274m
3興大附中(益民路)
4.8分鐘 / 347m
4興大附中(東榮路)
6.2分鐘 / 448m
觀看全部

SinyiCare十大守護 信義房屋購售屋服務保障
建坪
56.66坪
詳情
建坪單價
36.32 萬/坪
地坪
25.41坪
主+陽
50.14坪=
主建物
46.47坪+
陽台
3.67坪
屋頂突出物
2.08坪
騎樓
4.45坪
格局
7房1廳3衛
加蓋格局
3房2廳1室
屋齡
37.5年
類型
透天
樓層
1-3樓/3樓
車位
--
邊間/暗房
否/否
建物朝向
西
大門朝向
西
落地窗朝向
西
警衛管理
無
建物詳情
建物結構
鋼筋混凝土
外牆建材
二丁掛
每層戶數
1
謄本用途
店住宅、人行道、梯間
使用分區
見土地使用分區證明影本;
注意事項
--
收合
物件特色
近中興商圈,益民商圈
臨路透天稀有釋出
房間數多好規劃
格局方正
屋主誠意出售
門前道路寬約八米
線上預約,專人帶看
買方服務費成交價1%
類似物件實價登錄(19)
距離該物件1公里內,半年內成交,別墅/透天
共有19間與我相似的實價登錄物件
編輯篩選條件
列表
地圖
年月
地址
類型/車位
總價
單價
建坪
地坪
屋齡
樓層
格局
114年10月

台中市大里區西榮路152巷33號
別墅/透天
1,320萬
25.07萬
52.66坪
23.29坪
36.3年
1樓/3樓
4房1廳3衛
備註資訊:其他增建;
114年10月
別墅/透天台中市大里區西榮路152巷33號1,320萬
25.07萬/坪
建坪52.66坪地坪23.29無車位
4房1廳3衛36.3年1樓/3樓
4房1廳3衛36.3年1樓/3樓
交易備註
114年05月


西榮路260巷63號
別墅/透天
1,680萬
45.19萬
37.18坪
28.43坪
39.3年
1樓/2樓
4房3廳2衛
備註資訊:頂樓加蓋;其他增建;
114年05月
別墅/透天西榮路260巷63號1,680萬
45.19萬/坪
建坪37.18坪地坪28.43無車位
4房3廳2衛39.3年1樓/2樓
4房3廳2衛39.3年1樓/2樓
信義成交交易備註
114年05月

台中市大里區文芳街99號
別墅/透天
1,960萬
40.05萬
48.94坪
27.83坪
32.8年
1樓/3樓
5房2廳3衛
歷史移轉3次
備註資訊:頂樓加蓋;其他增建;
114年05月
別墅/透天台中市大里區文芳街99號移轉3次
1,960萬
40.05萬/坪
建坪48.94坪地坪27.83無車位
5房2廳3衛32.8年1樓/3樓
5房2廳3衛32.8年1樓/3樓
交易備註
114年09月


新仁路三段7巷16號
別墅/透天
有車位
1,480萬
含車位價
含車位價
24.77萬
含車位計算
含車位計算
59.76坪
含車位--坪
含車位--坪
25.96坪
30.7年
1樓/3樓
4房2廳3衛
備註資訊:其他增建;
114年09月
別墅/透天新仁路三段7巷16號1,480萬
含車位價
24.77萬/坪
含車位計算
建坪59.76坪(含車位--坪)地坪25.96有車位
4房2廳3衛30.7年1樓/3樓
4房2廳3衛30.7年1樓/3樓
信義成交交易備註
114年09月

台中市大里區永興路232巷37弄7號
別墅/透天
1,220萬
30.35萬
40.19坪
25.41坪
38.6年
1樓/2樓
5房3廳2衛
備註資訊:頂樓加蓋;其他增建;
114年09月
別墅/透天台中市大里區永興路232巷37弄7號1,220萬
30.35萬/坪
建坪40.19坪地坪25.41無車位
5房3廳2衛38.6年1樓/2樓
5房3廳2衛38.6年1樓/2樓
交易備註
- 資料來源:
為信義房屋最新成交行情;
為內政部最新公布的實價登錄資料;
該數值為系統運算,詳細請看說明
- 本實價登錄分類係綜合內政部實價登錄2020年7月之建物型態分類調整,以及申報登錄之建物型態、建物權狀登載之「主要用途」資料推估而成,故資料呈現類型、順序可能會與內政部不動產交易實價查詢服務網之搜尋結果有所差異,請斟酌參考。看看我們如何推估實價登錄類型與順序
- 特殊行情物件可能為受到特別條件或特殊關係影響所造成,詳情請參考頁面之粉色「備註資訊」欄。排除特殊交易功能,開啟後可即時排除顯示申報備註中關係人間交易、特殊交易情況及標的類型、與政府有關之交易、僅車位交易、分件登記、含多筆土地或多棟建物、 交易標的僅有建物、土地面積為0(含地上權物件),及其他備註資訊,關閉後則會恢復顯示。
- 歷史移轉次數依據信義成交行情及政府實價登錄資訊推估,再由系統比對當筆與前一筆實價登錄,交易明細完全吻合方計算漲跌幅,當筆交易漲跌幅計算式為(當筆交易之成交總價/前一筆交易之成交總價)-1,計算百分比至小數點後兩位;可能與實際交易有所落差,資料請斟酌參考。
為信義房屋最新成交行情;- 本實價登錄分類係綜合內政部實價登錄2020年7月之建物型態分類調整,以及申報登錄之建物型態、建物權狀登載之「主要用途」資料推估而成,故資料呈現類型、順序可能會與內政部不動產交易實價查詢服務網之搜尋結果有所差異,請斟酌參考。看看我們如何推估實價登錄類型與順序
- 特殊行情物件可能為受到特別條件或特殊關係影響所造成,詳情請參考頁面之粉色「備註資訊」欄。排除特殊交易功能,開啟後可即時排除顯示申報備註中關係人間交易、特殊交易情況及標的類型、與政府有關之交易、僅車位交易、分件登記、含多筆土地或多棟建物、 交易標的僅有建物、土地面積為0(含地上權物件),及其他備註資訊,關閉後則會恢復顯示。
- 歷史移轉次數依據信義成交行情及政府實價登錄資訊推估,再由系統比對當筆與前一筆實價登錄,交易明細完全吻合方計算漲跌幅,當筆交易漲跌幅計算式為(當筆交易之成交總價/前一筆交易之成交總價)-1,計算百分比至小數點後兩位;可能與實際交易有所落差,資料請斟酌參考。
查看實價登錄
本案專家

根據你的設定值計算
104,501/月


