
請注意,上方物件照片如有街景,為物件附近環境介紹,非物件本身。
1/19
有12人也在關注這間👀
本案專家
更多挑選
按下按鈕表示您已同意本站
服務條款
與隱私權聲明
預約看屋
正興德路面寬金鋪傳家
(8943XU)
台北市文山區興德路
有12人也在關注這間👀
總價
3,850萬
建坪單價
159.62 萬/坪
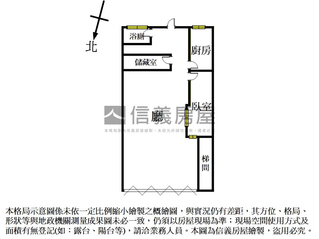
格局
1房1廳1衛1室
房貸試算
計算
元/月
年|利率%概算|undefined年寬限期
符合首購資格嗎?
坪數詳情
細項
建坪24.12
主建物24.12
地坪9.68
類型店面/公寓
屋齡57.0年
樓層1樓/3樓
加蓋格局--
謄本用途住家用
使用分區因土地筆數過多或分區內容過長,請詳見不動產說明書或使用分區證明文件
完整物件詳情
本案專家
更多挑選
物件特色
稀有市場店面
門客絡繹不絕
生意水到渠成
租金收益高
文武百業皆宜
面寬約六米
網路預約專人服務
周邊生活機能


SinyiCare十大守護 信義房屋購售屋服務保障
點擊觀看生活機能
捷運 (2)
公車 (19)
公共自行車 (2)
停車場 (3)
0萬芳醫院站 - 出口
5.8分鐘 / 413m
1辛亥站 - 出口
9.1分鐘 / 627m
0萬芳醫院站 - 出口
5.8分鐘 / 413m
1辛亥站 - 出口
9.1分鐘 / 627m

SinyiCare十大守護 信義房屋購售屋服務保障
類似物件實價登錄
(47)
1公里內 | 半年內 | 店面/公寓
5房2廳2衛
|25.13坪
|無車位
2,100萬83.58萬/坪
114/12成交
3房1廳1衛
|20.6坪
|無車位
1,300萬63.11萬/坪
114/12成交


