
請注意,上方物件照片如有街景,為物件附近環境介紹,非物件本身。
1/22
有18人也在關注這間👀
本案專家
更多挑選
按下按鈕表示您已同意本站
服務條款
與隱私權聲明
預約看屋
有18人也在關注這間👀
總價
1,058萬
含車位價
建坪單價
本物件含車位,詳洽經紀人員
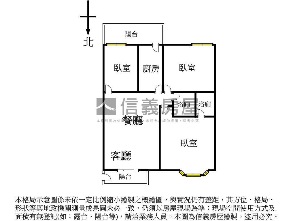
格局
3房2廳2衛
房貸試算
計算
元/月
年|利率%概算|undefined年寬限期
符合首購資格嗎?
坪數詳情
細項
建坪39.85
主+陽25.5
地坪4.49
類型大樓
屋齡30.3年
樓層5樓/17樓
管理費
約1,656 元/月
加蓋格局--
謄本用途集合住宅
使用分區道路用地、第三種住宅區; 道路用地;
完整物件詳情
本案專家
更多挑選
物件特色
格局方正好規劃
近工學商圈生活機能佳
交通方便四面八達
採光明亮
通風良好
鄰近公園
歡迎來電預約看屋
買方服務費成交價1%
周邊生活機能


SinyiCare十大守護 信義房屋購售屋服務保障
點擊觀看生活機能
公車 (14)
公共自行車 (3)
0臺中高工(工學六街)
1.9分鐘 / 136m
1南區公所
2.9分鐘 / 213m
2南區公所
2.9分鐘 / 213m
3南平復興路口
8.3分鐘 / 585m
4復興南平路口
8分鐘 / 553m
5復興南平路口
7.1分鐘 / 481m
6臺中高工(復興路)
5.2分鐘 / 372m
7忠明南平路口
7分鐘 / 493m
8臺中高工(復興路)
6.1分鐘 / 417m
9和平國小(復興路)
11.6分鐘 / 779m
A臺中高工(高工路)
8.9分鐘 / 661m
B臺中高工(高工路)
9.4分鐘 / 694m
C和平國小(復興路)
11.6分鐘 / 810m
D東興樹義一巷口
7.4分鐘 / 483m
0臺中高工(工學六街)
1.9分鐘 / 136m
1南區公所
2.9分鐘 / 213m
2南區公所
2.9分鐘 / 213m
3南平復興路口
8.3分鐘 / 585m
4復興南平路口
8分鐘 / 553m
完整周邊生活圈

SinyiCare十大守護 信義房屋購售屋服務保障
類似物件實價登錄
(120)


