
1/6
請注意,上方物件照片如有街景,為物件附近環境介紹,非物件本身。
1/6
有0人也在關注這間👀
本案專家

預約看屋
按下送出表示您已同意本站
服務條款
與隱私權聲明
送出
富裔華城景觀別墅
(9214MT)
新北市新店區華城路
有0人也在關注這間👀
詳情
總價(含車位)
9,999萬
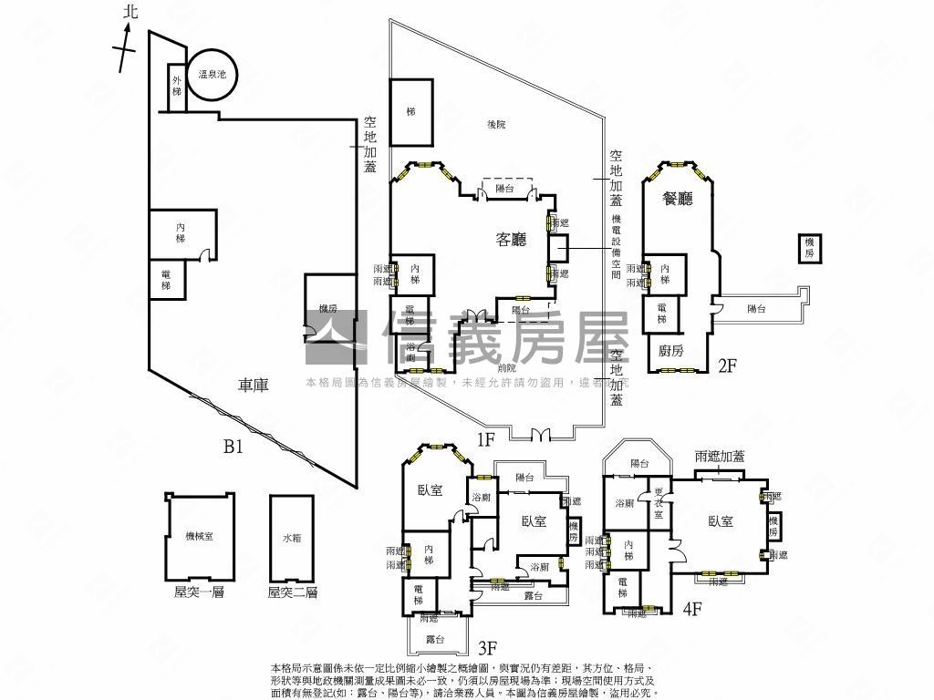
格局
3房2廳4衛1室
建坪
159.97坪
(主+陽87.37坪)
類型
透天
樓層
B1-4樓/4樓
建坪單價
--
屋齡
14.6年
地坪
259.73坪
地坪單價
38.50 萬/坪

SinyiCare十大守護 信義房屋購售屋服務保障
點擊觀看生活機能
重要設施 (1)
0新德宮
260m
0新德宮
260m

SinyiCare十大守護 信義房屋購售屋服務保障
建坪
159.97坪
詳情
建坪單價
--
地坪
259.73坪
主+陽
87.37坪=
主建物
78.34坪+
陽台
9.03坪
地下室
40.77坪
共有部份
20.8坪
屋頂突出物
9.22坪
雨遮
1.8坪
地坪單價
38.50 萬/坪
格局
3房2廳4衛1室
加蓋格局
--
屋齡
14.6年
類型
透天
樓層
B1-4樓/4樓
車位
3個其他,詳情請洽經紀人員更多
邊間/暗房
是/否
建物朝向
南
警衛管理
全天候
建物詳情
建物結構
鋼筋混凝土
外牆建材
二丁掛
每層戶數
1
謄本用途
住家用
使用分區
風景區;
注意事項
--
收合
物件特色
高級住宅優質管理
歐式建築電梯別墅
面101景觀無價
離塵不離城
國三交流道約2.6公里
近捷運新店站
近碧潭風景區
網路預約專人服務
類似物件實價登錄(5)
距離該物件1公里內,半年內成交,別墅/透天
共有5間與我相似的實價登錄物件
編輯篩選條件
列表
地圖
年月
地址
類型/車位
總價
單價
建坪
地坪
屋齡
樓層
格局
114年05月

新北市新店區華城路66之38號
別墅/透天
有車位
8,008萬
含車位價
含車位價
46.89萬
含車位計算
含車位計算
170.79坪
含車位13.61坪
含車位13.61坪
279.52坪
14.0年
1樓/4樓
6房3廳7衛
114年05月
別墅/透天新北市新店區華城路66之38號8,008萬
含車位價
46.89萬/坪
含車位計算
建坪170.79坪(含車位13.61坪)地坪279.52有車位
6房3廳7衛14.0年1樓/4樓
6房3廳7衛14.0年1樓/4樓
114年05月

新北市新店區華城路62之3號
別墅/透天
有車位
10,168萬
含車位價
含車位價
68.96萬
含車位計算
含車位計算
147.45坪
含車位18.15坪
含車位18.15坪
147.45坪
7.4年
1樓/3樓
5房2廳5衛
備註資訊:含裝潢費;
114年05月
別墅/透天新北市新店區華城路62之3號10,168萬
含車位價
68.96萬/坪
含車位計算
建坪147.45坪(含車位18.15坪)地坪147.45有車位
5房2廳5衛7.4年1樓/3樓
5房2廳5衛7.4年1樓/3樓
交易備註
114年07月

新北市新店區青山路88巷24號
別墅/透天
有車位
3,300萬
含車位價
含車位價
46.95萬
含車位計算
含車位計算
70.29坪
含車位--坪
含車位--坪
72.65坪
25.9年
1樓/2樓
5房3廳4衛
備註資訊:地下室增建其他增建;
114年07月
別墅/透天新北市新店區青山路88巷24號3,300萬
含車位價
46.95萬/坪
含車位計算
建坪70.29坪(含車位--坪)地坪72.65有車位
5房3廳4衛25.9年1樓/2樓
5房3廳4衛25.9年1樓/2樓
交易備註
114年06月

新北市新店區青山路88巷21弄6號
別墅/透天
5,208萬
54.28萬
95.94坪
95.01坪
25.5年
1樓/4樓
5房2廳4衛
歷史移轉2次
備註資訊:採光罩其他增建;
114年06月
別墅/透天新北市新店區青山路88巷21弄6號移轉2次
5,208萬
54.28萬/坪
建坪95.94坪地坪95.01無車位
5房2廳4衛25.5年1樓/4樓
5房2廳4衛25.5年1樓/4樓
交易備註
114年05月

新北市新店區青山路88巷21弄8號
別墅/透天
4,888萬
51.38萬
95.14坪
96.06坪
25.4年
1樓/4樓
5房4廳4衛
備註資訊:陽台外推;其他增建;
114年05月
別墅/透天新北市新店區青山路88巷21弄8號4,888萬
51.38萬/坪
建坪95.14坪地坪96.06無車位
5房4廳4衛25.4年1樓/4樓
5房4廳4衛25.4年1樓/4樓
交易備註
- 資料來源:
為信義房屋最新成交行情;
為內政部最新公布的實價登錄資料;
該數值為系統運算,詳細請看說明
- 本實價登錄分類係綜合內政部實價登錄2020年7月之建物型態分類調整,以及申報登錄之建物型態、建物權狀登載之「主要用途」資料推估而成,故資料呈現類型、順序可能會與內政部不動產交易實價查詢服務網之搜尋結果有所差異,請斟酌參考。看看我們如何推估實價登錄類型與順序
- 特殊行情物件可能為受到特別條件或特殊關係影響所造成,詳情請參考頁面之粉色「備註資訊」欄。排除特殊交易功能,開啟後可即時排除顯示申報備註中關係人間交易、特殊交易情況及標的類型、與政府有關之交易、僅車位交易、分件登記、含多筆土地或多棟建物、 交易標的僅有建物、土地面積為0(含地上權物件),及其他備註資訊,關閉後則會恢復顯示。
- 歷史移轉次數依據信義成交行情及政府實價登錄資訊推估,再由系統比對當筆與前一筆實價登錄,交易明細完全吻合方計算漲跌幅,當筆交易漲跌幅計算式為(當筆交易之成交總價/前一筆交易之成交總價)-1,計算百分比至小數點後兩位;可能與實際交易有所落差,資料請斟酌參考。
為信義房屋最新成交行情;- 本實價登錄分類係綜合內政部實價登錄2020年7月之建物型態分類調整,以及申報登錄之建物型態、建物權狀登載之「主要用途」資料推估而成,故資料呈現類型、順序可能會與內政部不動產交易實價查詢服務網之搜尋結果有所差異,請斟酌參考。看看我們如何推估實價登錄類型與順序
- 特殊行情物件可能為受到特別條件或特殊關係影響所造成,詳情請參考頁面之粉色「備註資訊」欄。排除特殊交易功能,開啟後可即時排除顯示申報備註中關係人間交易、特殊交易情況及標的類型、與政府有關之交易、僅車位交易、分件登記、含多筆土地或多棟建物、 交易標的僅有建物、土地面積為0(含地上權物件),及其他備註資訊,關閉後則會恢復顯示。
- 歷史移轉次數依據信義成交行情及政府實價登錄資訊推估,再由系統比對當筆與前一筆實價登錄,交易明細完全吻合方計算漲跌幅,當筆交易漲跌幅計算式為(當筆交易之成交總價/前一筆交易之成交總價)-1,計算百分比至小數點後兩位;可能與實際交易有所落差,資料請斟酌參考。
查看實價登錄
本案專家

根據你的設定值計算
507,729/月


