
1/21
請注意,上方物件照片如有街景,為物件附近環境介紹,非物件本身。
1/21
有7人也在關注這間👀
本案專家

預約看屋
按下送出表示您已同意本站
服務條款
與隱私權聲明
送出
<可看>正大明路透店
(9292GQ)
台中市大里區大明路
有7人也在關注這間👀
詳情
總價
3,488萬
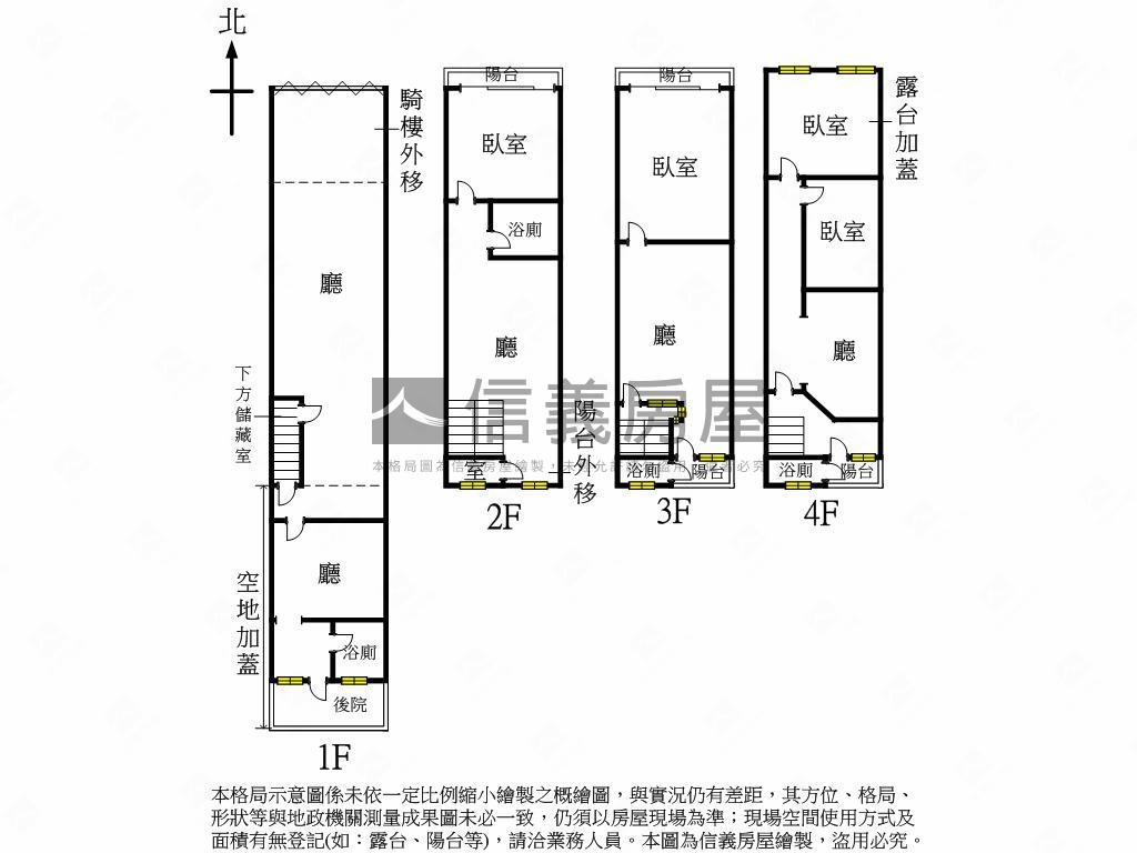
格局
4房5廳4衛2室
建坪
77.42坪
(主+陽67.56坪)
類型
透天/店面
樓層
1-4樓/4樓
建坪單價
45.05 萬/坪
屋齡
42.8年
地坪
31.46坪
地坪單價
--

SinyiCare十大守護 信義房屋購售屋服務保障
點擊觀看生活機能
公車 (17)公共自行車 (3)
0大明益民路口
0.7分鐘 / 46m
1大明益民路口
0.7分鐘 / 50m
2崇光國小
4.7分鐘 / 340m
3崇光國小
4.9分鐘 / 357m
4大明高中
3.8分鐘 / 265m
5國光橋
5.6分鐘 / 399m
6國光橋
6.1分鐘 / 406m
7大明高中
4.7分鐘 / 331m
8國光東興路口
6.1分鐘 / 415m
9許厝
5.8分鐘 / 377m
A大明國光路口
5.8分鐘 / 377m
B國光東興路口
6.4分鐘 / 467m
C大明國光路口
6.3分鐘 / 411m
D國光忠明南路口
8.6分鐘 / 592m
E忠明南國光路口
12.6分鐘 / 905m
F國光忠明南路口
8.6分鐘 / 613m
G忠明南國光路口
13分鐘 / 919m
0大明益民路口
0.7分鐘 / 46m
1大明益民路口
0.7分鐘 / 50m
2崇光國小
4.7分鐘 / 340m
3崇光國小
4.9分鐘 / 357m
4大明高中
3.8分鐘 / 265m
觀看全部

SinyiCare十大守護 信義房屋購售屋服務保障
建坪
77.42坪
詳情
建坪單價
45.05 萬/坪
地坪
31.46坪
主+陽
67.56坪=
主建物
63.65坪+
陽台
3.91坪
露台
5.26坪
騎樓
4.61坪
格局
3房4廳3衛2室
加蓋格局
1房1廳1衛
屋齡
42.8年
類型
透天/店面
樓層
1-4樓/4樓
車位
--
邊間/暗房
否/是
建物朝向
北
大門朝向
北
落地窗朝向
北
警衛管理
無
建物詳情
建物結構
鋼筋混凝土
外牆建材
方塊磚
每層戶數
1
謄本用途
店舖、住宅、人行道
使用分區
見土地使用分區證明影本;
注意事項
--
收合
物件特色
正大明路核心商圈店面
稀少釋出好難得
投資自用皆適宜
近大買家好熱鬧
格局方正好規劃
南北向店面無分隔島
歡迎網路預約專人回電
買方服務費成交價1%
類似物件實價登錄(16)
距離該物件1公里內,半年內成交,別墅/透天/店面
共有16間與我相似的實價登錄物件
編輯篩選條件
列表
地圖
年月
地址
類型/車位
總價
單價
建坪
地坪
屋齡
樓層
格局
114年10月

台中市大里區大德街35號
店面
2,570萬
31.62萬
81.28坪
29.34坪
35.3年
1樓/4樓
19房19衛
歷史移轉2次
備註資訊:其他增建;
114年10月
店面台中市大里區大德街35號移轉2次
2,570萬
31.62萬/坪
建坪81.28坪地坪29.34無車位
19房19衛35.3年1樓/4樓
19房19衛35.3年1樓/4樓
交易備註
114年09月

台中市大里區永興路232巷37弄7號
別墅/透天
1,220萬
30.35萬
40.19坪
25.41坪
38.6年
1樓/2樓
5房3廳2衛
備註資訊:頂樓加蓋;其他增建;
114年09月
別墅/透天台中市大里區永興路232巷37弄7號1,220萬
30.35萬/坪
建坪40.19坪地坪25.41無車位
5房3廳2衛38.6年1樓/2樓
5房3廳2衛38.6年1樓/2樓
交易備註
114年08月

台中市大里區益民路二段401號
店面
1,380萬
35.84萬
38.5坪
25.71坪
45.6年
1樓/2樓
4房2廳2衛
備註資訊:其他增建;
114年08月
店面台中市大里區益民路二段401號1,380萬
35.84萬/坪
建坪38.5坪地坪25.71無車位
4房2廳2衛45.6年1樓/2樓
4房2廳2衛45.6年1樓/2樓
交易備註
114年07月

台中市大里區大德街40巷1號
別墅/透天
1,580萬
25.33萬
62.37坪
29.78坪
43.1年
1樓/3樓
7房4衛
備註資訊:頂樓加蓋;其他增建;
114年07月
別墅/透天台中市大里區大德街40巷1號1,580萬
25.33萬/坪
建坪62.37坪地坪29.78無車位
7房4衛43.1年1樓/3樓
7房4衛43.1年1樓/3樓
交易備註
114年07月

台中市南區興大路35巷5號等公共設施
別墅/透天
3,500萬
45.66萬
76.65坪
23.59坪
1.9年
1樓/4樓
10房10衛
備註資訊:陽台外推;其他增建;
114年07月
別墅/透天台中市南區興大路35巷5號等公共設施3,500萬
45.66萬/坪
建坪76.65坪地坪23.59無車位
10房10衛1.9年1樓/4樓
10房10衛1.9年1樓/4樓
交易備註
- 資料來源:
為信義房屋最新成交行情;
為內政部最新公布的實價登錄資料;
該數值為系統運算,詳細請看說明
- 本實價登錄分類係綜合內政部實價登錄2020年7月之建物型態分類調整,以及申報登錄之建物型態、建物權狀登載之「主要用途」資料推估而成,故資料呈現類型、順序可能會與內政部不動產交易實價查詢服務網之搜尋結果有所差異,請斟酌參考。看看我們如何推估實價登錄類型與順序
- 特殊行情物件可能為受到特別條件或特殊關係影響所造成,詳情請參考頁面之粉色「備註資訊」欄。排除特殊交易功能,開啟後可即時排除顯示申報備註中關係人間交易、特殊交易情況及標的類型、與政府有關之交易、僅車位交易、分件登記、含多筆土地或多棟建物、 交易標的僅有建物、土地面積為0(含地上權物件),及其他備註資訊,關閉後則會恢復顯示。
- 歷史移轉次數依據信義成交行情及政府實價登錄資訊推估,再由系統比對當筆與前一筆實價登錄,交易明細完全吻合方計算漲跌幅,當筆交易漲跌幅計算式為(當筆交易之成交總價/前一筆交易之成交總價)-1,計算百分比至小數點後兩位;可能與實際交易有所落差,資料請斟酌參考。
為信義房屋最新成交行情;- 本實價登錄分類係綜合內政部實價登錄2020年7月之建物型態分類調整,以及申報登錄之建物型態、建物權狀登載之「主要用途」資料推估而成,故資料呈現類型、順序可能會與內政部不動產交易實價查詢服務網之搜尋結果有所差異,請斟酌參考。看看我們如何推估實價登錄類型與順序
- 特殊行情物件可能為受到特別條件或特殊關係影響所造成,詳情請參考頁面之粉色「備註資訊」欄。排除特殊交易功能,開啟後可即時排除顯示申報備註中關係人間交易、特殊交易情況及標的類型、與政府有關之交易、僅車位交易、分件登記、含多筆土地或多棟建物、 交易標的僅有建物、土地面積為0(含地上權物件),及其他備註資訊,關閉後則會恢復顯示。
- 歷史移轉次數依據信義成交行情及政府實價登錄資訊推估,再由系統比對當筆與前一筆實價登錄,交易明細完全吻合方計算漲跌幅,當筆交易漲跌幅計算式為(當筆交易之成交總價/前一筆交易之成交總價)-1,計算百分比至小數點後兩位;可能與實際交易有所落差,資料請斟酌參考。
查看實價登錄
本案專家

根據你的設定值計算
177,114/月


