
請注意,上方物件照片如有街景,為物件附近環境介紹,非物件本身。
1/19
有127人也在關注這間👀
本案專家
更多挑選
按下按鈕表示您已同意本站
服務條款
與隱私權聲明
預約看屋
中清路黃金透店近經貿園區
(9472VU)
台中市北屯區中清路二段
有127人也在關注這間👀
總價
2,980萬
建坪單價
35.80 萬/坪
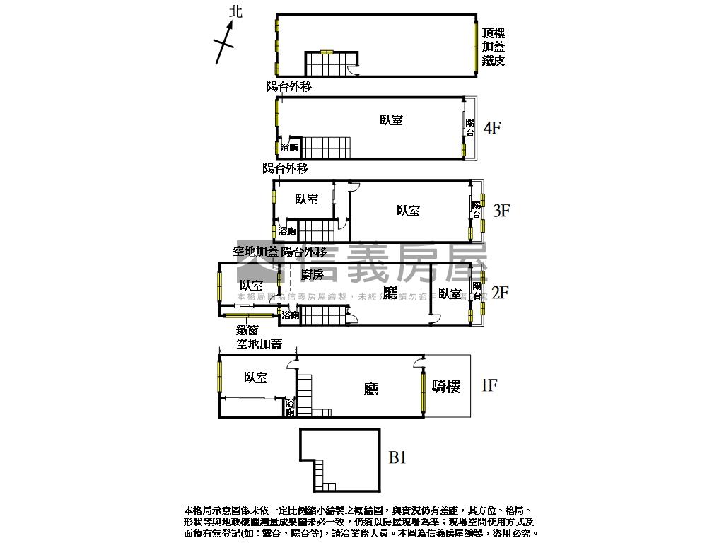
格局
6房2廳4衛
含加蓋2房
房貸試算
計算
元/月
年|利率%概算|undefined年寬限期
符合首購資格嗎?
坪數詳情
細項
建坪83.24
主+陽(含其他)83.24
地坪27.23
類型店面/透天
屋齡43.3年
樓層B1-4樓/4樓
加蓋格局2房
謄本用途住商用
使用分區見土地使用分區證明影本;
完整物件詳情
本案專家
更多挑選
物件特色
中清路商圈稠密
使用空間大
曾診所開業數十餘年
重劃區旁發展可期
周邊生活機能


SinyiCare十大守護 信義房屋購售屋服務保障
點擊觀看生活機能
公車 (18)
公共自行車 (2)
停車場 (4)
0陳平
1.5分鐘 / 95m
1頂陳平
2.5分鐘 / 160m
2陳平
2.3分鐘 / 167m
3頂陳平
2.5分鐘 / 175m
4全民醫院
3.5分鐘 / 240m
5老樹公園(順平路)
5.3分鐘 / 371m
6老樹公園(順平路)
5.4分鐘 / 381m
7順平三中平路口
6.5分鐘 / 464m
8順平三中平路口
6.5分鐘 / 465m
9新平公園
5.2分鐘 / 351m
A新平公園
5.5分鐘 / 382m
B全民醫院
4.7分鐘 / 343m
C后庄仔
5.7分鐘 / 380m
D后庄仔
6.5分鐘 / 437m
E敦化公園
9.6分鐘 / 637m
F敦化公園
9.4分鐘 / 628m
G大德國中
6.6分鐘 / 476m
H大德國中
7.3分鐘 / 512m
0陳平
1.5分鐘 / 95m
1頂陳平
2.5分鐘 / 160m
2陳平
2.3分鐘 / 167m
3頂陳平
2.5分鐘 / 175m
4全民醫院
3.5分鐘 / 240m
完整周邊生活圈


SinyiCare十大守護 信義房屋購售屋服務保障
類似物件實價登錄
(22)
1公里內 | 半年內 | 店面/透天
2廳1衛
|35.52坪
|無車位
1,700萬47.86萬/坪
114/11成交
4房2廳2衛
|14.54坪
|無車位
545萬37.47萬/坪
114/09成交


