
請注意,上方物件照片如有街景,為物件附近環境介紹,非物件本身。
1/8
有14人也在關注這間👀
本案專家
更多挑選
按下按鈕表示您已同意本站
服務條款
與隱私權聲明
預約看屋
光復路大地坪臨路店面透天
(9596RP)
新竹市光復路二段
有14人也在關注這間👀
總價
12,000萬
建坪單價
102.11 萬/坪
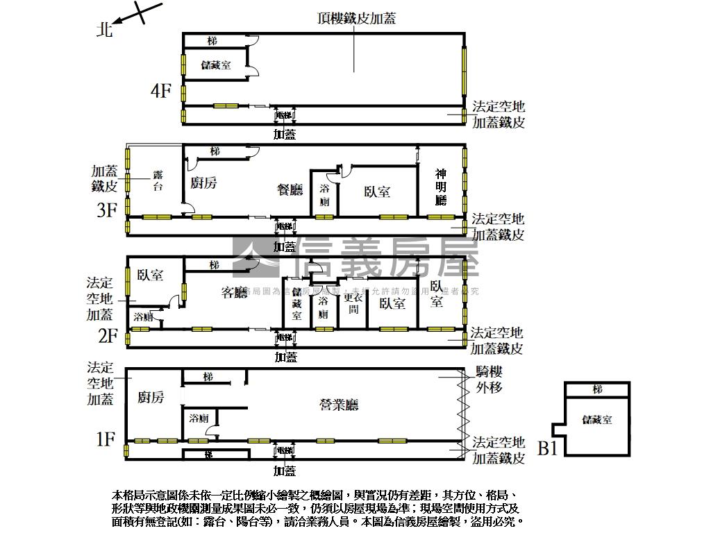
格局
4房4廳4衛3室
含加蓋1房1衛1室
房貸試算
計算
元/月
年|利率%概算|undefined年寬限期
符合首購資格嗎?
坪數詳情
細項
建坪117.52
主(含其他)117.52
地坪57.78
類型透天
屋齡36.3年
樓層B1-3樓/3樓
加蓋格局1房1衛1室
謄本用途住商用
使用分區因土地筆數過多或分區內容過長,請詳見不動產說明書或使用分區證明文件
完整物件詳情
本案專家
更多挑選
物件特色
臨大路人多車多商機多
一樓營業出租自用皆宜
大地坪約57.78坪
木作隔間方便自由規劃
周邊機能便利交通方便
光復路高架道直達市區
鄰近國道一新竹交流道
找信義買屋服務費1%
周邊生活機能


SinyiCare十大守護 信義房屋購售屋服務保障
點擊觀看生活機能
公車 (17)
公共自行車 (3)
停車場 (1)
0工研院光復院區
1分鐘 / 78m
1馬偕醫院
2.1分鐘 / 137m
2馬偕醫院
3.6分鐘 / 242m
3工研院光復院區
4.7分鐘 / 339m
4馬偕醫院
3.8分鐘 / 256m
5學府路口
4.5分鐘 / 315m
6學府路口
4.9分鐘 / 346m
7海軍新村
4.9分鐘 / 328m
8二分局
5分鐘 / 372m
9二分局
5分鐘 / 376m
A二分局
6.2分鐘 / 471m
B二分局
5.5分鐘 / 414m
C二分局
6.7分鐘 / 508m
D新光路口
8.2分鐘 / 598m
E新光路口
8.5分鐘 / 625m
F水源地
8.9分鐘 / 625m
G水源地
9.1分鐘 / 634m
0工研院光復院區
1分鐘 / 78m
1馬偕醫院
2.1分鐘 / 137m
2馬偕醫院
3.6分鐘 / 242m
3工研院光復院區
4.7分鐘 / 339m
4馬偕醫院
3.8分鐘 / 256m
完整周邊生活圈

SinyiCare十大守護 信義房屋購售屋服務保障
類似物件實價登錄
(3)
1公里內 | 半年內 | 透天
6房2廳6衛
|109.11坪
|無車位
3,500萬32.08萬/坪
114/11成交
4房4廳6衛
|49.23坪
|無車位
1,400萬28.44萬/坪
114/11成交


